144 / 80 / 19 м²
поверх 2 з 9
Монолітно-каркасна
Спец. проект
2013 рік побудови
вчора
2 міс. тому
131 (сьогодні 0, вчора 1)
Опис
ЖК «Ренесанс»
📍 вул. Новоселецька, 10
Продаж 3-кімнатної квартири

✨ Преміальні апартаменти в автономному будинку
⚡️ Завжди є світло, опалення та вода

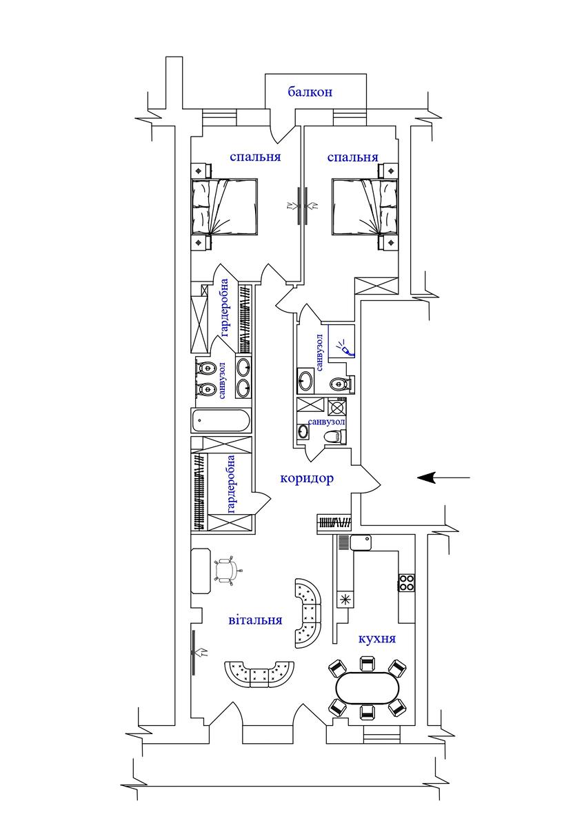
Характеристики:
• Поверх: 2/9
• Площа: 144 м² (житлова — 80 м², кухня — 19 м²)
• Висота стель: 3,10 м
• Двостороння квартира
• На поверсі лише 2 квартири — максимум приватності

Планування:
• Простора кухня-вітальня
• 2 спальні з власними санвузлами
• Пральна кімната + гостьовий санвузол
• Окрема гардеробна
Деталі
В квартирі 3 кімнати, висота стелі 3.3 метра, Технологія будівництва - Монолітно-каркасна, Тип будинку - Спец. проект. Планування кімнат Роздільне. У квартирі є Телевізор, Кабельне ТБ, Супутникове ТБ, Підігрів підлоги, Кондиціонер, Пральна машина, Сушильна машина, Душова кабіна, Ванна, Холодильник, Мікрохвильовка, Посудомийна машина, Сигналізація. Будинок побудований в 2013 році. Загальний стан квартири - З ремонтом. Працює без світла - вода, опалення, ліфт. Без комісії
У квартирі є
  • Ресурс 1
    Телевізор
  • Кабельне ТБ
  • Супутникове ТБ
  • Підігрів підлоги
  • Кондиціонер
  • Пральна машина
  • Сушильна машина
  • Душова кабіна
  • Ванна
  • Ресурс 1
    Холодильник
  • Ресурс 1
    Мікрохвильовка
  • Посудомийна машина
  • Сигналізація
Ukrainian Realty
Верифікований профіль
PRO аккаунт
Професійний акаунт
Platinum partner
20
Років досвіду
7
Верифікованих рекомендацій
5
Років на сайті
Активних оголошень 30
Ексклюзивних об'єктів 5
Рекламна активність 150334
Останній візит на сайт вчора
Рекомендувати
Деталі інтер’єру
Класика

Планування

Будинок і двір
ЖК Renaissance Residence розташований у Посольському кварталі Печерська — одному з найпрестижніших районів Києва.
Адреси комплексу:
• вул. Новоселицька, 4 — 5 апартаментів
• вул. Новоселицька, 10 — 60 апартаментів
• вул. Новоселицька, 7 — таунхауси по 722 кв м², включаючи паркінг
• вул. Добролюбова, 4 — 15 апартаментів
Усього комплекс включає 3 секції, 80 апартаментів та таунхауси з вражаючою висотою стель від 3,3 до 4 м.
Технічні переваги та комфорт:
• Автономне опалення: 3 котельні з комп’ютерним управлінням усього 15 котлів, розділені по секціях:
✔️1 котел — опалення
✔️2 котли — гаряча вода
• Потужний генератор з Нідерландів
• Власна трансформаторна підстанція
• Сучасна система кондиціонування
• Безшумні ліфти, монолітно-каркасна технологія будівництва, стіни з керамоблоку без додаткового утеплення фасаду
• Цілодобове відеоспостереження та охорона на посту
• Підземний паркінг на 125 місць (вартість від $60 000 за місце)
• Зона очікування для гостей у кожному будинку

Комунальні послуги: 58грн/м² — включають усе.
Управляюча компанія забезпечує високий рівень сервісу, уважно реагує на звернення мешканців, дбає про будинок, сад та спільні простори.

Адреса
Вашу скаргу прийнято!
Оберіть спосіб підтвердження
Щоб вашу рекомендацію було зараховано, підтвердіть свою особистість
* Особисті дані не відображатимуться на сайті та слугуватимуть лише для підтвердження особистості.
Як верифікуватись через Дію?
Зчитайте QR-код сканером у застосунку Дія й підтвердьте авторизацію Дія.Підписом
QR-код буде дійсний ще 02:00
Як верифікуватись через Bankid?
Верифікація BankID відкриється у новому вікні. Якщо сторінка верифікації не відкрилася, вікно було заблоковане вашим браузером.
Щоб дозволити відкриття вікна, виконайте такі кроки:

1. Перевірте адресний рядок браузера на повідомлення про помилку або піктограму блокування. Натисніть на нього.
2. Якщо у вас встановлено блокувальник спливаючих вікон, тимчасово відключіть його для цього сайту.
3. Перевірте налаштування вашого браузера і переконайтеся, що блокування спливаючих вікон вимкнено або налаштовано на дозвіл відкриття цього вікна.

Якщо проблема залишається невирішеною, зверніться до нашої служби підтримки.
Як верифікуватись через Дію?
Верифікація Дія відкриється у новому вікні. Якщо сторінка верифікації не відкрилася, вікно було заблоковане вашим браузером.
Щоб дозволити відкриття вікна, виконайте такі кроки:

1. Перевірте адресний рядок браузера на повідомлення про помилку або піктограму блокування. Натисніть на нього.
2. Якщо у вас встановлено блокувальник спливаючих вікон, тимчасово відключіть його для цього сайту.
3. Перевірте налаштування вашого браузера і переконайтеся, що блокування спливаючих вікон вимкнено або налаштовано на дозвіл відкриття цього вікна.

Якщо проблема залишається невирішеною, зверніться до нашої служби підтримки.
Вітаємо!
Рекомендацію зараховано!
Незабаром рекомендація зʼявиться на сторінці рієлтора.
Рекомендацію не зараховано.
Ви вже залишали рекомендацію даному рієлтору.
В пропозиції є незбережені дані.