36 500 $
656  $/м²
Вячеслава Чорновола, 23
БЕЗ КОМІСІЇ
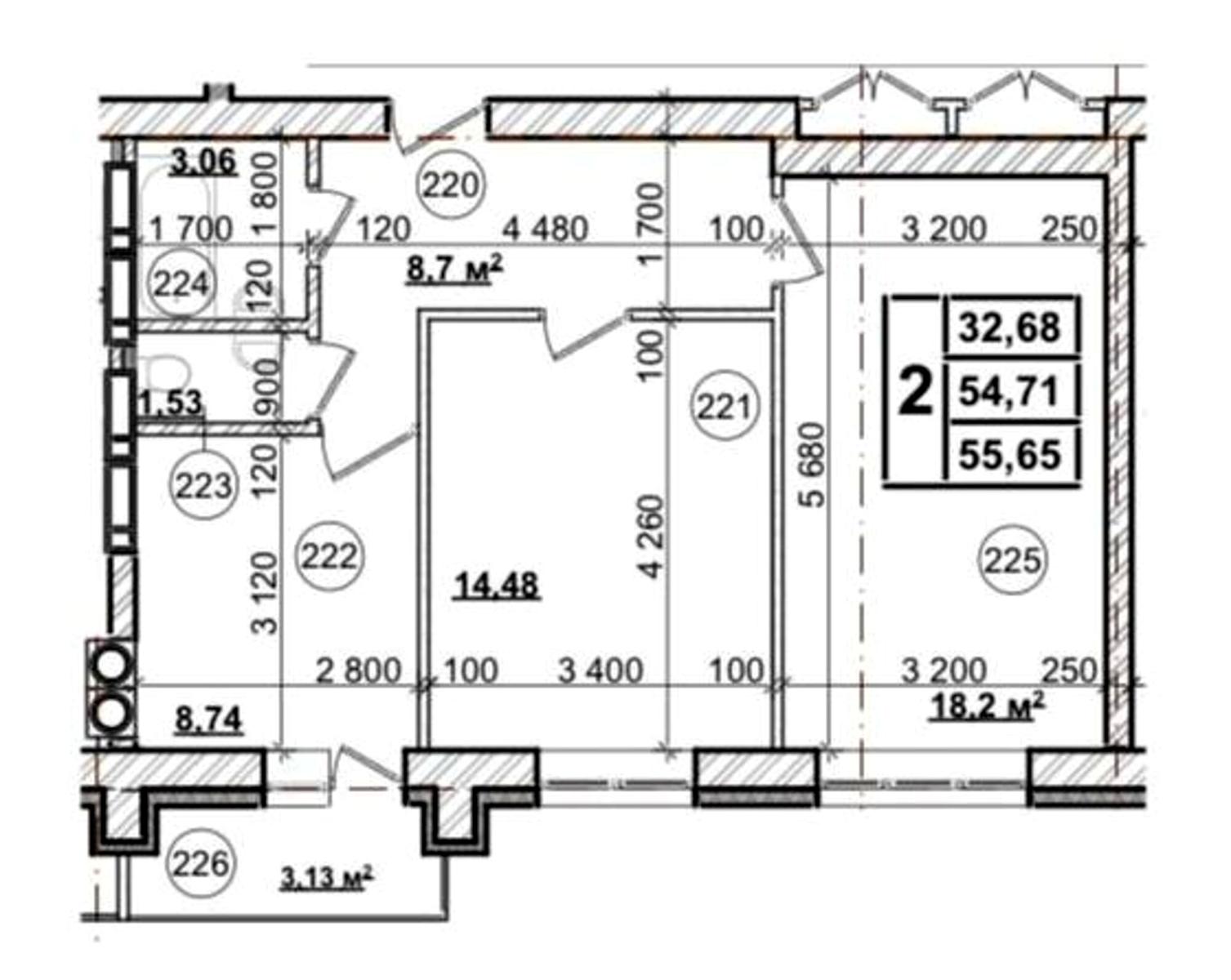
55.65 / 32.68 / 8.8 м²
поверх 3 з 6
Монолітно-каркасна
Спец. проект
1 тиж. тому
2 міс. тому
32 (сьогодні 1, вчора 2)
Опис
Продам 2к квартиру Вячеслава Чорновола, 23, смт. Макарів

Без комісії!
Квартири від забудовника в смт Макарів (Бучанський р-н, Київська обл.) — новий будинок.

Будинок активно готують до здачі: до середини квітня цього року планується вже запустити ліфти.

В кінці березня буде чергове підвищення цін!

30хв іхати на на авто до Києва.

Підходить під такі держ програми:

🔜 Постанова №280;
🔜 Постанова №719;
🔜 Сертифікат «єВідновлення»;

Продаємо квартири в новобудові на стадії введення в експлуатацію. Будинок монолітно-каркасний — одна з найнадійніших технологій будівництва.

2-кімнатні 55,65 м2 — $36500

✅ До Нового Року — спеціальні знижки до 15% (кількість квартир за акційною ціною обмежена).

Комунікації

* Вода та газ заведені в будинок
* Електропостачання: у найближчому майбутньому планується будівництво підстанції (зараз живлення **не напряму від ДТЕК**)

Для життя та інвестиції

Квартири добре підходять і для проживання, і під оренду: оренда в цій локації з новим ремонтом — 9 000–10 000 грн+.

🎖️ Для учасників бойових дій та ВПО — забудовник пропонує допомогу з ремонтом.

Локація

смт Макарів, поруч із дорогою Т1019 — тихий район приватної забудови, зручний виїзд на основні дороги.
Піша доступність:

* Школа №1 — ~10 хв
* Центральна районна лікарня — ~15–20 хв
* поруч сервіси та заклади (**барбершоп, піцерія**), стадіон і зелені зони для прогулянок.

📩 Пишіть у приват / телефонуйте — надішлю планування, наявність, умови знижки та організую перегляд.

А якщо Вам потрібно продати або здати Вашу нерухомість вигідно, швидко і спокійно - напишіть мені в мессенджер, або на @vitaliy_shokal в інстаграм.

Інфраструктура:
Школа №1 — ~10 хв
Центральна районна лікарня — ~15–20 хв
Поруч сервіси та заклади (**барбершоп, піцерія**), стадіон і зелені зони для прогулянок.
Деталі
В квартирі 2 кімнати, Технологія будівництва - Монолітно-каркасна, Тип будинку - Спец. проект. Планування кімнат Роздільне. Є газ. У квартирі є Ванна. Загальний стан квартири - Без ремонту. Без комісії
У квартирі є
  • Ванна
Верифікований профіль
PRO аккаунт
Професійний акаунт
Gold partner
13
Років досвіду
2
Верифіковані рекомендації
8
Років на сайті
Активних оголошень 11
Ексклюзивних об'єктів 1
Рекламна активність 5558
Останній візит на сайт вчора
Рекомендувати
Адреса
смт. Макарів, Вячеслава Чорновола, 23
Вашу скаргу прийнято!
Оберіть спосіб підтвердження
Щоб вашу рекомендацію було зараховано, підтвердіть свою особистість
* Особисті дані не відображатимуться на сайті та слугуватимуть лише для підтвердження особистості.
Як верифікуватись через Дію?
Зчитайте QR-код сканером у застосунку Дія й підтвердьте авторизацію Дія.Підписом
QR-код буде дійсний ще 02:00
Як верифікуватись через Bankid?
Верифікація BankID відкриється у новому вікні. Якщо сторінка верифікації не відкрилася, вікно було заблоковане вашим браузером.
Щоб дозволити відкриття вікна, виконайте такі кроки:

1. Перевірте адресний рядок браузера на повідомлення про помилку або піктограму блокування. Натисніть на нього.
2. Якщо у вас встановлено блокувальник спливаючих вікон, тимчасово відключіть його для цього сайту.
3. Перевірте налаштування вашого браузера і переконайтеся, що блокування спливаючих вікон вимкнено або налаштовано на дозвіл відкриття цього вікна.

Якщо проблема залишається невирішеною, зверніться до нашої служби підтримки.
Як верифікуватись через Дію?
Верифікація Дія відкриється у новому вікні. Якщо сторінка верифікації не відкрилася, вікно було заблоковане вашим браузером.
Щоб дозволити відкриття вікна, виконайте такі кроки:

1. Перевірте адресний рядок браузера на повідомлення про помилку або піктограму блокування. Натисніть на нього.
2. Якщо у вас встановлено блокувальник спливаючих вікон, тимчасово відключіть його для цього сайту.
3. Перевірте налаштування вашого браузера і переконайтеся, що блокування спливаючих вікон вимкнено або налаштовано на дозвіл відкриття цього вікна.

Якщо проблема залишається невирішеною, зверніться до нашої служби підтримки.
Вітаємо!
Рекомендацію зараховано!
Незабаром рекомендація зʼявиться на сторінці рієлтора.
Рекомендацію не зараховано.
Ви вже залишали рекомендацію даному рієлтору.
В пропозиції є незбережені дані.