8 750 $/мес
15  $/м²
Комиссия 50%
торговое помещение, помещение свободного назначения, производственное помещение, склад, помещение для оказания услуг, офисное помещение, банковское помещение
584 м²
2 нед. назад
5 мес. назад
26 (сегодня 0, вчера 1)
Описание
ОРЕНДА! Сучасне комерційне приміщення 584 м²
Ідеально під супермаркет, склад, магазин, шоурум або сервісний центр.

Пропонується нове приміщення з продуманою логістикою та сучасним фасадом. Максимально функціональне планування дозволяє підлаштувати простір під будь-який бізнес.

Характеристики:
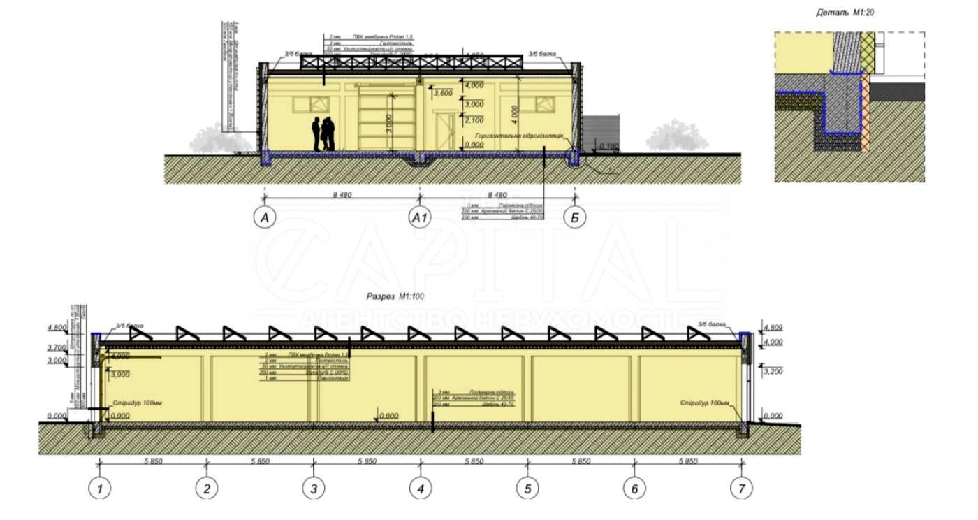
Загальна площа: 583,97 м²
Площа забудови: 630 м²
1 поверх, ступінь вогнестійкості 2
Будівельний обсяг: 3 668,85 м³
Ділянка: 0,01239 га
Власна свердловина та септик
Потужність електрики: 50 кВт
Пандус заїзд для вантажного авто
Паркомісця перед входом

Переваги для бізнесу:
Окремий вхід + велика вітрина
Зручний під’їзд фур / мікрогрузового транспорту
Можливість зонування під будь-який формат
Сучасний фасад, що привертає увагу клієнтів
Достатньо місця для складських стелажів
Потужна інженерія: вода, каналізація, електрика
Парковка для клієнтів та персоналу
Висота приміщення дозволяє оптимальну логістику
Можливість брендування фасаду

Умови оренди:
2 місяці канікул на ремонт
Довгостроковий договір
Передача приміщення вільного планування

Підходить для:
Супермаркетів
Складів та логістики
Магазинів будь-якого формату
Меблевих та будівельних шоурумів
Пунктів видачі та відділень доставки
Медичних центрів та аптек
Фітнес кросфіт залів
Кав’ярень з виробництвом

Візуалізації:
На фото видно сучасний дизайн, панорамне скління та парковку. Другий рендер показує об’єкт у форматі Market з під’їздами та зеленою зоною позаду.
A24111
Детали
Объект коммерческой недвижимости, Класс B, Отдельно стоящее здание, Банковское помещение, Офисное помещение, Помещение для оказания услуг, Склад, Производственное помещение, Помещение свободного назначения, Торговое помещение. Объект на 1 этаже, В здании 1 этаж. Помещение свободной планировки. Безбарьерность: пандус, вход в дом на уровне земли, дверные проемы в доме шириной более 0.9 м, парковочные места для людей з инвалидностью. Комиссия за услуги 50 %
THE Capital
Верифицированный профиль
PRO аккаунт
Професійний акаунт
Platinum partner
2
Года опыта
8
Месяцев на сайте
Активных объявлений 652
Эксклюзивных объектов 0
Рекламная активность 27654
Последний визит на сайт сегодня
Рекомендовать
Адрес
Ваша жалоба принята!
Выберите способ подтверждения
Чтобы ваша рекомендация была засчитана, подтвердите свою личность
* Личные данные не будут отображаться на сайте и будут служить только для подтверждения личности.
Как верифицироваться через Дію?
Считайте QR-код сканером в приложении Действие и подтвердите авторизацию Действие.
QR-код будет действителен еще 02:00
Как верифицироваться через Bankid?
Верификация BankID откроется в новом окне. Если страница верификации не открылась, значит окно было заблокировано вашим браузером.
Чтобы разрешить открытие окна, выполните следующие шаги:

1. Проверьте адресную строку браузера на наличие сообщения об ошибке или значка блокировки. Нажмите на него.
2. Если у вас установлен блокировщик всплывающих окон, временно отключите его для этого сайта.
3. Проверьте настройки вашего браузера и убедитесь, что блокировка всплывающих окон отключена или настроена на разрешение открытия данного окна.

Если проблема остается нерешенной, свяжитесь с нашей службой поддержки.
Как верифицироваться через Дію?
Верификация Дія откроется в новом окне. Если страница верификации не открылась, значит окно было заблокировано вашим браузером.
Чтобы разрешить открытие окна, выполните следующие шаги:

1. Проверьте адресную строку браузера на наличие сообщения об ошибке или значка блокировки. Нажмите на него.
2. Если у вас установлен блокировщик всплывающих окон, временно отключите его для этого сайта.
3. Проверьте настройки вашего браузера и убедитесь, что блокировка всплывающих окон отключена или настроена на разрешение открытия данного окна.

Если проблема остается нерешенной, свяжитесь с нашей службой поддержки.
Поздравляем!
Рекомендация засчитана!
В скором времени рекомендация появится на странице риелтора.
Рекомендация не засчитана.
Вы уже оставляли рекомендацию данному риелтору.
В пропозиції є незбережені дані.