2
84 000 $
1 200
$/м²
Рудненская ул. (Белогорская), (3 черга (будинок 1б))
Новобудова
2025 год постройки
2 дня назад
4 мес. назад
51 (сегодня 0,
вчера 2)
Описание
Є правовласності!!!
Можливий продаж по єОселі!!!
Продається двох кімнатна квартира в зданому і заселеному будинку по
вул.Рудненська
ЖК Riel City
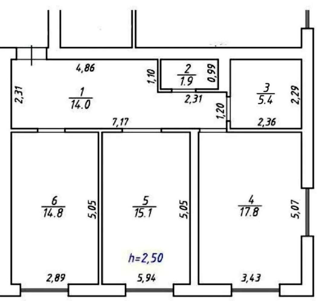
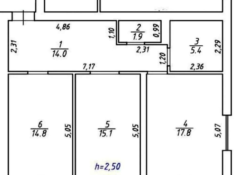
Площа 68.5кв.м
Поверх 7/12
Простора і світла двох кімнатна квартира, два санвузли, можна зробити гардеробну.
Комунікації всі підключені.
Дахова котельна, лічильник на тепло.
Відразу правовласності на нового власника.
Поруч школи і садочки, супермаркети, кафе, салон краси є в даному ЖК
Є відеоогляд
Ключі на руках можна дивитись у зручний для Вас час!!
Роман АН
Можливий продаж по єОселі!!!
Продається двох кімнатна квартира в зданому і заселеному будинку по
вул.Рудненська
ЖК Riel City
Площа 68.5кв.м
Поверх 7/12
Простора і світла двох кімнатна квартира, два санвузли, можна зробити гардеробну.
Комунікації всі підключені.
Дахова котельна, лічильник на тепло.
Відразу правовласності на нового власника.
Поруч школи і садочки, супермаркети, кафе, салон краси є в даному ЖК
Є відеоогляд
Ключі на руках можна дивитись у зручний для Вас час!!
Роман АН
Детали
В квартире 2 комнаты, Тип будинку - Новобудова. Планировка комнат Раздельная. Дом построен в 2025 году. Общее состояние квартиры - Без ремонта. Владелец соглашается продать по программе єОселя. Владелец соглашается продать по программе єВідновлення. Комиссия за услуги 5 %
История изменения цены
| 16.03.2026 | + 7 000 $ | 84 000 $ |
| 02.03.2026 | - 1 900 $ | 77 000 $ |
| 19.01.2026 | + 4 910 $ | 78 900 $ |
| 16.01.2026 | - 510 $ | 73 990 $ |
| 16.01.2026 | 74 500 $ |
Адрес
ЖК Riel City
домов сдано
87
год основания
2003
домов в процессе
58














