1
34 500 $
676  $/м²
Комиссия 5% єВідновлення Северный
51 / 29 / 8 м²
этаж 9 из 9
Цегляна
Спец. проект
1 мес. назад
2 мес. назад
118 (сегодня 4, вчера 3)
Описание
Продам двокімнатну квартиру в ЦЕГЛІ КАП РЕМОНТ багатоповерхівка ЛІВИЙ БЕРЕГ (709297)

Під час дзвінка за оголошенням назвіть номер об'єкту 709297

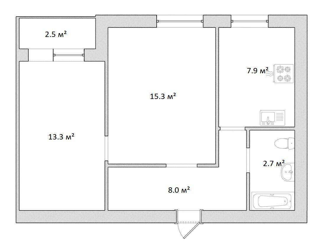
Основні характеристики:
- житлові кімнати - 2
- матеріал стін - цегла
- поверх - 9
- поверховість будівлі - 9
- наявність ліфта - є
- розташування - не кутова
- площа квартири - 51 м2
- площа кухні - 8 м2
- наявність балкона / лоджії - є
- стан - капітальний ремонт
- утеплення - є

У вказану вартість вже входять:
- меблі
- техніка

Найближчі орієнтири:
- Калнишевського (Косіора)
- Придніпровськ
- Семафорна
- Лісопарк

Бракує інформації? Будемо раді Вашому дзвінку!

Під час дзвінка за оголошенням назвіть номер об'єкту 709297
Більше пропозицій Ви знайдете в нашому акаунті на цьому сайті.
Детали
В квартире 2 комнаты, высота потолков 2.5 метра, Технологія будівництва - Цегляна, Тип будинку - Спец. проект. В квартире есть Ванна. Общее состояние квартиры - С ремонтом. Владелец соглашается продать по программе єВідновлення. Комиссия за услуги 5 %
В квартире есть
  • Ванна
Результат
Верифицированный профиль
11
Лет опыта
11
Лет на сайте
Активных объявлений 7
Эксклюзивных объектов 0
Рекламная активность 725
Последний визит на сайт вчера
Рекомендовать
История изменения цены
02.03.2026 - 1 500 $ 34 500 $
27.01.2026 36 000 $
Адрес
Ваша жалоба принята!
Выберите способ подтверждения
Чтобы ваша рекомендация была засчитана, подтвердите свою личность
* Личные данные не будут отображаться на сайте и будут служить только для подтверждения личности.
Как верифицироваться через Дію?
Считайте QR-код сканером в приложении Действие и подтвердите авторизацию Действие.
QR-код будет действителен еще 02:00
Как верифицироваться через Bankid?
Верификация BankID откроется в новом окне. Если страница верификации не открылась, значит окно было заблокировано вашим браузером.
Чтобы разрешить открытие окна, выполните следующие шаги:

1. Проверьте адресную строку браузера на наличие сообщения об ошибке или значка блокировки. Нажмите на него.
2. Если у вас установлен блокировщик всплывающих окон, временно отключите его для этого сайта.
3. Проверьте настройки вашего браузера и убедитесь, что блокировка всплывающих окон отключена или настроена на разрешение открытия данного окна.

Если проблема остается нерешенной, свяжитесь с нашей службой поддержки.
Как верифицироваться через Дію?
Верификация Дія откроется в новом окне. Если страница верификации не открылась, значит окно было заблокировано вашим браузером.
Чтобы разрешить открытие окна, выполните следующие шаги:

1. Проверьте адресную строку браузера на наличие сообщения об ошибке или значка блокировки. Нажмите на него.
2. Если у вас установлен блокировщик всплывающих окон, временно отключите его для этого сайта.
3. Проверьте настройки вашего браузера и убедитесь, что блокировка всплывающих окон отключена или настроена на разрешение открытия данного окна.

Если проблема остается нерешенной, свяжитесь с нашей службой поддержки.
Поздравляем!
Рекомендация засчитана!
В скором времени рекомендация появится на странице риелтора.
Рекомендация не засчитана.
Вы уже оставляли рекомендацию данному риелтору.
В пропозиції є незбережені дані.