140 000 $
519
$/м²
Клочковская ул., 98А
1 мес. назад
1 г. 1 мес. назад
83 (сегодня 0,
вчера 0)
Описание
ID об'єкта : 3Q50749
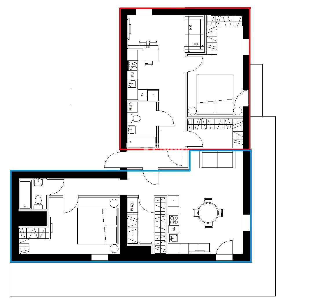
Продам 6 кімн. дворівневу квартиру на вул. Клочківська, 98А, ЖК Ovis (Овіс), 1 секція. Будинок здан. Квартира розташована на 14 та 15 поверхах. Будівельний стан. Площа 270 кв. м.
Вікна виходять на три сторони: внутрішній двір, на перехрестя вул. Клочківська та Клочковського узвозу та на вул. Клочківська.
В будинку є підземний паркінг. Є можливість встановити індивідуальний лічильник на тепло.
Переуступка. Всі расходы сплачувати покупець.
Ми запрошуємо Вас на перегляд об'єкта в будь-який зручний для Вас час.
Агенція нерухомості Estate Invest.
Продам 6 кімн. дворівневу квартиру на вул. Клочківська, 98А, ЖК Ovis (Овіс), 1 секція. Будинок здан. Квартира розташована на 14 та 15 поверхах. Будівельний стан. Площа 270 кв. м.
Вікна виходять на три сторони: внутрішній двір, на перехрестя вул. Клочківська та Клочковського узвозу та на вул. Клочківська.
В будинку є підземний паркінг. Є можливість встановити індивідуальний лічильник на тепло.
Переуступка. Всі расходы сплачувати покупець.
Ми запрошуємо Вас на перегляд об'єкта в будь-який зручний для Вас час.
Агенція нерухомості Estate Invest.
Детали
В квартире 6 комнат. Общее состояние квартиры - Без ремонта. Комиссия за услуги 5 %












