32 000 $
571  $/м²
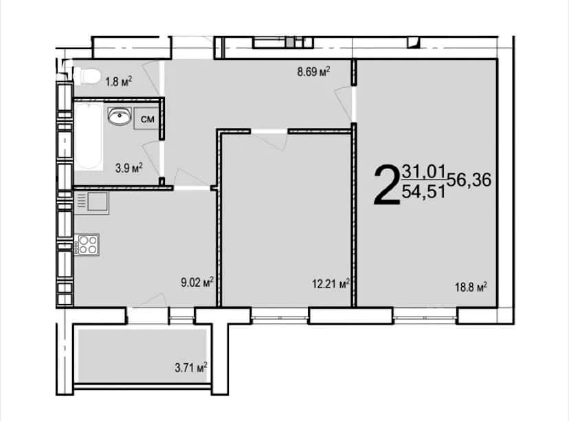
56 / 30 / 9 м²
этаж 5 из 9
Цегляна
2 нед. назад
5 мес. назад
42 (сегодня 0, вчера 0)
Описание
Предлагается к покупке 2 комнатная квартира в жилом комплексе «Птичка», по адресу улица Барабашова14а.
Жилстрой-1.

Квартира площадью 56м2, расположена на 5 этаже 9-ти этажного кирпичного дома.
Комфортная планировка.
Дом СДАН, в доме ведутся ремонтные работы.
В квартире выполнены следующие работы- установлен стеклопакет на балконе, разведена электрика по квартире.
Комплектация квартиры : металлопластиковые окна, входная металическая дверь, радиаторы отопления. Возможность установки индивидуального счётчика отопления.
Жилой комплекс с развитой инфраструктурой: в пешкй доступности метро Академика Павлова, речка, магазины, остановка транспорта.
Право собственности.

Рассмотрим предложение- Єоселя, Євідновлення.

Звоните - о просмотре договоримся в удобное для Вас время!
Детали
В квартире 2 комнаты, Технологія будівництва - Цегляна. Планировка комнат Раздельная. Общее состояние квартиры - Без ремонта. Владелец соглашается продать по программе єОселя. Комиссия за услуги 5 %
Сіті Інвест
Верифицированный профиль
Silver partner
21
Год опыта
9
Лет на сайте
Активных объявлений 15
Эксклюзивных объектов 0
Рекламная активность 0
Последний визит на сайт 1 неделя назад
Рекомендовать
Адрес
Ваша жалоба принята!
Выберите способ подтверждения
Чтобы ваша рекомендация была засчитана, подтвердите свою личность
* Личные данные не будут отображаться на сайте и будут служить только для подтверждения личности.
Как верифицироваться через Дію?
Считайте QR-код сканером в приложении Действие и подтвердите авторизацию Действие.
QR-код будет действителен еще 02:00
Как верифицироваться через Bankid?
Верификация BankID откроется в новом окне. Если страница верификации не открылась, значит окно было заблокировано вашим браузером.
Чтобы разрешить открытие окна, выполните следующие шаги:

1. Проверьте адресную строку браузера на наличие сообщения об ошибке или значка блокировки. Нажмите на него.
2. Если у вас установлен блокировщик всплывающих окон, временно отключите его для этого сайта.
3. Проверьте настройки вашего браузера и убедитесь, что блокировка всплывающих окон отключена или настроена на разрешение открытия данного окна.

Если проблема остается нерешенной, свяжитесь с нашей службой поддержки.
Как верифицироваться через Дію?
Верификация Дія откроется в новом окне. Если страница верификации не открылась, значит окно было заблокировано вашим браузером.
Чтобы разрешить открытие окна, выполните следующие шаги:

1. Проверьте адресную строку браузера на наличие сообщения об ошибке или значка блокировки. Нажмите на него.
2. Если у вас установлен блокировщик всплывающих окон, временно отключите его для этого сайта.
3. Проверьте настройки вашего браузера и убедитесь, что блокировка всплывающих окон отключена или настроена на разрешение открытия данного окна.

Если проблема остается нерешенной, свяжитесь с нашей службой поддержки.
Поздравляем!
Рекомендация засчитана!
В скором времени рекомендация появится на странице риелтора.
Рекомендация не засчитана.
Вы уже оставляли рекомендацию данному риелтору.
В пропозиції є незбережені дані.