55 000 $
753
$/м²
Цегляна
Новобудова
1 мес. назад
4 мес. назад
42 (сегодня 0,
вчера 0)
Описание
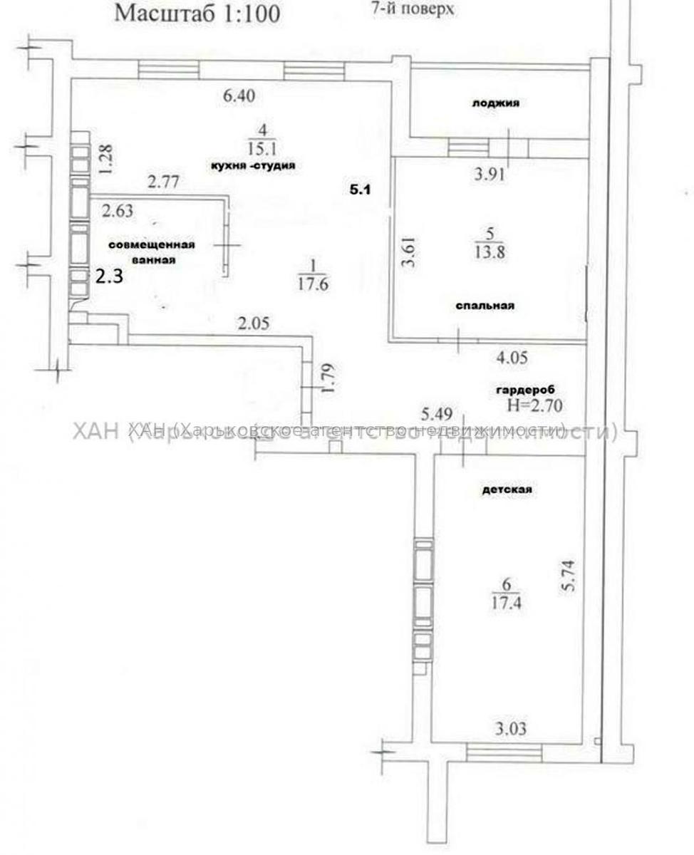
Продам 3 комн. кв. в сданном новострое ЖК "Радужный" Дворец Спорта
Продам квартиру в районе станции метро Турбоатом и Дворец спорта. Кухня-студия, две отдельные комнаты. Машинная штукатурка стен, качественная стяжка пола 10см, заливка потолка, электропроводка по всей квартире, счётчики на свет и отопление, вывод подогрева пола в ванной, радиаторы и горизонтальная разводка отопления с выходом под полотенцесушитель, подвод коммуникаций в санузле, разводка канализации, металлопластиковые окна, застеклена лоджия, металлическая входная дверь. Комплекс облагорожен, детские и спорт площадки, во дворе многоуровневый паркинг. В пешей доступности метро "Дворец Спорта" и "Турбоатом", остановка транспорта, магазин, супермаркет, школа, детский сад, кинотеатр, парк отдыха, дворец спорта. Звоните!
Продам квартиру в районе станции метро Турбоатом и Дворец спорта. Кухня-студия, две отдельные комнаты. Машинная штукатурка стен, качественная стяжка пола 10см, заливка потолка, электропроводка по всей квартире, счётчики на свет и отопление, вывод подогрева пола в ванной, радиаторы и горизонтальная разводка отопления с выходом под полотенцесушитель, подвод коммуникаций в санузле, разводка канализации, металлопластиковые окна, застеклена лоджия, металлическая входная дверь. Комплекс облагорожен, детские и спорт площадки, во дворе многоуровневый паркинг. В пешей доступности метро "Дворец Спорта" и "Турбоатом", остановка транспорта, магазин, супермаркет, школа, детский сад, кинотеатр, парк отдыха, дворец спорта. Звоните!
Детали
В квартире 3 комнаты, Технологія будівництва - Цегляна, Тип будинку - Новобудова. Планировка комнат Раздельная. В квартире есть Подогрев полов, Ванна. Общее состояние квартиры - Частичный ремонт. Комиссия за услуги 5 %
В квартире есть
История изменения цены
| 20.01.2026 | + 49 500 $ | 55 000 $ |
| 20.01.2026 | 5 500 $ |




















