3 720 900 грн
39 500  грн/м²
БЕЗ КОМІСІЇ
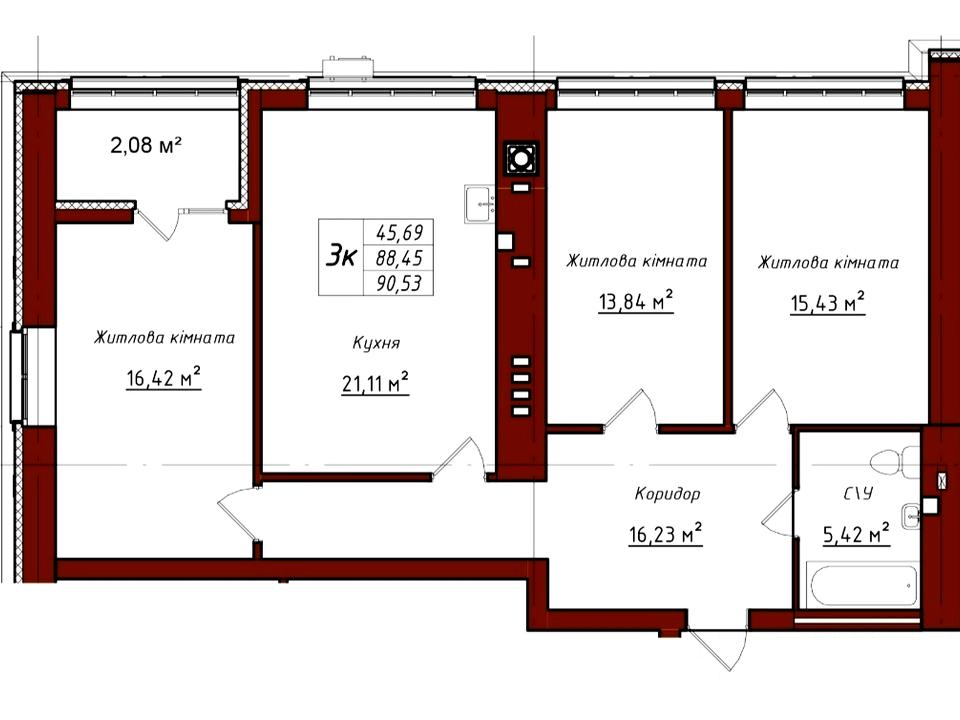
94.2 / 46 / 21 м²
поверх 2 з 8
Цегляна
2024 рік побудови
1 тиж. тому
1 міс. тому
27 (сьогодні 0, вчора 0)
Опис
Будинок введено в експлуатацію. Трикімнатна квартира в восьмиповерховому будинку. Знаходиться на третьому поверсі . Гарний варіант для великої сім'ї. Індивідуальне опалення. Тихий центр міста. Гарне поєднання проживання та відпочинку. Поруч річка Стрижень. Перевага цієї квартири в тому, що її можна придбати в іпотеку.
Деталі
В квартирі 3 кімнати, Технологія будівництва - Цегляна. Планування кімнат Роздільне. Є газ. Будинок побудований в 2024 році. Загальний стан квартири - Без ремонту. Гаряча вода - газовий котел. Без комісії
Центр Нерухомості та  Консалтингу
Верифікований профіль
Platinum partner
15
Років досвіду
13
Років на сайті
Активних оголошень 184
Ексклюзивних об'єктів 0
Рекламна активність 39207
Останній візит на сайт вчора
Рекомендувати
Адреса
Вашу скаргу прийнято!
Оберіть спосіб підтвердження
Щоб вашу рекомендацію було зараховано, підтвердіть свою особистість
* Особисті дані не відображатимуться на сайті та слугуватимуть лише для підтвердження особистості.
Як верифікуватись через Дію?
Зчитайте QR-код сканером у застосунку Дія й підтвердьте авторизацію Дія.Підписом
QR-код буде дійсний ще 02:00
Як верифікуватись через Bankid?
Верифікація BankID відкриється у новому вікні. Якщо сторінка верифікації не відкрилася, вікно було заблоковане вашим браузером.
Щоб дозволити відкриття вікна, виконайте такі кроки:

1. Перевірте адресний рядок браузера на повідомлення про помилку або піктограму блокування. Натисніть на нього.
2. Якщо у вас встановлено блокувальник спливаючих вікон, тимчасово відключіть його для цього сайту.
3. Перевірте налаштування вашого браузера і переконайтеся, що блокування спливаючих вікон вимкнено або налаштовано на дозвіл відкриття цього вікна.

Якщо проблема залишається невирішеною, зверніться до нашої служби підтримки.
Як верифікуватись через Дію?
Верифікація Дія відкриється у новому вікні. Якщо сторінка верифікації не відкрилася, вікно було заблоковане вашим браузером.
Щоб дозволити відкриття вікна, виконайте такі кроки:

1. Перевірте адресний рядок браузера на повідомлення про помилку або піктограму блокування. Натисніть на нього.
2. Якщо у вас встановлено блокувальник спливаючих вікон, тимчасово відключіть його для цього сайту.
3. Перевірте налаштування вашого браузера і переконайтеся, що блокування спливаючих вікон вимкнено або налаштовано на дозвіл відкриття цього вікна.

Якщо проблема залишається невирішеною, зверніться до нашої служби підтримки.
Вітаємо!
Рекомендацію зараховано!
Незабаром рекомендація зʼявиться на сторінці рієлтора.
Рекомендацію не зараховано.
Ви вже залишали рекомендацію даному рієлтору.
В пропозиції є незбережені дані.