36 300 $/міс
10  $/м²
Комісія 50%
склад
3700 м²
2 тиж. тому
1 міс. тому
4 (сьогодні 0, вчора 0)
Опис
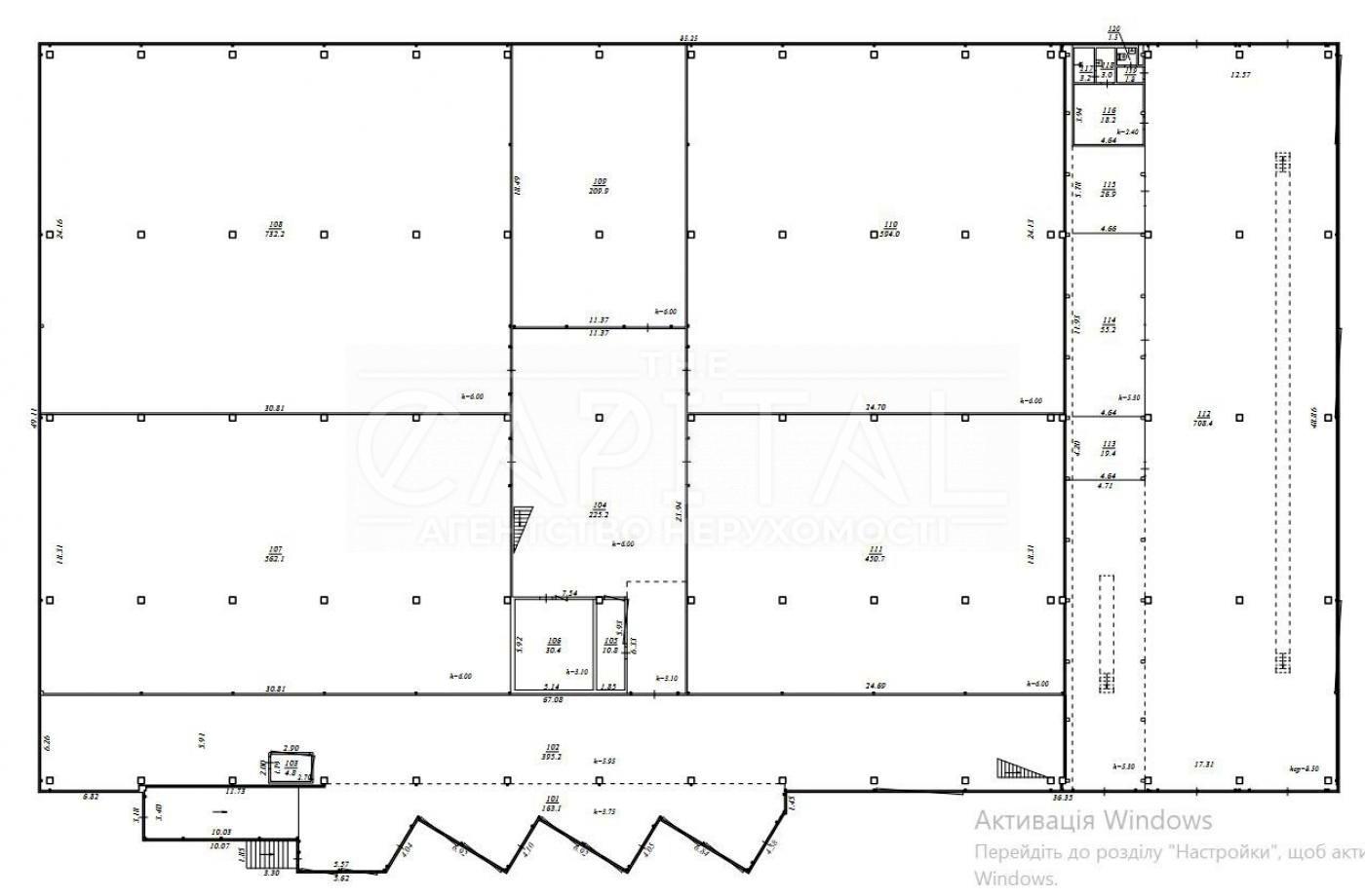
Довгострокова оренда складського комплексу класу B | м. Дніпро, вул. Богдана Хмельницького

Пропонується в оренду окремо розташований складський комплекс класу B з можливістю оренди як всього обʼєкта 3700 кв.м., так і окремих боксів площею від 300 до 3500 м².

Основні характеристики:
• Висота стелі: h = 6 м
• Формат: складські бокси 3500 кв.м. адміністративно-побутові приміщення 200 кв.м.
• Температурний режим:
• частина складів — 0°C … 18°C
• наявні сухі склади без температурного режиму

Технічні та інфраструктурні переваги:
• Рампи з підйомними платформами (доклевеллери) для зручного завантаження/розвантаження
• Промислові антипилові підлоги
• Електропостачання 380 В
• Можливість підключення високошвидкісного інтернету
• Асфальтований під’їзд
• Закрита охоронювана територія
• Доступ 24/7
• Офіси, санвузли, кабінети, побутові приміщення для персоналу

Умови оренди:
• Сухі склади (без температурного режиму):
6,5 $/м² комунальні платежі
(можливі індивідуальні умови залежно від площі)
• Склади з температурним режимом (холод):
від 10 $/м² комунальні електроенергія за холод

Ціна оренди:
200 кв.м. по 6,5$ = 1300$
3500 кв.м. по 6,5$ = 22750$ сухий склад
3500 кв.м. по 10$ = 35000$з температурни режимом
Тотал
24050$ місяць - сухий склад з адмін.зоною
36300$ місяць - склад з температурним режимом та адмін. зоною

Локація:
м. Дніпро, вул. Богдана Хмельницького — зручна транспортна розв’язка, логістично вигідне розташування.


НЕ СПІВПРАЦЮЮ З РІЕЛТОРАМИ!!!

A27596
Деталі
Об'єкт комерційної нерухомості, Окремо стояча будівля, Склад. Об'єкт на 1 поверсі, У будівлі 5 поверхів. Комісія за послуги 50 %
THE Capital
Верифікований профіль
4
Роки досвіду
4
Місяці на сайті
Активних оголошень 1144
Ексклюзивних об'єктів 0
Рекламна активність 1806
Останній візит на сайт вчора
Рекомендувати
Адреса
Вашу скаргу прийнято!
Оберіть спосіб підтвердження
Щоб вашу рекомендацію було зараховано, підтвердіть свою особистість
* Особисті дані не відображатимуться на сайті та слугуватимуть лише для підтвердження особистості.
Як верифікуватись через Дію?
Зчитайте QR-код сканером у застосунку Дія й підтвердьте авторизацію Дія.Підписом
QR-код буде дійсний ще 02:00
Як верифікуватись через Bankid?
Верифікація BankID відкриється у новому вікні. Якщо сторінка верифікації не відкрилася, вікно було заблоковане вашим браузером.
Щоб дозволити відкриття вікна, виконайте такі кроки:

1. Перевірте адресний рядок браузера на повідомлення про помилку або піктограму блокування. Натисніть на нього.
2. Якщо у вас встановлено блокувальник спливаючих вікон, тимчасово відключіть його для цього сайту.
3. Перевірте налаштування вашого браузера і переконайтеся, що блокування спливаючих вікон вимкнено або налаштовано на дозвіл відкриття цього вікна.

Якщо проблема залишається невирішеною, зверніться до нашої служби підтримки.
Як верифікуватись через Дію?
Верифікація Дія відкриється у новому вікні. Якщо сторінка верифікації не відкрилася, вікно було заблоковане вашим браузером.
Щоб дозволити відкриття вікна, виконайте такі кроки:

1. Перевірте адресний рядок браузера на повідомлення про помилку або піктограму блокування. Натисніть на нього.
2. Якщо у вас встановлено блокувальник спливаючих вікон, тимчасово відключіть його для цього сайту.
3. Перевірте налаштування вашого браузера і переконайтеся, що блокування спливаючих вікон вимкнено або налаштовано на дозвіл відкриття цього вікна.

Якщо проблема залишається невирішеною, зверніться до нашої служби підтримки.
Вітаємо!
Рекомендацію зараховано!
Незабаром рекомендація зʼявиться на сторінці рієлтора.
Рекомендацію не зараховано.
Ви вже залишали рекомендацію даному рієлтору.
В пропозиції є незбережені дані.