49 000 $
247  $/м²
Моторна вул.
Комісія 5% Березанівка
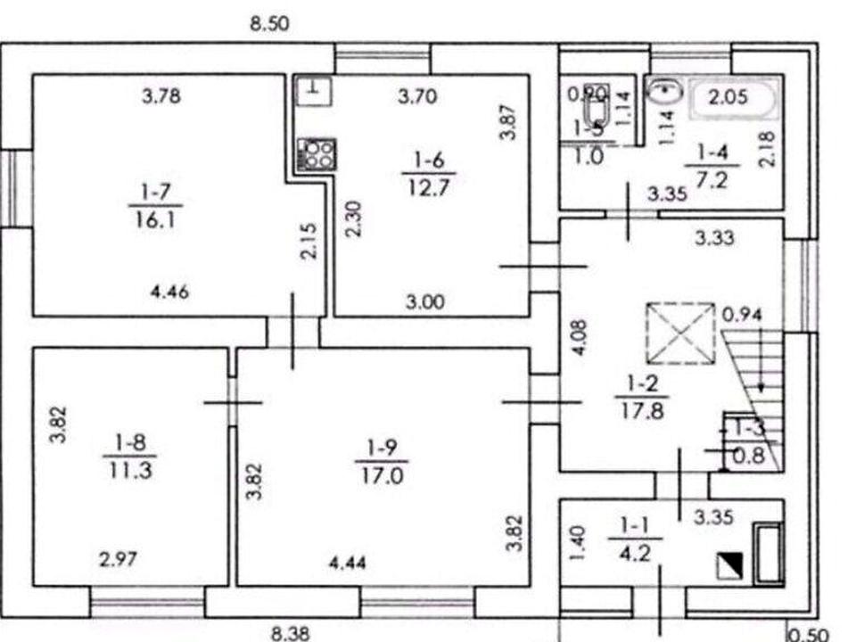
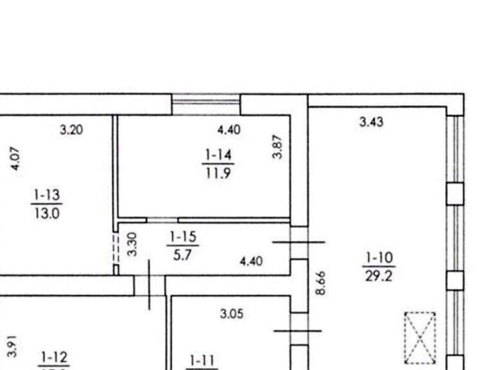
198 / 87.1 / 12.7 м²
2 поверхи
19 сот
Будинок
6 кімнат і більше
5 днів тому
5 міс. тому
61 (сьогодні 4, вчора 0)
Опис
Продам будинок в Березанівці!По вулиці Моторній
2 поверхи, 198 кв.м. 17 соток Червона лінія . У будинку газ, електрика, вода (своя) Газове опалення, котел, дві свердловини, два підвали, навіс під дві машини, вольєр для собаки, хоз. приміщення, є криниця. Двір під охороною.Великий сад плодових дерев. Затишний двір, зона відпочинку , поруч магазини, ринок, школа, садок, церква, недалеко річка, ліс, турбази. Перший поверх житловий. Другий поверх під ремонтом.

З повагою рієлтор Наталія
АН Рієлтор Дніпро, вул. Мечникова 10Б, оф. 705
Деталі
Будинок, 2 поверхи, 6 кімнат. Матеріал стін - цегляний, фундамент будинку - цегла, матеріал перекриттів - монолітний залізобетон. Під'їзд до будинку - асфальт. Площа ділянки 19 соток. Висота стелі 2.6 метра. Планування кімнат Роздільне. Покриття підлоги - плитка. В будинку немає балконів. Є підвал. У будинку є Пральна машина, Холодильник, Сад/город, Басейн. Своя каналізація. Загальний стан будинку - Частковий ремонт. Газ природний. Холодна вода - свердловина. Гаряча вода - газовий котел. Опалення центральне. Кількість санвузлів: 1. Покриття даху - шифер. Інтернету немає. Працює без світла - газ. Комісія за послуги 5 %
У будинку є
  • Пральна машина
  • Холодильник
На ділянці є
  • Сад/город
  • Басейн
Рієлтор Дніпро
Верифікований профіль
8
Місяців досвіду
8
Місяців на сайті
Активних оголошень 31
Ексклюзивних об'єктів 0
Рекламна активність 0
Останній візит на сайт сьогодні
Рекомендувати
Історія зміни ціни
03.11.2025 + 47 892 $ 49 000 $
03.11.2025 49 000 грн
Адреса
Вашу скаргу прийнято!
Оберіть спосіб підтвердження
Щоб вашу рекомендацію було зараховано, підтвердіть свою особистість
* Особисті дані не відображатимуться на сайті та слугуватимуть лише для підтвердження особистості.
Як верифікуватись через Дію?
Зчитайте QR-код сканером у застосунку Дія й підтвердьте авторизацію Дія.Підписом
QR-код буде дійсний ще 02:00
Як верифікуватись через Bankid?
Верифікація BankID відкриється у новому вікні. Якщо сторінка верифікації не відкрилася, вікно було заблоковане вашим браузером.
Щоб дозволити відкриття вікна, виконайте такі кроки:

1. Перевірте адресний рядок браузера на повідомлення про помилку або піктограму блокування. Натисніть на нього.
2. Якщо у вас встановлено блокувальник спливаючих вікон, тимчасово відключіть його для цього сайту.
3. Перевірте налаштування вашого браузера і переконайтеся, що блокування спливаючих вікон вимкнено або налаштовано на дозвіл відкриття цього вікна.

Якщо проблема залишається невирішеною, зверніться до нашої служби підтримки.
Як верифікуватись через Дію?
Верифікація Дія відкриється у новому вікні. Якщо сторінка верифікації не відкрилася, вікно було заблоковане вашим браузером.
Щоб дозволити відкриття вікна, виконайте такі кроки:

1. Перевірте адресний рядок браузера на повідомлення про помилку або піктограму блокування. Натисніть на нього.
2. Якщо у вас встановлено блокувальник спливаючих вікон, тимчасово відключіть його для цього сайту.
3. Перевірте налаштування вашого браузера і переконайтеся, що блокування спливаючих вікон вимкнено або налаштовано на дозвіл відкриття цього вікна.

Якщо проблема залишається невирішеною, зверніться до нашої служби підтримки.
Вітаємо!
Рекомендацію зараховано!
Незабаром рекомендація зʼявиться на сторінці рієлтора.
Рекомендацію не зараховано.
Ви вже залишали рекомендацію даному рієлтору.
В пропозиції є незбережені дані.