173 000 $
1 648  $/м²
Широка вул.
БЕЗ КОМІСІЇ єОселя єВідновлення Кам'янка
105 / 59 / 17 м²
1 поверх
5 сот
Будинок
4 кімнати
2025 рік побудови
2 міс. тому
3 міс. тому
62 (сьогодні 0, вчора 0)
Опис
Пропонується стильний одноповерховий будинок (новобудова 2025 року) з ремонтом та терасою, площею 105 м², у тихому місці, ідеальний для комфортного життя всієї родини.
Стан - з ремонтом.
За адресою вул. Широка, «за круглим АТБ» біля ж/м Ломівський (Фрунзенський).
Локація - поєднання тихого приватного сектору та інфрастурктури поруч!

Переваги будинку:
- елегантний дизайн: сучасна архітектура з акцентом на натуральні матеріали – комбіноване оздоблення фасаду термодеревиною та штукатуркою
- просторий і світлий: панорамні вікна наповнюють будинок природним світлом
- зручне планування
- простора кухня-вітальня з виходом на терасу
- три затишні спальні
- 2 санвузли
- технічна кімната
- енергоефективність: якісні матеріали та унікальна технологія фундаменту УШП забезпечують тепло взимку та прохолоду влітку.

Будинок оснащений:
- паркувальним місцем на 2 машини
- доріжками
- автономною каналізацією
- опалення електрокотел Протерм (Чехія)
- розумний насоc для води DAB (Італія)
- електроенергія 20 кВт
- укомплектованою сантехнікою
- душ, ванна
- є можливість підключити систему "Розумний будинок"

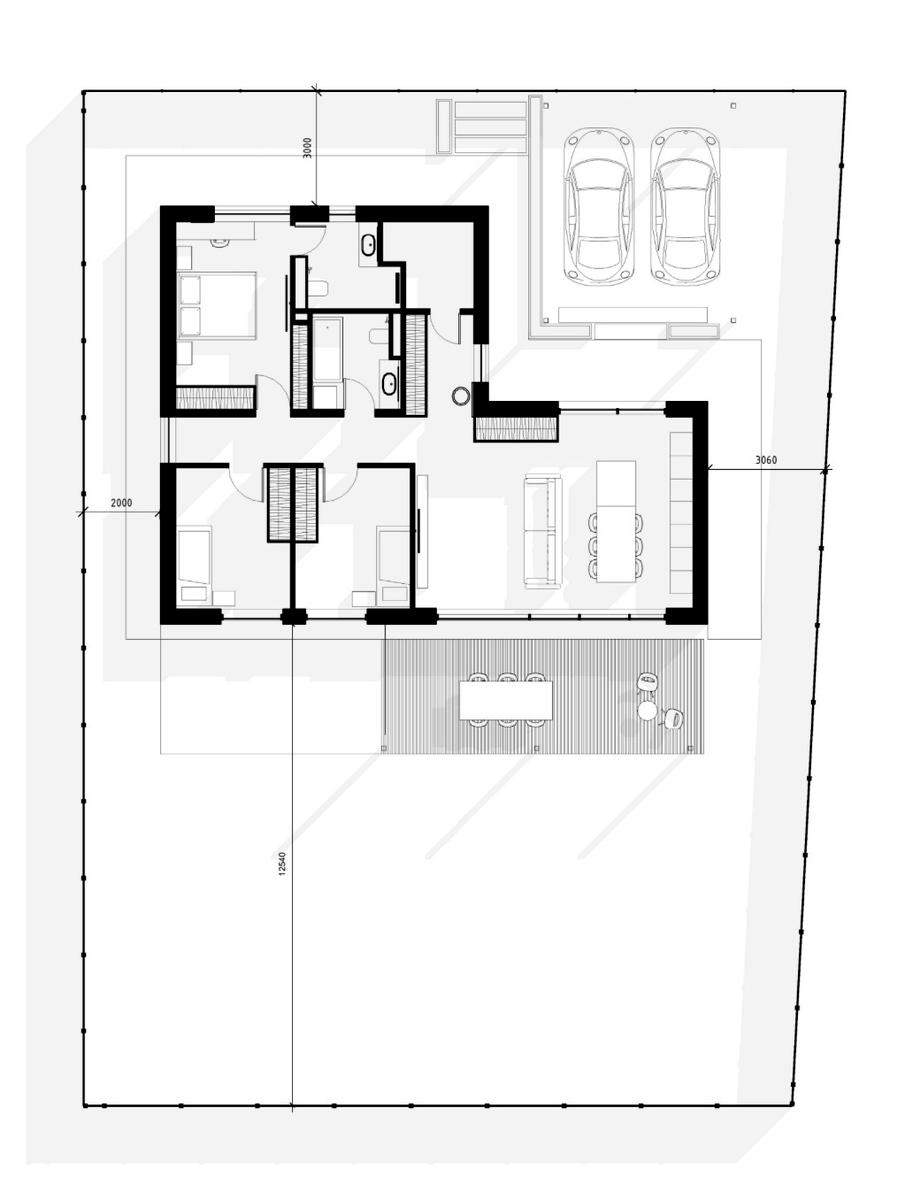
Планування :
- тамбур 5 м²
- топкова 5 м²
- кухня - вітальня 38 м²
- коридор 7 м²
- гостьовий санвузол 6 м²
- 1 дитяча 11 м²
- 2 дитяча 11 м²
- майстер-спальня 16 м²
- господарський санвузол 6 м²

Будинок розташований на затишній території з місцем для озеленення та відпочинку. Ділянка 5 соток. Заїзд до будинку з двох сторін.

Поруч є все необхідне для комфортного життя: АТБ, відділення Нової Пошти, школа, садочок, храм, СТО, зупинки громадського транспорту. В районі знаходяться спортивний зал, Варус, відділення банків, заправки OKKO, WOG та аптеки.
Поряд з будинком відсутні об'єкти стратегічної інфраструктури. Тихо і безпечно!

Вартість: $173,000 з ремонтом (за умови оплати одним платежем)
Вартість: $186,000 з ремонтом (при купівлі через єОселю)

Запрошую Вас на показ!
Деталі
Будинок, 1 поверх, 4 кімнати. Площа ділянки 5 соток. Планування кімнат Роздільне. У будинку є Ванна, Тераса. Будинок побудований в 2025 році. Загальний стан будинку - З ремонтом. Власник погоджується продати по програмі єОселя. Власник погоджується продати по програмі єВідновлення. Без комісії
У будинку є
  • Ванна
На ділянці є
  • Тераса
Верифікований профіль
3
Роки досвіду
3
Роки на сайті
Активних оголошень 14
Ексклюзивних об'єктів 0
Рекламна активність 0
Останній візит на сайт сьогодні
Рекомендувати
Адреса
Вашу скаргу прийнято!
Оберіть спосіб підтвердження
Щоб вашу рекомендацію було зараховано, підтвердіть свою особистість
* Особисті дані не відображатимуться на сайті та слугуватимуть лише для підтвердження особистості.
Як верифікуватись через Дію?
Зчитайте QR-код сканером у застосунку Дія й підтвердьте авторизацію Дія.Підписом
QR-код буде дійсний ще 02:00
Як верифікуватись через Bankid?
Верифікація BankID відкриється у новому вікні. Якщо сторінка верифікації не відкрилася, вікно було заблоковане вашим браузером.
Щоб дозволити відкриття вікна, виконайте такі кроки:

1. Перевірте адресний рядок браузера на повідомлення про помилку або піктограму блокування. Натисніть на нього.
2. Якщо у вас встановлено блокувальник спливаючих вікон, тимчасово відключіть його для цього сайту.
3. Перевірте налаштування вашого браузера і переконайтеся, що блокування спливаючих вікон вимкнено або налаштовано на дозвіл відкриття цього вікна.

Якщо проблема залишається невирішеною, зверніться до нашої служби підтримки.
Як верифікуватись через Дію?
Верифікація Дія відкриється у новому вікні. Якщо сторінка верифікації не відкрилася, вікно було заблоковане вашим браузером.
Щоб дозволити відкриття вікна, виконайте такі кроки:

1. Перевірте адресний рядок браузера на повідомлення про помилку або піктограму блокування. Натисніть на нього.
2. Якщо у вас встановлено блокувальник спливаючих вікон, тимчасово відключіть його для цього сайту.
3. Перевірте налаштування вашого браузера і переконайтеся, що блокування спливаючих вікон вимкнено або налаштовано на дозвіл відкриття цього вікна.

Якщо проблема залишається невирішеною, зверніться до нашої служби підтримки.
Вітаємо!
Рекомендацію зараховано!
Незабаром рекомендація зʼявиться на сторінці рієлтора.
Рекомендацію не зараховано.
Ви вже залишали рекомендацію даному рієлтору.
В пропозиції є незбережені дані.