40 000 $
930  $/м²
БЕЗ КОМІСІЇ ЖК Country House
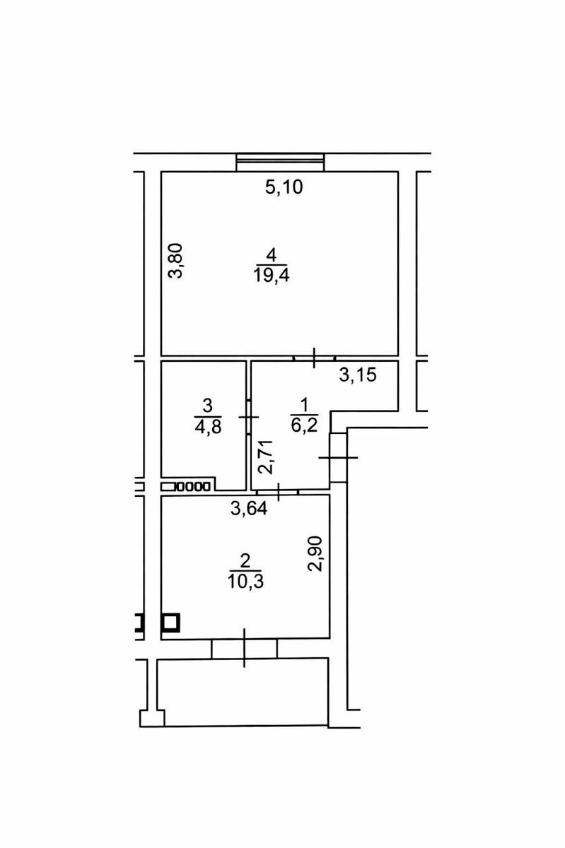
43 / 19.4 / 10.3 м²
поверх 2 з 5
Монолітно-каркасна
Спец. проект
2015 рік побудови
5 днів тому
5 днів тому
58 (сьогодні 8, вчора 7)
Опис
Простора 1-кімнатна квартира в ЖК Country House (с. Гора)
БЕЗ КОМІСІЇ ДЛЯ ПОКУПЦЯ
Продаж світлої квартири площею 43 м² у сучасному малоповерховому комплексі за адресою: вул. Центральна, 38-В. Квартира розташована на зручному 2-му поверсі 5-поверхового будинку.
Основні характеристики та переваги:
• Стан: Абсолютно новий ремонт, у квартирі ніхто не проживав. Усе облаштовувалося «для себе» з використанням кращих матеріалів (мідна проводка, якісна плитка, професійне виконання робіт).
• Планування: Функціональне та продумане — велика окрема спальня, простора кухня, гардеробна кімната та суміжний санвузол.
• Додаткова площа: Утеплена лоджія з виведеним радіатором опалення, що може слугувати кабінетом або зоною відпочинку.
• Енергонезалежність: Індивідуальне газове опалення (двоконтурний котел). Можна встановити акумулятор для безперебійної роботи системи опалення при відключеннях світла. Приготування їжі на газу.
• Водопостачання: Власна свердловина комплексу (насоси підключені до генератора).
Локація та комфорт:
• Закрита територія ЖК, поруч хвойний ліс — ідеальне місце для прогулянок та свіжого повітря.
• Власне паркомісце у дворі закріплене за квартирою.
• Зручна транспортна розв'язка та розвинена інфраструктура селища.

Ціна: $40 000 (або найкраща пропозиція)

Об’єкт готовий до перегляду та швидкого продажу.
Запис на перегляд:
Телефонуйте, представник власника — Андрій.
Деталі
В квартирі 1 кімната, висота стелі 2.75 метра, Технологія будівництва - Монолітно-каркасна, Тип будинку - Спец. проект. Є газ. Є балкон. Будинок побудований в 2015 році. Загальний стан квартири - З ремонтом. Гаряча вода - газовий котел. Кількість санвузлів: 1. Працює без світла - вода, газ, опалення. Тип кухні - окрема кухня. Кількість спален: 1. Немає підземного паркінгу, доступного як укриття. Інфраструктура території: дитячий майданчик. Без комісії
Верифікований профіль
7
Років досвіду
7
Років на сайті
Активних оголошень 2
Ексклюзивних об'єктів 0
Рекламна активність 1041
Останній візит на сайт 2 дні тому
Рекомендувати
Планування

Адреса
Вашу скаргу прийнято!
Оберіть спосіб підтвердження
Щоб вашу рекомендацію було зараховано, підтвердіть свою особистість
* Особисті дані не відображатимуться на сайті та слугуватимуть лише для підтвердження особистості.
Як верифікуватись через Дію?
Зчитайте QR-код сканером у застосунку Дія й підтвердьте авторизацію Дія.Підписом
QR-код буде дійсний ще 02:00
Як верифікуватись через Bankid?
Верифікація BankID відкриється у новому вікні. Якщо сторінка верифікації не відкрилася, вікно було заблоковане вашим браузером.
Щоб дозволити відкриття вікна, виконайте такі кроки:

1. Перевірте адресний рядок браузера на повідомлення про помилку або піктограму блокування. Натисніть на нього.
2. Якщо у вас встановлено блокувальник спливаючих вікон, тимчасово відключіть його для цього сайту.
3. Перевірте налаштування вашого браузера і переконайтеся, що блокування спливаючих вікон вимкнено або налаштовано на дозвіл відкриття цього вікна.

Якщо проблема залишається невирішеною, зверніться до нашої служби підтримки.
Як верифікуватись через Дію?
Верифікація Дія відкриється у новому вікні. Якщо сторінка верифікації не відкрилася, вікно було заблоковане вашим браузером.
Щоб дозволити відкриття вікна, виконайте такі кроки:

1. Перевірте адресний рядок браузера на повідомлення про помилку або піктограму блокування. Натисніть на нього.
2. Якщо у вас встановлено блокувальник спливаючих вікон, тимчасово відключіть його для цього сайту.
3. Перевірте налаштування вашого браузера і переконайтеся, що блокування спливаючих вікон вимкнено або налаштовано на дозвіл відкриття цього вікна.

Якщо проблема залишається невирішеною, зверніться до нашої служби підтримки.
Вітаємо!
Рекомендацію зараховано!
Незабаром рекомендація зʼявиться на сторінці рієлтора.
Рекомендацію не зараховано.
Ви вже залишали рекомендацію даному рієлтору.
В пропозиції є незбережені дані.