2 600 $/міс
13  $/м²
приміщення вільного призначення
200 м²
4 дні тому
5 міс. тому
31 (сьогодні 0, вчора 0)
Опис
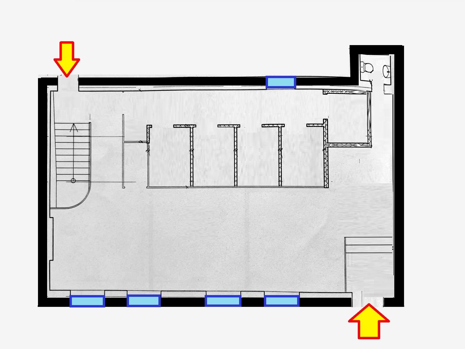
Оренда фасадного приміщення. вул. К. Левицького-бл. Центр. (2.600$.). Площа 200 кв.м. Приміщення має два рівні — функціональне зонування для зручності роботи працівників та відвідувачів. Перший рівень-120 кв.м., другий рівень-підвал-80 кв.м. Фасадний вхід. та великі вікна — максимальна видимість і рекламний потенціал. Ближній центр міста — прохідне місце з постійним потоком людей і транспорту. Євро-ремонт, кабінетна система з перегородок. В кімнатах встановлені умивальники. Є санвузол, облаштована кухня. Ще один додатковий вихід у внутрішній двір. Протипожежна система, сигналізація-ДСО. Інтернет. 4 кондиціонери. вентиляція. є генератор. Своє опалення-котельня. Є всі лічильники на комунальні. Двері та вікна броньовані. Добре підійде під Медичну установу (Стоматологія, косметологія, медичний центр). Анна
Деталі
Об'єкт комерційної нерухомості, Частина будівлі, Приміщення вільного призначення. Комісія за послуги 100 %
Delim
Верифікований профіль
17
Років досвіду
7
Верифікованих рекомендацій
2
Роки на сайті
Активних оголошень 140
Ексклюзивних об'єктів 0
Рекламна активність 3552
Останній візит на сайт сьогодні
Рекомендувати
Історія зміни ціни
10.02.2026 - 1 000 $ 2 600 $
12.11.2025 3 600 $
Адреса
Вашу скаргу прийнято!
Оберіть спосіб підтвердження
Щоб вашу рекомендацію було зараховано, підтвердіть свою особистість
* Особисті дані не відображатимуться на сайті та слугуватимуть лише для підтвердження особистості.
Як верифікуватись через Дію?
Зчитайте QR-код сканером у застосунку Дія й підтвердьте авторизацію Дія.Підписом
QR-код буде дійсний ще 02:00
Як верифікуватись через Bankid?
Верифікація BankID відкриється у новому вікні. Якщо сторінка верифікації не відкрилася, вікно було заблоковане вашим браузером.
Щоб дозволити відкриття вікна, виконайте такі кроки:

1. Перевірте адресний рядок браузера на повідомлення про помилку або піктограму блокування. Натисніть на нього.
2. Якщо у вас встановлено блокувальник спливаючих вікон, тимчасово відключіть його для цього сайту.
3. Перевірте налаштування вашого браузера і переконайтеся, що блокування спливаючих вікон вимкнено або налаштовано на дозвіл відкриття цього вікна.

Якщо проблема залишається невирішеною, зверніться до нашої служби підтримки.
Як верифікуватись через Дію?
Верифікація Дія відкриється у новому вікні. Якщо сторінка верифікації не відкрилася, вікно було заблоковане вашим браузером.
Щоб дозволити відкриття вікна, виконайте такі кроки:

1. Перевірте адресний рядок браузера на повідомлення про помилку або піктограму блокування. Натисніть на нього.
2. Якщо у вас встановлено блокувальник спливаючих вікон, тимчасово відключіть його для цього сайту.
3. Перевірте налаштування вашого браузера і переконайтеся, що блокування спливаючих вікон вимкнено або налаштовано на дозвіл відкриття цього вікна.

Якщо проблема залишається невирішеною, зверніться до нашої служби підтримки.
Вітаємо!
Рекомендацію зараховано!
Незабаром рекомендація зʼявиться на сторінці рієлтора.
Рекомендацію не зараховано.
Ви вже залишали рекомендацію даному рієлтору.
В пропозиції є незбережені дані.