113 280 $
1 200  $/м²
Рудненська вул. (Білогорська), (2 черга (будинок 4))
БЕЗ КОМІСІЇ єОселя єВідновлення Левандівка
ЖК Riel City
94.4 / 50.9 / 14.4 м²
поверх 12 з 12
Монолітно-каркасна
Спец. проект
2022 рік побудови
вчора
1 міс. тому
4 (сьогодні 0, вчора 0)
Опис
ПРОДАЖ КВАРТИРИ В 0-ЦИКЛІ
БЕЗ КОМІСІЇ ДЛЯ ПОКУПЦЯ
МОЖЛИВА КУПІВЛЯ ПІД ДЕРЖАВНІ ПРОГРАМИ

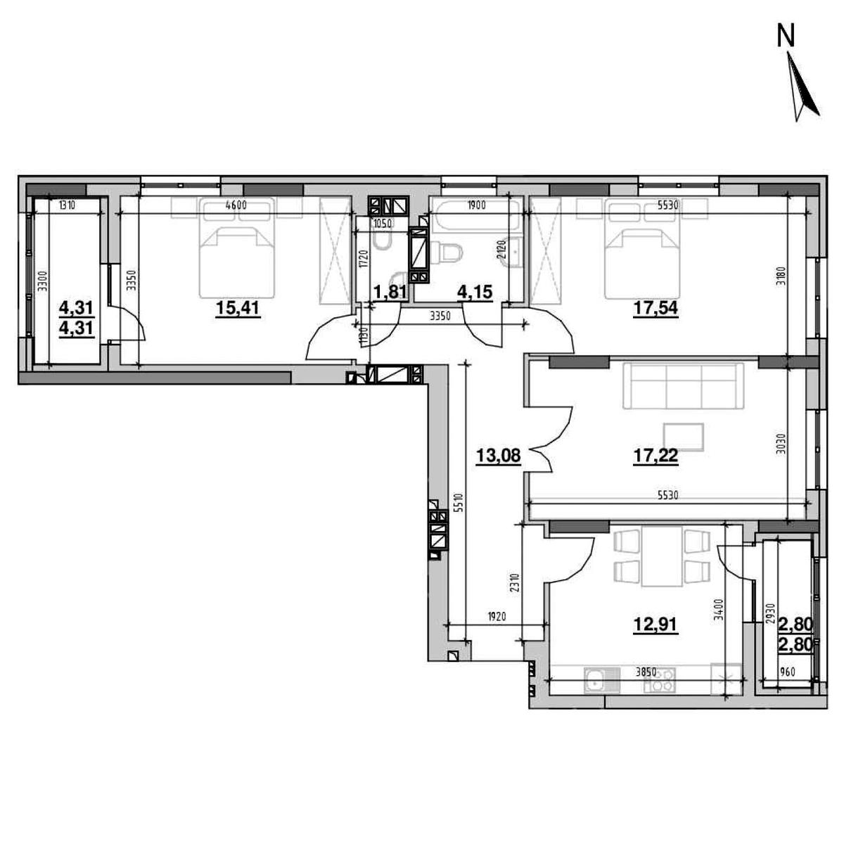
Адреса — місто Львів, вулиця Гніздовського, 75.
Кількість кімнат — трикімнатна квартира.
Поверх — 12 з 12.
Квартира в 0-циклі, тобто ще без ремонту.
Матеріал стін — газоблок.

Загальна площа — 94.4 м², житлова — 50.9 м², кухня — 14.4 м².
Опалення — будинкове, дахова котельня.
Санвузол — два.
Лоджії — дві, засклені.

Будинок введений в експлуатацію в 2022 році.
Продаж з правом власності.

Можливе розтермінування: перший внесок — від 30%, розтермінування — до червня 2026 року.

Особливості даної квартири — квартира двостороння, гарне, правильне планування, дві лоджії. Квартира в житловому комплексі з відкритою інфраструктурою на території. Внутрішні двори комплексу з парковою зоною, закриті для проїзду автомобілів, облаштовані широкими пішохідними доріжками з місцями для відпочинку та альтанками для великих компаній. Для маленьких мешканців комплексу «Ріел Сіті» будуть обладнані 6 дитячих ігрових майданчиків. У комплексі передбачені гостьові та підземні паркінги. Вся територія доступна для людей з обмеженими можливостями.
Поруч з будинком: супермаркети Близенько, Рукавичка, Чистенько, зупинка громадського транспорту, салон краси, дитячий садок, відділення пошти.
Ми надаємо повний цикл: девелопмент, дизайн проект, ремонт та подальший продаж, або професійне управління нерухомістю для задачі в оренду.

Код обʼєкта: 5127 (2)
Деталі
В квартирі 3 кімнати, висота стелі 2.6 метра, Технологія будівництва - Монолітно-каркасна, Тип будинку - Спец. проект. Планування кімнат Роздільне. Немає газу. Є 2 балкони. Будинок побудований в 2022 році. Загальний стан квартири - Без ремонту. Гаряча вода - електричний бойлер. Кількість санвузлів: 2. Інтернету немає. Власник погоджується продати по програмі єОселя. Працює без світла - вода, опалення. Власник погоджується продати по програмі єВідновлення. Тип кухні - окрема кухня. Кількість спален: 3. Без комісії
Відділ продажу “КупиБезКомісії”
Верифікований профіль
3
Роки досвіду
8
Місяців на сайті
Активних оголошень 48
Ексклюзивних об'єктів 0
Рекламна активність 5856
Останній візит на сайт вчора
Рекомендувати
Адреса
будинків здано 87
рік заснування 2003
будинків в процесі 48
Вашу скаргу прийнято!
Оберіть спосіб підтвердження
Щоб вашу рекомендацію було зараховано, підтвердіть свою особистість
* Особисті дані не відображатимуться на сайті та слугуватимуть лише для підтвердження особистості.
Як верифікуватись через Дію?
Зчитайте QR-код сканером у застосунку Дія й підтвердьте авторизацію Дія.Підписом
QR-код буде дійсний ще 02:00
Як верифікуватись через Bankid?
Верифікація BankID відкриється у новому вікні. Якщо сторінка верифікації не відкрилася, вікно було заблоковане вашим браузером.
Щоб дозволити відкриття вікна, виконайте такі кроки:

1. Перевірте адресний рядок браузера на повідомлення про помилку або піктограму блокування. Натисніть на нього.
2. Якщо у вас встановлено блокувальник спливаючих вікон, тимчасово відключіть його для цього сайту.
3. Перевірте налаштування вашого браузера і переконайтеся, що блокування спливаючих вікон вимкнено або налаштовано на дозвіл відкриття цього вікна.

Якщо проблема залишається невирішеною, зверніться до нашої служби підтримки.
Як верифікуватись через Дію?
Верифікація Дія відкриється у новому вікні. Якщо сторінка верифікації не відкрилася, вікно було заблоковане вашим браузером.
Щоб дозволити відкриття вікна, виконайте такі кроки:

1. Перевірте адресний рядок браузера на повідомлення про помилку або піктограму блокування. Натисніть на нього.
2. Якщо у вас встановлено блокувальник спливаючих вікон, тимчасово відключіть його для цього сайту.
3. Перевірте налаштування вашого браузера і переконайтеся, що блокування спливаючих вікон вимкнено або налаштовано на дозвіл відкриття цього вікна.

Якщо проблема залишається невирішеною, зверніться до нашої служби підтримки.
Вітаємо!
Рекомендацію зараховано!
Незабаром рекомендація зʼявиться на сторінці рієлтора.
Рекомендацію не зараховано.
Ви вже залишали рекомендацію даному рієлтору.
В пропозиції є незбережені дані.