ПРЕМІУМ БЕЗ КОМІСІЇ єОселя єВідновлення Левандівка
ЖК Riel City
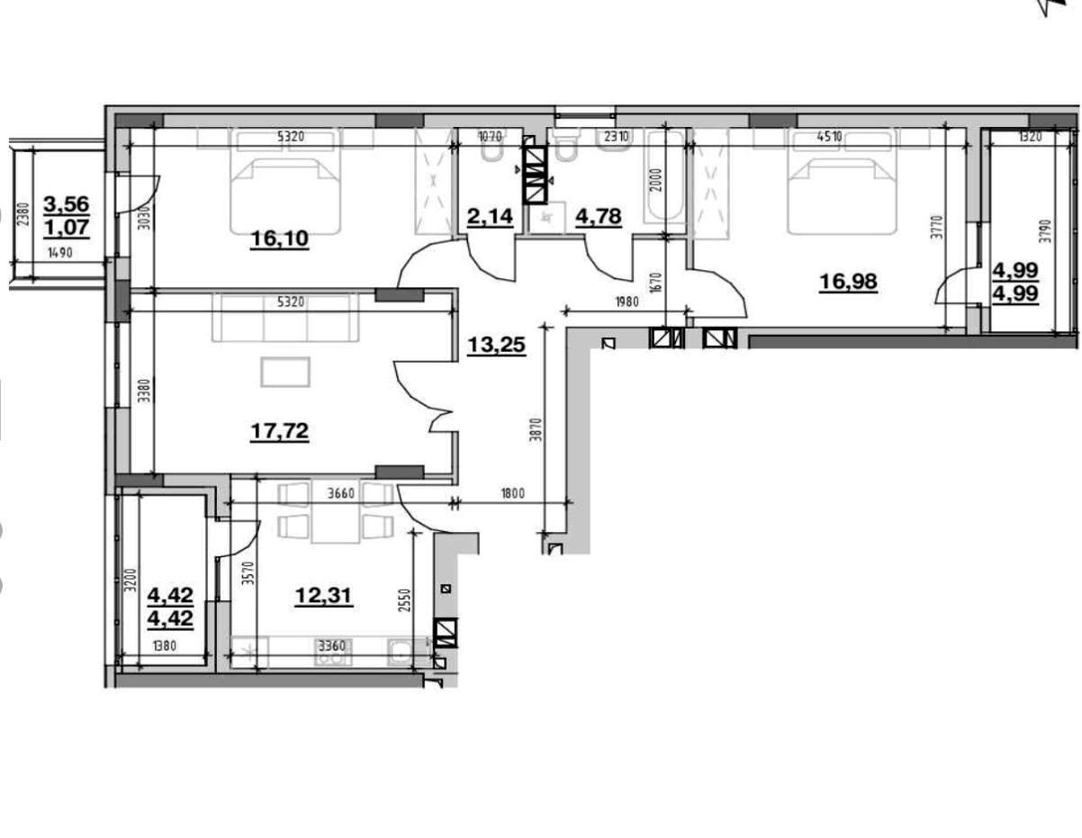
98.1 / 50 / 12.31 м²
поверх 6 з 12
Монолітно-каркасна
Спец. проект
2022 рік побудови
вчора
1 тиж. тому
12 (сьогодні 0, вчора 0)
Опис
Продаж 3-кімнатної квартири в сучасному житловому комплексі ЖК «Riel City». Простора та функціональна квартира в будинку, який вже зданий — чудовий варіант для проживання або інвестиції.
Вулиця: Рудненська 8

Площа:98.1 м²
Поверх:6/12
Опалення:Газова дахова котельня

Квартира з продуманим плануванням: три окремі кімнати, простора кухня, санвузол та балкон.

Будинок комфорт-класу, збудований за монолітно-каркасною технологією, стіни з газобетону, що забезпечує хорошу тепло- та шумоізоляцію.

Будинок введений в експлуатацію — 2022 рік.
Секція 5А.
Забудовник — Ріел.

Переваги:
• зданий будинок
• 3 ізольовані кімнати
• велика площа
• комфортний середній поверх
• сучасний житловий комплекс
• автономне опалення (дахова котельня)

Доступне розтермінування:
• перший внесок — від 30%
• термін — до 08.2026

Квартира підходить під державні програми:
• єОселя (для ВПО)
• єВідновлення
• інші програми

Ціна:
117 800 $
Телефонуйте або пишіть — відповім на всі питання та допоможу з придбанням!
Деталі
В квартирі 3 кімнати, висота стелі 2.5 метра, Технологія будівництва - Монолітно-каркасна, Тип будинку - Спец. проект. Є газ, кухонна плита електрична. Є 3 балкони. Будинок побудований в 2022 році. Загальний стан квартири - Без ремонту. Кількість санвузлів: 2. Інтернет оптоволоконний. Власник погоджується продати по програмі єОселя. Працює без світла - інтернет. Власник погоджується продати по програмі єВідновлення. Тип кухні - окрема кухня. Кількість спален: 3. Є підземний паркінг, доступний як укриття. Інфраструктура території: дитячий майданчик, спортивний майданчик. Без комісії
Metrum Estate
Верифікований профіль
1
Рік досвіду
10
Місяців на сайті
Активних оголошень 15
Ексклюзивних об'єктів 0
Рекламна активність 3600
Останній візит на сайт вчора
Рекомендувати
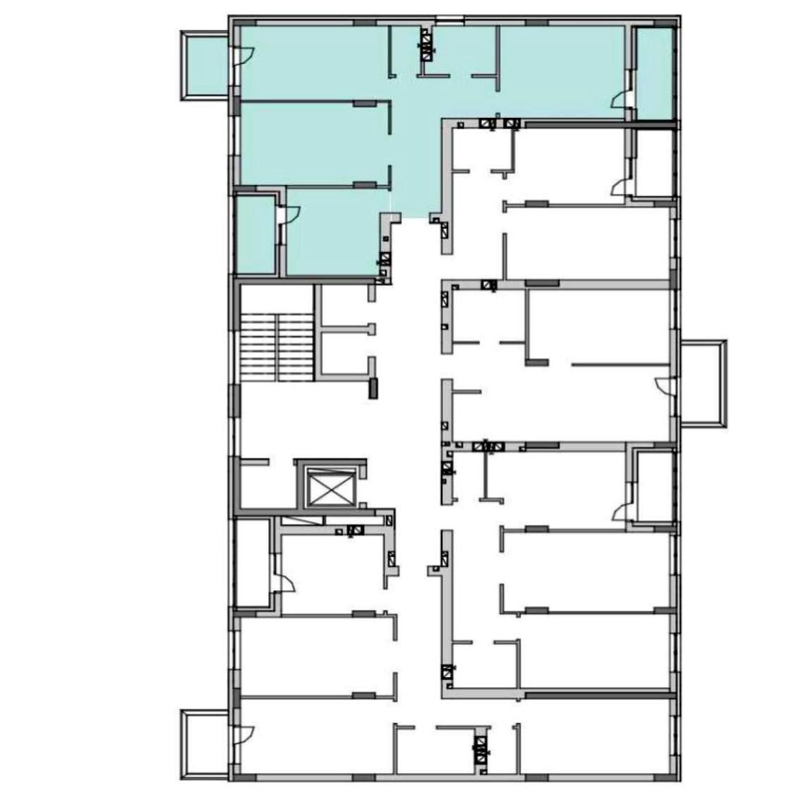
Планування

Адреса
будинків здано 87
рік заснування 2003
будинків в процесі 48
Вашу скаргу прийнято!
Оберіть спосіб підтвердження
Щоб вашу рекомендацію було зараховано, підтвердіть свою особистість
* Особисті дані не відображатимуться на сайті та слугуватимуть лише для підтвердження особистості.
Як верифікуватись через Дію?
Зчитайте QR-код сканером у застосунку Дія й підтвердьте авторизацію Дія.Підписом
QR-код буде дійсний ще 02:00
Як верифікуватись через Bankid?
Верифікація BankID відкриється у новому вікні. Якщо сторінка верифікації не відкрилася, вікно було заблоковане вашим браузером.
Щоб дозволити відкриття вікна, виконайте такі кроки:

1. Перевірте адресний рядок браузера на повідомлення про помилку або піктограму блокування. Натисніть на нього.
2. Якщо у вас встановлено блокувальник спливаючих вікон, тимчасово відключіть його для цього сайту.
3. Перевірте налаштування вашого браузера і переконайтеся, що блокування спливаючих вікон вимкнено або налаштовано на дозвіл відкриття цього вікна.

Якщо проблема залишається невирішеною, зверніться до нашої служби підтримки.
Як верифікуватись через Дію?
Верифікація Дія відкриється у новому вікні. Якщо сторінка верифікації не відкрилася, вікно було заблоковане вашим браузером.
Щоб дозволити відкриття вікна, виконайте такі кроки:

1. Перевірте адресний рядок браузера на повідомлення про помилку або піктограму блокування. Натисніть на нього.
2. Якщо у вас встановлено блокувальник спливаючих вікон, тимчасово відключіть його для цього сайту.
3. Перевірте налаштування вашого браузера і переконайтеся, що блокування спливаючих вікон вимкнено або налаштовано на дозвіл відкриття цього вікна.

Якщо проблема залишається невирішеною, зверніться до нашої служби підтримки.
Вітаємо!
Рекомендацію зараховано!
Незабаром рекомендація зʼявиться на сторінці рієлтора.
Рекомендацію не зараховано.
Ви вже залишали рекомендацію даному рієлтору.
В пропозиції є незбережені дані.