ПРЕМІУМ
Комісія 3%
231 / 73.7 / 18 м²
2 поверхи
18 сот
Будинок
4 кімнати
сьогодні
5 міс. тому
309 (сьогодні 2,
вчора 2)
Опис
Продаж будинку в селі Мархалівка, Фастівський район (Васильківський) в 12 км від метро
Теремки.
Основний будинок 135 кв.м та окрема будівля 96 кв.м. розташовані на земельній ділянці 18
соток.
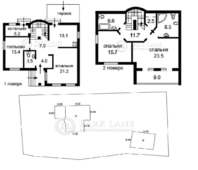
Планування: дві спальні 23,5 і 15,7 м. кв., зала 21, гостьова кімната/кабінет 13,4 м.кв, кухня 13 м.кв, три санвузли. Будинок має індивідуальне архітектурне планування та інтерʼєрний дизайн. Приміщення світлі та просторі з висотою стелі 3 метри. Будинок віддалений від траси(1,5 кМ) та вулиці (власний заїзд 48 м), що сприяє особливій затишності.
Всі міжкімнатні двері та більшість меблів виконані індивідуально під замовлення з екологічної деревини: ясен, дуб, береза. В спальнях і гостьовій кімнаті дубовий та ясеневий паркет.
Міжповерхові сходи виготовлені з монолітного бетону, оздобленого керамічною плиткою.
Опалення та гаряче водопостачання - двоконтурний газовий котел. Додатково опалення і гаряча вода продубльовані електричним котлом та електричним бойлером. Будинок обладнаний теплою підлогою, дров'яним каміном. Будинок прохолодний влітку та теплий взимку. Загальна товщина стін 50 см. Утеплення - фасадною базальтовою мінватою Rocwool.
Міжповерхові перекриття - залізобетонні плити. Криша виконана з керамічної плитки Klincer.
Електропостачання: трьохфазне в будинку і в допоміжному приміщенні з корисним
навантаженням більше 8 кВт.
Інтернет: оптоволоконне підʼєднання, з розведенням кабелем по всім кімнатам.
Водопостачання індивідуальне - артезіанська свердловина. Водовідведення - септик з
бетонних кілець з системою фільтрування. Окрема дренажно-дощова система.
Будинок має простору терасу обладнану перголою. В саду додаткове місце відпочинку -
дерев'яна альтанка.
Ландшафтний дизайн, декоративне освітлення, крапельний полив дерев та автоматичний
полив газону (окремий колодязь на 6 кілець, та ємність для води на 4м.куб). Ділянку
оформлено великою кількістю дорослих дерев та кущів. В саду плодоносні яблуні, груша,
слива, черешня, кизил.
Заїзд і двір замощений тротуарною плиткою товщиною 10 см яка укладена на бетонну основу.
Додаткове приміщення має простории гараж, кімнату на першому поверсі, і дві мансардні
кімнати.
Під додатковим приміщенням знаходяться два ізольовані підвали з окремими виходами.
Будинок має чудове соціально-інфраструктурне розташування:
- пряма асфальтована дорога до траси 1.5 км;
- 500 метрів озеро;
- 1 км ліс;
- в пішій доступності місцеві продуктові магазини;
- 2 км до магазинів Сільпо, Фора;
- в радіусі 2 км декілька ресторанів та кавʼярень;
- 100 м зупинка маршрутного автобуса до Києва.
Будинок цікавий для тих хто любить затишок, спокій та індивідуальність!
Теремки.
Основний будинок 135 кв.м та окрема будівля 96 кв.м. розташовані на земельній ділянці 18
соток.
Планування: дві спальні 23,5 і 15,7 м. кв., зала 21, гостьова кімната/кабінет 13,4 м.кв, кухня 13 м.кв, три санвузли. Будинок має індивідуальне архітектурне планування та інтерʼєрний дизайн. Приміщення світлі та просторі з висотою стелі 3 метри. Будинок віддалений від траси(1,5 кМ) та вулиці (власний заїзд 48 м), що сприяє особливій затишності.
Всі міжкімнатні двері та більшість меблів виконані індивідуально під замовлення з екологічної деревини: ясен, дуб, береза. В спальнях і гостьовій кімнаті дубовий та ясеневий паркет.
Міжповерхові сходи виготовлені з монолітного бетону, оздобленого керамічною плиткою.
Опалення та гаряче водопостачання - двоконтурний газовий котел. Додатково опалення і гаряча вода продубльовані електричним котлом та електричним бойлером. Будинок обладнаний теплою підлогою, дров'яним каміном. Будинок прохолодний влітку та теплий взимку. Загальна товщина стін 50 см. Утеплення - фасадною базальтовою мінватою Rocwool.
Міжповерхові перекриття - залізобетонні плити. Криша виконана з керамічної плитки Klincer.
Електропостачання: трьохфазне в будинку і в допоміжному приміщенні з корисним
навантаженням більше 8 кВт.
Інтернет: оптоволоконне підʼєднання, з розведенням кабелем по всім кімнатам.
Водопостачання індивідуальне - артезіанська свердловина. Водовідведення - септик з
бетонних кілець з системою фільтрування. Окрема дренажно-дощова система.
Будинок має простору терасу обладнану перголою. В саду додаткове місце відпочинку -
дерев'яна альтанка.
Ландшафтний дизайн, декоративне освітлення, крапельний полив дерев та автоматичний
полив газону (окремий колодязь на 6 кілець, та ємність для води на 4м.куб). Ділянку
оформлено великою кількістю дорослих дерев та кущів. В саду плодоносні яблуні, груша,
слива, черешня, кизил.
Заїзд і двір замощений тротуарною плиткою товщиною 10 см яка укладена на бетонну основу.
Додаткове приміщення має простории гараж, кімнату на першому поверсі, і дві мансардні
кімнати.
Під додатковим приміщенням знаходяться два ізольовані підвали з окремими виходами.
Будинок має чудове соціально-інфраструктурне розташування:
- пряма асфальтована дорога до траси 1.5 км;
- 500 метрів озеро;
- 1 км ліс;
- в пішій доступності місцеві продуктові магазини;
- 2 км до магазинів Сільпо, Фора;
- в радіусі 2 км декілька ресторанів та кавʼярень;
- 100 м зупинка маршрутного автобуса до Києва.
Будинок цікавий для тих хто любить затишок, спокій та індивідуальність!
Деталі
Будинок, 2 поверхи, 4 кімнати. Площа ділянки 18 соток. Планування кімнат Суміжно-роздільне. У будинку є Підігрів підлоги, Камін, Ванна, Автополив, Газон, Гараж, Тераса, Бесідка. Загальний стан будинку - З ремонтом. Комісія за послуги 3 %
У будинку є
-
Підігрів підлоги
-
Камін
-
Ванна
На ділянці є
-
Автополив
-
Газон
-
Гараж
-
Тераса
-
Бесідка

Історія зміни ціни
| 06.03.2026 | - 90 $ | 219 900 $ |
| 11.12.2025 | 219 990 $ |


