293 400 $
1 800  $/м²
Травнева вул., 1
 Кадастровий номер верифіковано БЕЗ КОМІСІЇ КМ PROЦВІТ VILLAGE
163 / 94 / 21 м²
2 поверхи
10 сот
Будинок
5 кімнат
2022 рік побудови
1 тиж. тому
5 міс. тому
48 (сьогодні 1, вчора 1)
Опис
Пропонується у продажу будинок в КМ PROцвіт Village всього в 20 хвилинах від Києва - елітне котеджне містечко на в'їзді в мальовниче село Процвіт! (Бориспільський район)

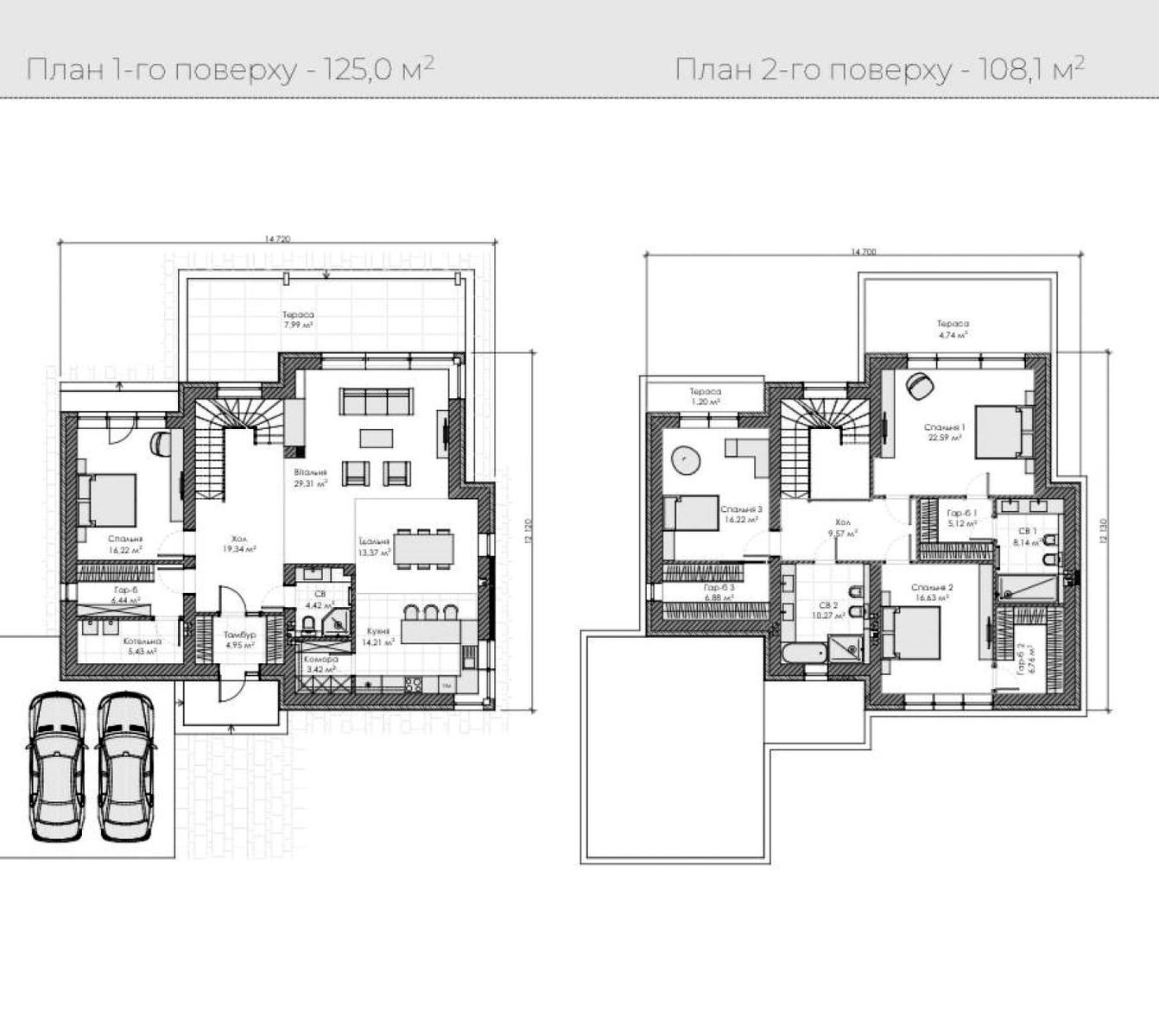
Загальна площа будинку: 163м2

Стіни:
Фасадна плитка Loft-Brick-20мм
теплоізоляція з мінераловатних плит-100мм
Цегляна стіна-380мм
Є вся проектна документація, по запиту відправимо

Планування:

1 поверх 87.7м2:
Тамбур - 3.4 м2
Паливна - 5.0м2
Хол - 13.5м2
Кухня – 9.6м2
Їдальня – 12м2
Вітальня – 19м2
Санвузол – 5,2м2
Спальня – 15.8м2
Тераса –4.2м2

2 поверх 75.3м2:
Хол - 8.7м2
С/в1 - 5,4м2
Спальня1 - 14.6м2
Гардероб1 - 3.4м2
Спальня2 – 15,4м2
Спальня3 – 17,3м2
С/в2 – 5,5м2
Тераса – 5,0м2

Комунікації:
Вода – централізована
Каналізація – централізована
Газ – заведений на ділянку
На будинок підключено електропостачання 15кВк, каналізація/вода, інтернет

На території 38 будинків, де кожен котедж – це витвір мистецтва, що втілює в собі стиль та вишуканість. 200 гектарів лісу оточують це містечко, створюючи атмосферу усамітнення та спокою.

На вас чекають чудові розваги прямо на території містечка: розкішний басейн для ранкових освіжаючих плавань, ресторан високої кухні, тенісні корти для любителів спорту, дитячі майданчики для малюків та тренажерний зал, щоб підтримувати свою форму прямо тут.

Територія, що охороняється, гарантує ваш спокій і безпеку. Тут ви зможете насолоджуватися свободою та приватністю, знаючи, що ваш будинок – щодня наповнений радістю та гармонією.

Не пропустіть можливість стати частиною цього модного міста PRОцвіт Village. Ваш будинок чекає на вас тут, в оточенні природи та розкоші. Тут ваше життя буде насичене умиротворенням природи та розкішшю сучасних зручностей.

Можлива розстрочка на рік без %
Також є понад 15 варіантів з різною квадратурою від 163м2 до 232м2, чекаємо на перегляді).

#315917352369
Деталі
Будинок, 2 поверхи, 5 кімнат. Матеріал стін - керамблок, фундамент будинку - залізобетон, матеріал перекриттів - монолітний залізобетон. Під'їзд до будинку - асфальт. Площа ділянки 10 соток. Висота стелі 3.5 метра. Планування кімнат Суміжно-роздільне. В будинку 1 балкон. Немає підвалу. У будинку є Ванна, Тераса, Басейн. Будинок побудований в 2022 році. Централізована каналізація. Загальний стан будинку - Без ремонту. Газ природний. Холодна вода - водопровід. Опалення котел газовий. Кількість санвузлів: 3. Є дах. Інтернет оптоволоконний. Без комісії
У будинку є
  • Ванна
На ділянці є
  • Тераса
  • Басейн
THE Capital
Верифікований профіль
Platinum partner
3
Роки досвіду
2
Верифіковані рекомендації
3
Роки на сайті
Активних оголошень 71
Ексклюзивних об'єктів 2
Рекламна активність 36968
Останній візит на сайт сьогодні
Рекомендувати
Адреса
с. Проців, Травнева вул., 1
Кадастровий номер 3220886001:01:007:****  верифіковано через реєстр

Ділянка
площа
0.0957 га
власність
Приватна власність
використання
02.01 Для будівництва і обслуговування житлового будинку, господарських будівель і споруд (присадибна ділянка)
категорія
Землі житлової та громадської забудови
Вашу скаргу прийнято!
Оберіть спосіб підтвердження
Щоб вашу рекомендацію було зараховано, підтвердіть свою особистість
* Особисті дані не відображатимуться на сайті та слугуватимуть лише для підтвердження особистості.
Як верифікуватись через Дію?
Зчитайте QR-код сканером у застосунку Дія й підтвердьте авторизацію Дія.Підписом
QR-код буде дійсний ще 02:00
Як верифікуватись через Bankid?
Верифікація BankID відкриється у новому вікні. Якщо сторінка верифікації не відкрилася, вікно було заблоковане вашим браузером.
Щоб дозволити відкриття вікна, виконайте такі кроки:

1. Перевірте адресний рядок браузера на повідомлення про помилку або піктограму блокування. Натисніть на нього.
2. Якщо у вас встановлено блокувальник спливаючих вікон, тимчасово відключіть його для цього сайту.
3. Перевірте налаштування вашого браузера і переконайтеся, що блокування спливаючих вікон вимкнено або налаштовано на дозвіл відкриття цього вікна.

Якщо проблема залишається невирішеною, зверніться до нашої служби підтримки.
Як верифікуватись через Дію?
Верифікація Дія відкриється у новому вікні. Якщо сторінка верифікації не відкрилася, вікно було заблоковане вашим браузером.
Щоб дозволити відкриття вікна, виконайте такі кроки:

1. Перевірте адресний рядок браузера на повідомлення про помилку або піктограму блокування. Натисніть на нього.
2. Якщо у вас встановлено блокувальник спливаючих вікон, тимчасово відключіть його для цього сайту.
3. Перевірте налаштування вашого браузера і переконайтеся, що блокування спливаючих вікон вимкнено або налаштовано на дозвіл відкриття цього вікна.

Якщо проблема залишається невирішеною, зверніться до нашої служби підтримки.
Вітаємо!
Рекомендацію зараховано!
Незабаром рекомендація зʼявиться на сторінці рієлтора.
Рекомендацію не зараховано.
Ви вже залишали рекомендацію даному рієлтору.
В пропозиції є незбережені дані.