1
3 365 $/мес
12
$/м²
БЕЗ КОМИССИИ
Борщаговка
помещение свободного назначения, помещение для оказания услуг, офисное помещение, банковское помещение
283 м²
2 нед. назад
10 мес. назад
67 (сегодня 0,
вчера 0)
Описание
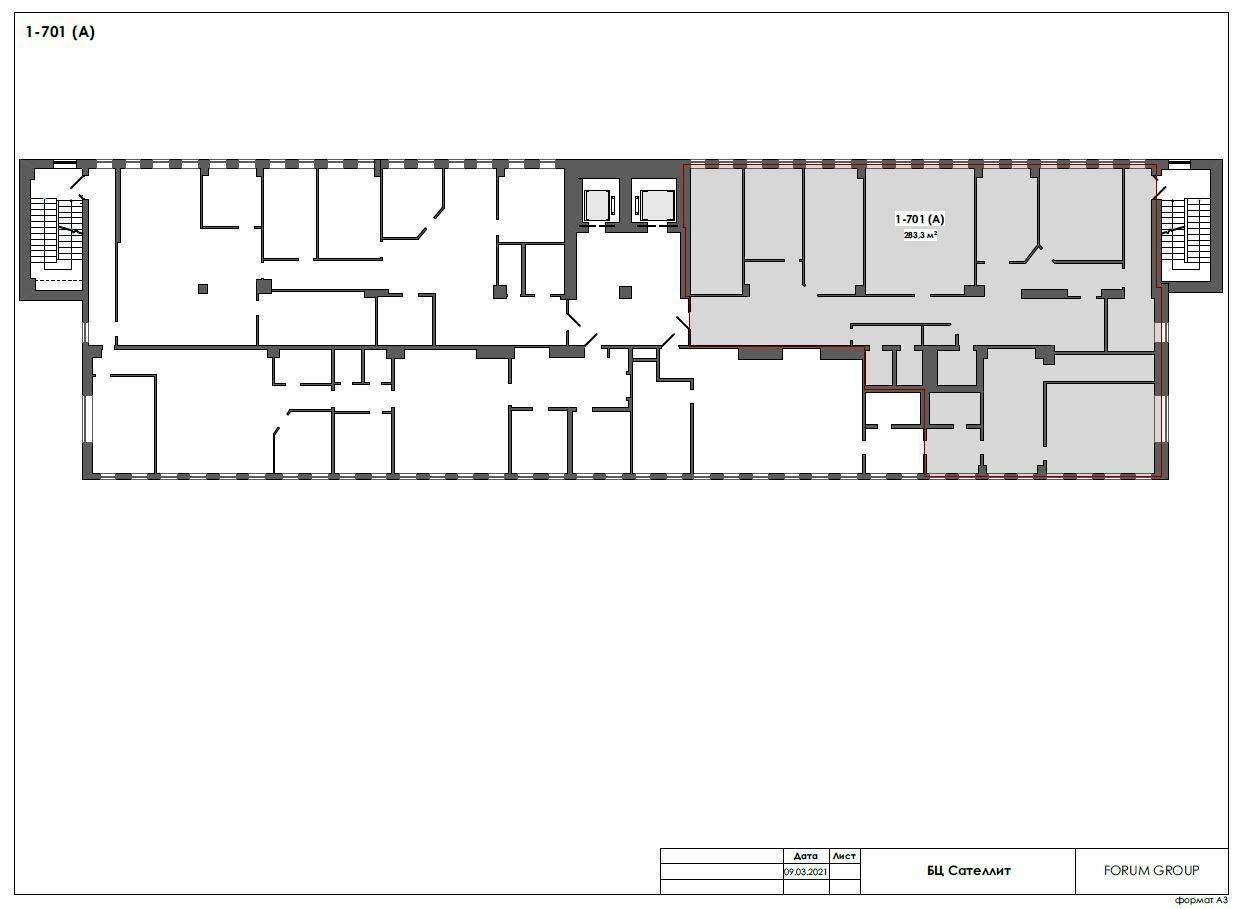
Оренда офісу 283 м² у БЦ Forum Сателіт, вул. Героїв Космосу, 4
Здається в оренду світлий офіс змішана системапланування площею 283 м² (розрахункова — 311 м²) у сучасному бізнес-центрі Forum Сателіт.
Адреса: вул. Героїв Космосу, 4, Святошинський район, Київ
Поверх: 7-й
Приміщення: 1-701(А)
Ціна: 3 365 $ (з ПДВ)
Переваги БЦ Forum Сателіт:
• Автономне опалення (твердопаливна котельня)
• Безперебійне електропостачання та інтернет (оптика)
• Вентиляція, кондиціонування
• Кафе, їдальня, зона барбекю
• Sport & Spa на території
• Велика парковка (300 місць)
• Поштомат Нової пошти, банкомати
• Укриття з Wi-Fi, меблями та обігрівом
• Доступ 24/7, охорона
Транспорт:
• Швидкісний трамвай поруч
• До метро «Святошин» — 2,4 км, «Нивки» — 2,8 км
Звяжіться з нами вже сьогодні, щоб домовитись про перегляд та дізнатися більше
Ваш новий офіс на відстані одного дзвінка.
Здається в оренду світлий офіс змішана системапланування площею 283 м² (розрахункова — 311 м²) у сучасному бізнес-центрі Forum Сателіт.
Адреса: вул. Героїв Космосу, 4, Святошинський район, Київ
Поверх: 7-й
Приміщення: 1-701(А)
Ціна: 3 365 $ (з ПДВ)
Переваги БЦ Forum Сателіт:
• Автономне опалення (твердопаливна котельня)
• Безперебійне електропостачання та інтернет (оптика)
• Вентиляція, кондиціонування
• Кафе, їдальня, зона барбекю
• Sport & Spa на території
• Велика парковка (300 місць)
• Поштомат Нової пошти, банкомати
• Укриття з Wi-Fi, меблями та обігрівом
• Доступ 24/7, охорона
Транспорт:
• Швидкісний трамвай поруч
• До метро «Святошин» — 2,4 км, «Нивки» — 2,8 км
Звяжіться з нами вже сьогодні, щоб домовитись про перегляд та дізнатися більше
Ваш новий офіс на відстані одного дзвінка.
Детали
Объект коммерческой недвижимости, Класс B, Помещение в офисном центре, Банковское помещение, Офисное помещение, Помещение для оказания услуг, Помещение свободного назначения. Объект на 7 этаже, В здании 8 этажей. Без комиссии

Рибалка Роман
Риелтор
| Активных объявлений | 52 |
| Эксклюзивных объектов | 0 |
| Рекламная активность | 0 |
| Последний визит на сайт | 1 неделя назад |
Рекомендовать




































































