10 447 $/мес
16  $/м²
офисное помещение
658 м²
3 нед. назад
8 мес. назад
4 (сегодня 0, вчера 0)
Описание
З РІЕЛТОРАМИ НЕ СПІВПРАЦЮЮ

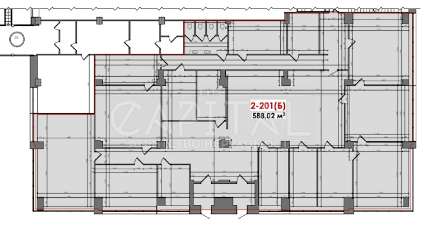
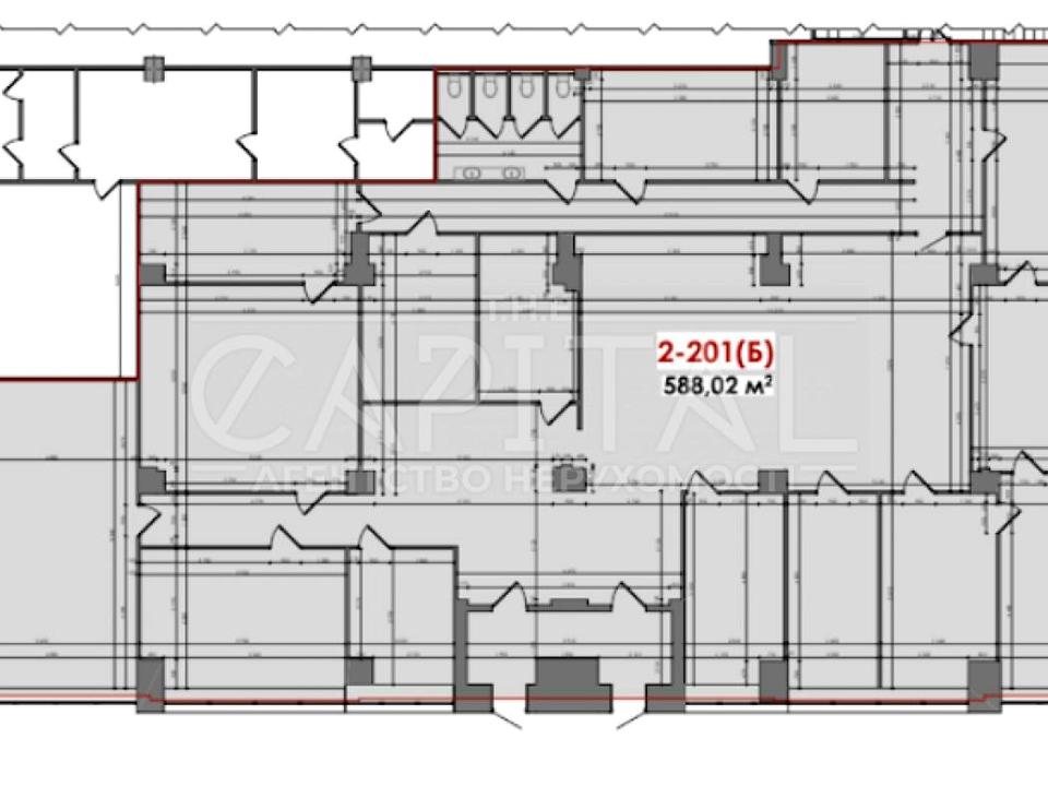
Оренда офісу у БЦ FORUM Victoria Park, що знаходиться в Голосіївський р-н

Площа (корисна) 588,02 м2
Площа (комерційна/розрахункова) 658,58 м2

На території бізнес-комплексу для вашого користування:
майданчик для авто, місця для велосипедів, зарядні станції для електрокарів, відкрита BBQ-зона, йога-кімната, спортмайданчик, кафе та кав’ярні, літня зона відпочинку, стильні лаунж-простори у холах корпусів.

– просторий офіс з окремим входом
– місце для вашої зони ресепшн
– open space?
– зона кухні
– висока стеля
– роздільні санвузли із стильним ремонтом і навіть душова кабіна
– просторі кабінети для топменеджменту
– переговорні або кабінети – їх більше, ніж достатньо – обладнане приміщення під серверну кімнату

# 3 1 5 9 1 7 3 5 3 2 2 1
Детали
Объект коммерческой недвижимости, Помещение в офисном центре, Офисное помещение. Объект на 1 этаже, В здании 2 этажа. Подъезд к зданию - асфальт. Есть электричество. Есть холодная вода, есть горячая вода. Есть отопление. Есть санузел. Есть автопарковка. Охрана. Рядом есть остановки, супермаркет, кафе, банкомат, отделение банка. В помещении 6 комнат или больше. Комиссия за услуги 50 %
THE Capital
Верифицированный профиль
6
Лет опыта
1
Год на сайте
Активных объявлений 921
Эксклюзивных объектов 0
Рекламная активность 0
Последний визит на сайт вчера
Рекомендовать
Адрес
Ваша жалоба принята!
Выберите способ подтверждения
Чтобы ваша рекомендация была засчитана, подтвердите свою личность
* Личные данные не будут отображаться на сайте и будут служить только для подтверждения личности.
Как верифицироваться через Дію?
Считайте QR-код сканером в приложении Действие и подтвердите авторизацию Действие.
QR-код будет действителен еще 02:00
Как верифицироваться через Bankid?
Верификация BankID откроется в новом окне. Если страница верификации не открылась, значит окно было заблокировано вашим браузером.
Чтобы разрешить открытие окна, выполните следующие шаги:

1. Проверьте адресную строку браузера на наличие сообщения об ошибке или значка блокировки. Нажмите на него.
2. Если у вас установлен блокировщик всплывающих окон, временно отключите его для этого сайта.
3. Проверьте настройки вашего браузера и убедитесь, что блокировка всплывающих окон отключена или настроена на разрешение открытия данного окна.

Если проблема остается нерешенной, свяжитесь с нашей службой поддержки.
Как верифицироваться через Дію?
Верификация Дія откроется в новом окне. Если страница верификации не открылась, значит окно было заблокировано вашим браузером.
Чтобы разрешить открытие окна, выполните следующие шаги:

1. Проверьте адресную строку браузера на наличие сообщения об ошибке или значка блокировки. Нажмите на него.
2. Если у вас установлен блокировщик всплывающих окон, временно отключите его для этого сайта.
3. Проверьте настройки вашего браузера и убедитесь, что блокировка всплывающих окон отключена или настроена на разрешение открытия данного окна.

Если проблема остается нерешенной, свяжитесь с нашей службой поддержки.
Поздравляем!
Рекомендация засчитана!
В скором времени рекомендация появится на странице риелтора.
Рекомендация не засчитана.
Вы уже оставляли рекомендацию данному риелтору.
В пропозиції є незбережені дані.