2 400 $/мес
24  $/м²
офисное помещение
100 м²
3 нед. назад
7 мес. назад
3 (сегодня 0, вчера 0)
Описание
Бізнес-центр Horizon Office Towers

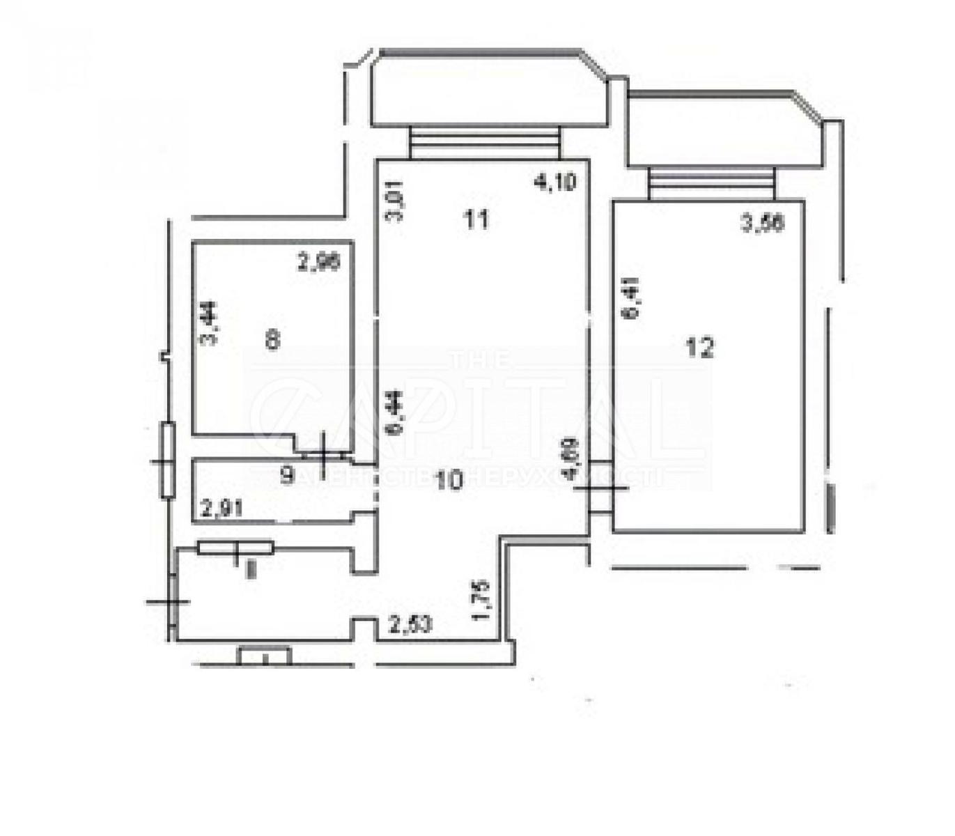
5 поверх – 100 м²
• 3 кабінети
• кухня
• можливість оренди з меблями

Розташований у урядовому кварталі, в культурно-історичному серці столиці, в центрі ділової активності Києва – Печерську, за адресою: вул. Шовковична, 42/44.
Бізнес-центр Горизонт Офіс Тауерс (Horizon Office Towers) вирізняється вигідним розташуванням, а з вікон комплексу відкривається чудовий панорамний вид на місто.

Оренда офісу у Горизонт Тауерс – це доступ до розвиненої інфраструктури: на території є ресторан, кав’ярня та міні-маркет.

Оточення:
• парк ім. Богомольця,
• Кловський ліцей,
• бізнес-центри: Парус, Гулівер, Мандарин Плаза, Арена Сіті, Carnegie Center та інші.

Найближчі станції метро:
• Кловська
• Палац Спорту (5–7 хвилин пішки).

Транспортний доступ:
Заїзд можливий з вул. Шовковичної, вул. Дарвіна, бул. Лесі Українки та вул. Басейної.



Технічні характеристики:
• Потужність електромереж: 75 кВт на офіс
• Безпека: охоронна та пожежна сигналізація, цілодобова фізична охорона, контроль периметра
• Опалення: центральне (повітряне)
• Кондиціонування: центральна система приточно-витяжної вентиляції
• Ліфти: 5 OTIS (4 пасажирські, 1 вантажний)
• Паркінг: наземний – 90 місць, підземний – 40 місць
• Доступ до будівлі: 24/7



Умови оренди:
• Комунальні витрати (крім теплоносія), обслуговування, податки, базовий косметичний ремонт та можливість паркування 1 авто включені у вартість (для площі 100–150 м²).
• Термін договору: від 12 до 35 місяців.
# 3 1 5 9 1 7 3 4 4 9 4 8
Детали
Объект коммерческой недвижимости, Помещение в офисном центре, Офисное помещение. Объект на 5 этаже, В здании 15 этажей. Подъезд к зданию - асфальт. Есть электричество. Есть холодная вода, есть горячая вода. Есть отопление. Есть санузел. Проведены. Есть ограждение. Есть охраняемая автопарковка. Охрана. Рядом есть остановки, супермаркет, кафе, отделение банка, банкомат. В помещении 4 комнаты. Комиссия за услуги 50 %
THE Capital
Верифицированный профиль
6
Лет опыта
1
Год на сайте
Активных объявлений 921
Эксклюзивных объектов 0
Рекламная активность 0
Последний визит на сайт вчера
Рекомендовать
Адрес
Ваша жалоба принята!
Выберите способ подтверждения
Чтобы ваша рекомендация была засчитана, подтвердите свою личность
* Личные данные не будут отображаться на сайте и будут служить только для подтверждения личности.
Как верифицироваться через Дію?
Считайте QR-код сканером в приложении Действие и подтвердите авторизацию Действие.
QR-код будет действителен еще 02:00
Как верифицироваться через Bankid?
Верификация BankID откроется в новом окне. Если страница верификации не открылась, значит окно было заблокировано вашим браузером.
Чтобы разрешить открытие окна, выполните следующие шаги:

1. Проверьте адресную строку браузера на наличие сообщения об ошибке или значка блокировки. Нажмите на него.
2. Если у вас установлен блокировщик всплывающих окон, временно отключите его для этого сайта.
3. Проверьте настройки вашего браузера и убедитесь, что блокировка всплывающих окон отключена или настроена на разрешение открытия данного окна.

Если проблема остается нерешенной, свяжитесь с нашей службой поддержки.
Как верифицироваться через Дію?
Верификация Дія откроется в новом окне. Если страница верификации не открылась, значит окно было заблокировано вашим браузером.
Чтобы разрешить открытие окна, выполните следующие шаги:

1. Проверьте адресную строку браузера на наличие сообщения об ошибке или значка блокировки. Нажмите на него.
2. Если у вас установлен блокировщик всплывающих окон, временно отключите его для этого сайта.
3. Проверьте настройки вашего браузера и убедитесь, что блокировка всплывающих окон отключена или настроена на разрешение открытия данного окна.

Если проблема остается нерешенной, свяжитесь с нашей службой поддержки.
Поздравляем!
Рекомендация засчитана!
В скором времени рекомендация появится на странице риелтора.
Рекомендация не засчитана.
Вы уже оставляли рекомендацию данному риелтору.
В пропозиції є незбережені дані.