1
1 000 $/мес
5  $/м²
помещение свободного назначения
199 м²
3 дня назад
5 мес. назад
80 (сегодня 0, вчера 0)
Описание
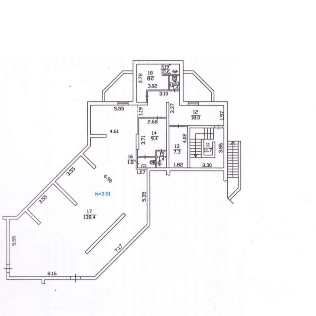
Довгострокова оренда просторого комерційного приміщення загальною площею 199 м². Розташоване на цокольному поверсі сучасного житлового комплексу «Лікоград», вул. Академіка Вільямса, 5а
Приміщення має косметичний ремонт та функціональне планування, що дозволяє використовувати його під різні види діяльності.

Характеристики приміщення:
Площа: 199 м²
Поверх: цокольний
Окремий вхід
Заведені всі необхідні комунікації
Санвузол

Можливість зонування під офіс, салон краси, студію, навчальний центр, склад-магазин, шоурум, медичний кабінет та ін.

Інфраструктура та розташування:
ЖК «Лікоград» — густонаселений житловий комплекс із сформованою інфраструктурою та активним людським трафіком.
Поруч знаходяться:
супермаркети АТБ, Novus
кав’ярні, ресторани, аптеки
салони краси, медичні центри, фітнес-клуби
школи та дитячі садки
зручні зупинки громадського транспорту
До метро Васильківська/«Виставковий центр» — кілька хвилин на авто.

Переваги:
Район із високою купівельною активністю
Велика площа з можливістю адаптації під бізнес
Розташування серед щільної житлової забудови — постійний потік потенційних клієнтів
Детали
Объект коммерческой недвижимости, Помещение в жилом здании, Помещение свободного назначения. Цокольное помещение, В здании 16 этажей. Помещение свободной планировки. Без комиссии
Верифицированный профиль
Silver partner
8
Лет опыта
3
Верифицированные рекомендации
1
Год на сайте
Активных объявлений 24
Эксклюзивных объектов 0
Рекламная активность 1937
Последний визит на сайт вчера
Рекомендовать
История изменения цены
06.11.2025 + 99 $ 1 000 $
06.11.2025 40 000 грн
Адрес
Ваша жалоба принята!
Выберите способ подтверждения
Чтобы ваша рекомендация была засчитана, подтвердите свою личность
* Личные данные не будут отображаться на сайте и будут служить только для подтверждения личности.
Как верифицироваться через Дію?
Считайте QR-код сканером в приложении Действие и подтвердите авторизацию Действие.
QR-код будет действителен еще 02:00
Как верифицироваться через Bankid?
Верификация BankID откроется в новом окне. Если страница верификации не открылась, значит окно было заблокировано вашим браузером.
Чтобы разрешить открытие окна, выполните следующие шаги:

1. Проверьте адресную строку браузера на наличие сообщения об ошибке или значка блокировки. Нажмите на него.
2. Если у вас установлен блокировщик всплывающих окон, временно отключите его для этого сайта.
3. Проверьте настройки вашего браузера и убедитесь, что блокировка всплывающих окон отключена или настроена на разрешение открытия данного окна.

Если проблема остается нерешенной, свяжитесь с нашей службой поддержки.
Как верифицироваться через Дію?
Верификация Дія откроется в новом окне. Если страница верификации не открылась, значит окно было заблокировано вашим браузером.
Чтобы разрешить открытие окна, выполните следующие шаги:

1. Проверьте адресную строку браузера на наличие сообщения об ошибке или значка блокировки. Нажмите на него.
2. Если у вас установлен блокировщик всплывающих окон, временно отключите его для этого сайта.
3. Проверьте настройки вашего браузера и убедитесь, что блокировка всплывающих окон отключена или настроена на разрешение открытия данного окна.

Если проблема остается нерешенной, свяжитесь с нашей службой поддержки.
Поздравляем!
Рекомендация засчитана!
В скором времени рекомендация появится на странице риелтора.
Рекомендация не засчитана.
Вы уже оставляли рекомендацию данному риелтору.
В пропозиції є незбережені дані.