ПРЕМИУМ БЕЗ КОМИССИИ Відеотур Осокорки Позняки ТЦ River Mall ЖК RiverStone
помещение свободного назначения
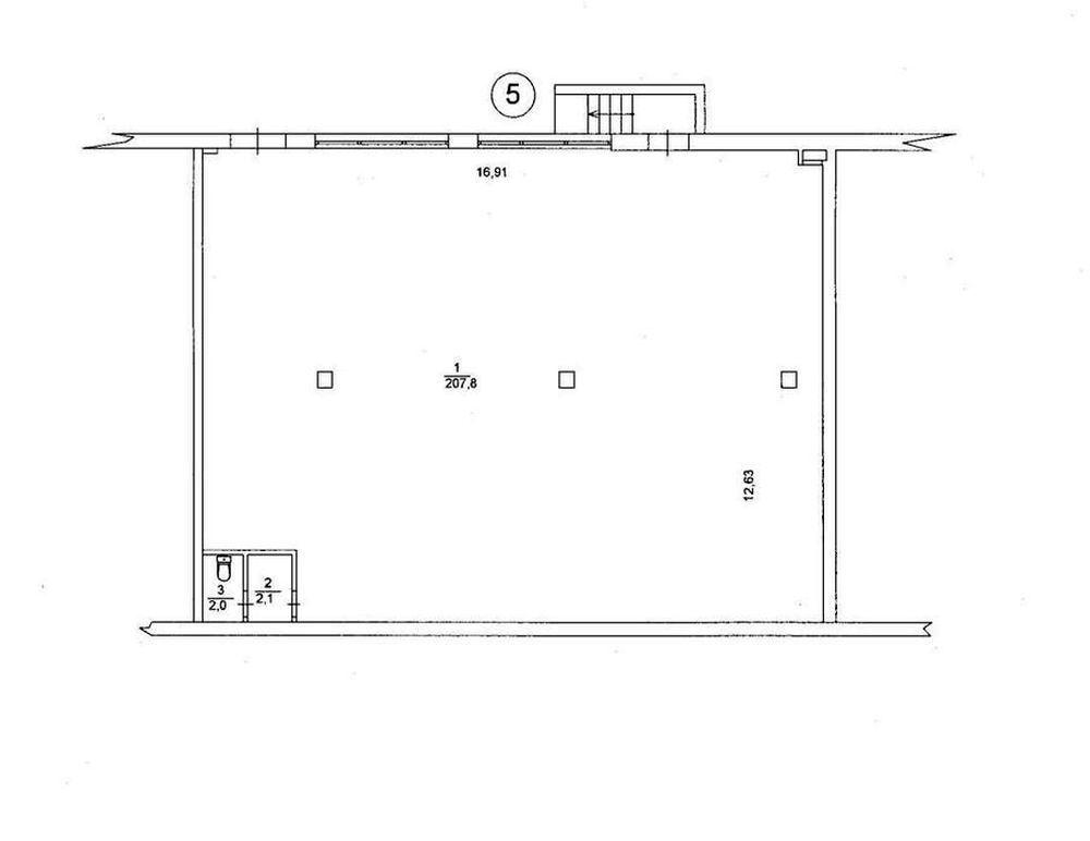
212 м²
4 дня назад
5 мес. назад
102 (сегодня 0, вчера 0)
Описание
Без комісії! Комерційне приміщення в ЖК RiverStone — унікальний актив на набережній із можливістю купівлі або оренди

Пропонується до продажу або оренди комерційне приміщення в одному з найпрестижніших житлових комплексів Києва — RiverStone.

Формат угоди максимально гнучкий:
можлива як купівля, так і оренда — залежно від вашої стратегії та бізнес-цілей.

Концепція об’єкта

Приміщення ідеально підходить як для ведення власного бізнесу, так і як інвестиційний актив із прогнозованим орендним доходом.

Функціональний простір дозволяє реалізувати:
— салон краси / барбершоп
— медичний або естетичний кабінет
— шоурум / бутик
— офіс або представництво
— сервісний бізнес

Об’єкт має потенціал масштабування та підвищення прибутковості.

Переваги локації

RiverStone — це сформована преміальна екосистема:

— перша лінія Дніпра, власна набережна
— територія з охороною 24/7
— платоспроможна аудиторія мешканців
— стабільний пішохідний трафік
— поруч River Mall, ресторани, фітнес та вся необхідна інфраструктура
— метро Осокорки у пішій доступності

Комплекс повністю заселений, що гарантує постійний потік потенційних клієнтів.

Характеристики та унікальні переваги

— площа близько 212 м²
— вільне планування з можливістю трансформації
— ефективне зонування під різні бізнес-процеси
— висока комерційна привабливість і ліквідність

Окремо варто відзначити:
— розташування безпосередньо на набережній Дніпра
— прямий доступ до води, що створює додаткову цінність і сценарії використання
— можливість використання приміщення як укриття — важлива функціональна та безпекова перевага в сучасних умовах

Інвестиційна привабливість

— готовий актив для бізнесу або здачі в оренду
— потенціал зростання доходності
— високий попит на комерцію в RiverStone
— рідкісна пропозиція в уже сформованому преміум-комплексі

Ключова перевага

Ви не обмежені одним сценарієм:
придбання для власного бізнесу або оренда — обирайте оптимальний формат входу.
Детали
Объект коммерческой недвижимости, Отдельно стоящее здание, Помещение свободного назначения. Без комиссии
Верифицированный профиль
Platinum partner
1
Верифицированная рекомендация
6
Лет на сайте
Активных объявлений 33
Эксклюзивных объектов 0
Рекламная активность 70075
Последний визит на сайт вчера
Рекомендовать
Видеотур
История изменения цены
16.04.2026 - 300 $ 2 900 $
24.11.2025 3 200 $
Адрес
Ваша жалоба принята!
Выберите способ подтверждения
Чтобы ваша рекомендация была засчитана, подтвердите свою личность
* Личные данные не будут отображаться на сайте и будут служить только для подтверждения личности.
Как верифицироваться через Дію?
Считайте QR-код сканером в приложении Действие и подтвердите авторизацию Действие.
QR-код будет действителен еще 02:00
Как верифицироваться через Bankid?
Верификация BankID откроется в новом окне. Если страница верификации не открылась, значит окно было заблокировано вашим браузером.
Чтобы разрешить открытие окна, выполните следующие шаги:

1. Проверьте адресную строку браузера на наличие сообщения об ошибке или значка блокировки. Нажмите на него.
2. Если у вас установлен блокировщик всплывающих окон, временно отключите его для этого сайта.
3. Проверьте настройки вашего браузера и убедитесь, что блокировка всплывающих окон отключена или настроена на разрешение открытия данного окна.

Если проблема остается нерешенной, свяжитесь с нашей службой поддержки.
Как верифицироваться через Дію?
Верификация Дія откроется в новом окне. Если страница верификации не открылась, значит окно было заблокировано вашим браузером.
Чтобы разрешить открытие окна, выполните следующие шаги:

1. Проверьте адресную строку браузера на наличие сообщения об ошибке или значка блокировки. Нажмите на него.
2. Если у вас установлен блокировщик всплывающих окон, временно отключите его для этого сайта.
3. Проверьте настройки вашего браузера и убедитесь, что блокировка всплывающих окон отключена или настроена на разрешение открытия данного окна.

Если проблема остается нерешенной, свяжитесь с нашей службой поддержки.
Поздравляем!
Рекомендация засчитана!
В скором времени рекомендация появится на странице риелтора.
Рекомендация не засчитана.
Вы уже оставляли рекомендацию данному риелтору.
В пропозиції є незбережені дані.