4 500 $/мес
15  $/м²
офисное помещение
305 м²
2 нед. назад
4 мес. назад
0 (сегодня 0, вчера 0)
Описание
Голосіївський р-н (центр) вул. Антоновича, 33в, метро Олімпійська

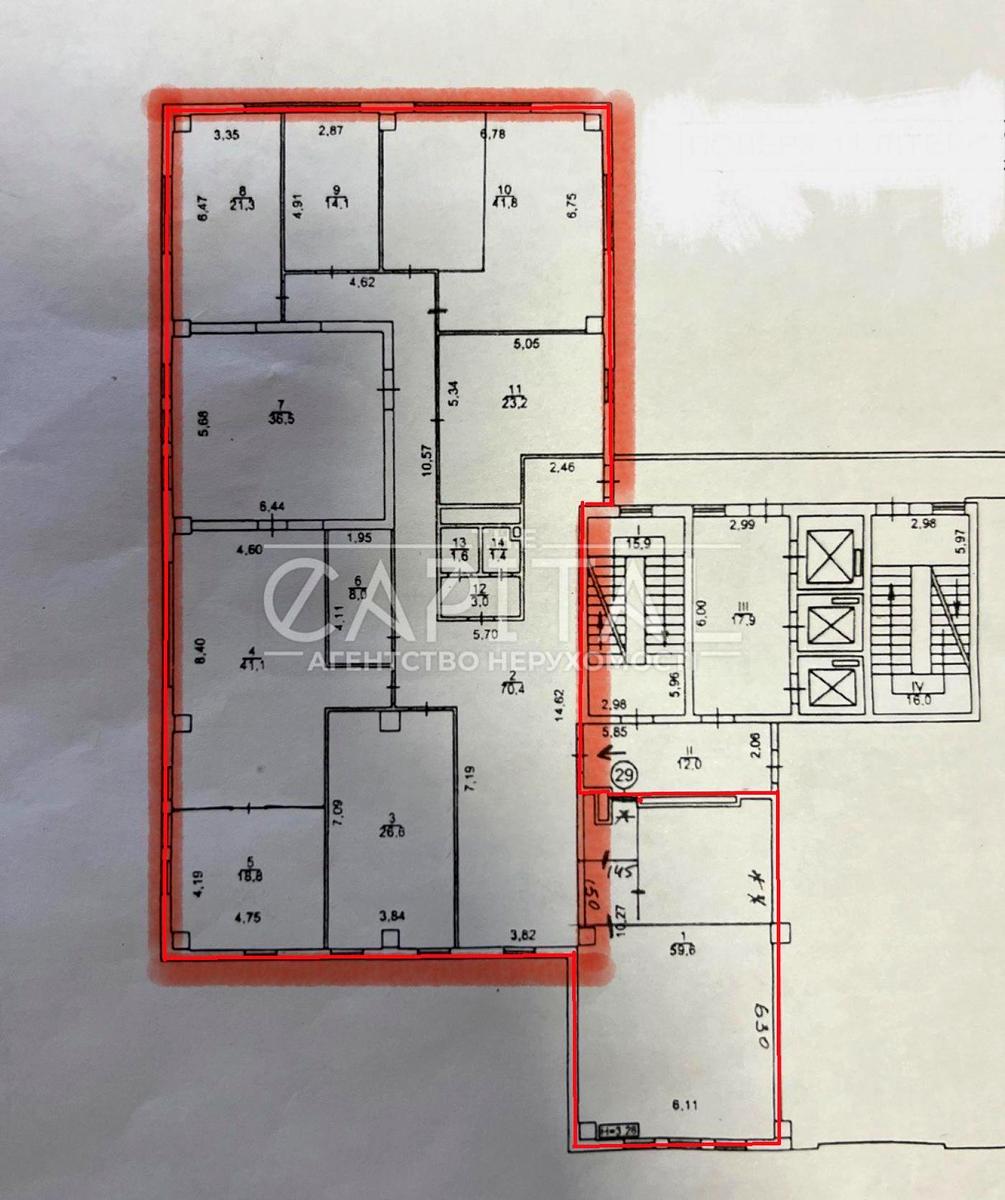
Оренда офісу в бізнес-центрі класу В «Максим» площею 305 м2

-Планування: 7 кабінетів, 3 с/в, кухня, серверна.

- є меблі на 25 робочих місць.

-Комп'ютерна та силова розводка

-Три ліфти

-Метро Олімпійська в 7 хвилинах доступності

Орендна ставка 15$/м з ПДВ

Сервіс 30 грн/м2

Опалення та лічильники за фактом

# A 1 8 6 6 1
Детали
Объект коммерческой недвижимости, Класс B, Помещение в офисном центре, Офисное помещение. Объект на 11 этаже, В здании 13 этажей. Подъезд к зданию - асфальт. Есть электричество. Есть холодная вода, есть горячая вода. Есть отопление. Есть санузел. Есть охраняемая автопарковка. Охрана. Рядом есть остановки, супермаркет, кафе, банкомат, отделение банка, ресторан. В помещении 6 комнат или больше. Комиссия за услуги 50 %
THE Capital
Верифицированный профиль
4
Года опыта
4
Месяца на сайте
Активных объявлений 1144
Эксклюзивных объектов 0
Рекламная активность 1806
Последний визит на сайт вчера
Рекомендовать
Адрес
Ваша жалоба принята!
Выберите способ подтверждения
Чтобы ваша рекомендация была засчитана, подтвердите свою личность
* Личные данные не будут отображаться на сайте и будут служить только для подтверждения личности.
Как верифицироваться через Дію?
Считайте QR-код сканером в приложении Действие и подтвердите авторизацию Действие.
QR-код будет действителен еще 02:00
Как верифицироваться через Bankid?
Верификация BankID откроется в новом окне. Если страница верификации не открылась, значит окно было заблокировано вашим браузером.
Чтобы разрешить открытие окна, выполните следующие шаги:

1. Проверьте адресную строку браузера на наличие сообщения об ошибке или значка блокировки. Нажмите на него.
2. Если у вас установлен блокировщик всплывающих окон, временно отключите его для этого сайта.
3. Проверьте настройки вашего браузера и убедитесь, что блокировка всплывающих окон отключена или настроена на разрешение открытия данного окна.

Если проблема остается нерешенной, свяжитесь с нашей службой поддержки.
Как верифицироваться через Дію?
Верификация Дія откроется в новом окне. Если страница верификации не открылась, значит окно было заблокировано вашим браузером.
Чтобы разрешить открытие окна, выполните следующие шаги:

1. Проверьте адресную строку браузера на наличие сообщения об ошибке или значка блокировки. Нажмите на него.
2. Если у вас установлен блокировщик всплывающих окон, временно отключите его для этого сайта.
3. Проверьте настройки вашего браузера и убедитесь, что блокировка всплывающих окон отключена или настроена на разрешение открытия данного окна.

Если проблема остается нерешенной, свяжитесь с нашей службой поддержки.
Поздравляем!
Рекомендация засчитана!
В скором времени рекомендация появится на странице риелтора.
Рекомендация не засчитана.
Вы уже оставляли рекомендацию данному риелтору.
В пропозиції є незбережені дані.