16 500 $/мес
19  $/м²
офисное помещение
867.02 м²
2 нед. назад
4 мес. назад
12 (сегодня 0, вчера 0)
Описание
Оренда офісного приміщення з ремонтом у бізнес-центрі SP Hall

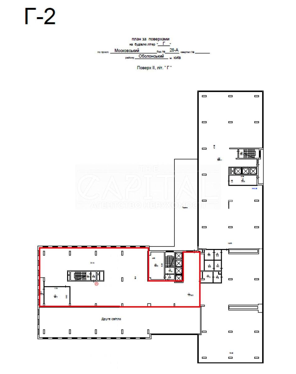
Пропонується в оренду просторе офісне приміщення на 2-му поверсі сучасного бізнес-центру SP Hall. Це рішення для компаній, які прагнуть працювати у престижному просторі з продуманою інфраструктурою та готовим якісним ремонтом.

Основні характеристики:

Площа: 867,02 м²

Поверх: 2-й (зручний доступ для співробітників та відвідувачів)

Вартість оренди: 11 300 $ ПДВ

Експлуатація: 5 200 $ ПДВ

Стан приміщення: з ремонтом, готове до роботи

Переваги приміщення:

Велика площа – ідеальна для розміщення великої команди.

Готовий якісний ремонт, що дозволяє заїхати та розпочати роботу без додаткових інвестицій.

Раціональне планування: можливість організації open space, кабінетів, переговорних кімнат, зони відпочинку.

Панорамні вікна забезпечують багато природного світла та створюють комфортний робочий простір.

Сучасні інженерні системи: вентиляція, кондиціонування, опалення.

Інфраструктура та технічне оснащення:

Сучасна система централізованого кондиціонування та вентиляції.

Цілодобова охорона та відеоспостереження по всій території.

Система контролю доступу для безпеки орендарів.

Пожежна сигналізація та система оповіщення.

Рецепція та сервісна служба для орендарів.

Власна паркінг-зона для співробітників і гостей.

Локація:

SP Hall розташований у діловому районі столиці, що вирізняється чудовою транспортною доступністю та розвиненою інфраструктурою. Поруч – банки, ресторани, кав’ярні, бізнес-центри, магазини та сервіси для бізнесу. Зручний виїзд на ключові магістралі дозволяє швидко дістатися як до центру, так і до інших районів Києва.

Цільове призначення:

Приміщення ідеально підійде для:

Великої IT-компанії або стартапу на стадії масштабування

Фінансових, консалтингових чи юридичних компаній

Представництв міжнародних брендів

Організації штаб-квартири з повним циклом роботи

Зателефонуйте, щоб отримати детальну консультацію та домовитися про перегляд.
Це простір, де ваша команда зможе комфортно та ефективно працювати, а бізнес — підкреслити свій статус у престижному діловому центрі Києва.


# A 2 0 9 3 3
Детали
Объект коммерческой недвижимости, Помещение в офисном центре, Офисное помещение. Комиссия за услуги 50 %
THE Capital
Верифицированный профиль
4
Года опыта
5
Месяцев на сайте
Активных объявлений 1138
Эксклюзивных объектов 0
Рекламная активность 2815
Последний визит на сайт вчера
Рекомендовать
Адрес
Ваша жалоба принята!
Выберите способ подтверждения
Чтобы ваша рекомендация была засчитана, подтвердите свою личность
* Личные данные не будут отображаться на сайте и будут служить только для подтверждения личности.
Как верифицироваться через Дію?
Считайте QR-код сканером в приложении Действие и подтвердите авторизацию Действие.
QR-код будет действителен еще 02:00
Как верифицироваться через Bankid?
Верификация BankID откроется в новом окне. Если страница верификации не открылась, значит окно было заблокировано вашим браузером.
Чтобы разрешить открытие окна, выполните следующие шаги:

1. Проверьте адресную строку браузера на наличие сообщения об ошибке или значка блокировки. Нажмите на него.
2. Если у вас установлен блокировщик всплывающих окон, временно отключите его для этого сайта.
3. Проверьте настройки вашего браузера и убедитесь, что блокировка всплывающих окон отключена или настроена на разрешение открытия данного окна.

Если проблема остается нерешенной, свяжитесь с нашей службой поддержки.
Как верифицироваться через Дію?
Верификация Дія откроется в новом окне. Если страница верификации не открылась, значит окно было заблокировано вашим браузером.
Чтобы разрешить открытие окна, выполните следующие шаги:

1. Проверьте адресную строку браузера на наличие сообщения об ошибке или значка блокировки. Нажмите на него.
2. Если у вас установлен блокировщик всплывающих окон, временно отключите его для этого сайта.
3. Проверьте настройки вашего браузера и убедитесь, что блокировка всплывающих окон отключена или настроена на разрешение открытия данного окна.

Если проблема остается нерешенной, свяжитесь с нашей службой поддержки.
Поздравляем!
Рекомендация засчитана!
В скором времени рекомендация появится на странице риелтора.
Рекомендация не засчитана.
Вы уже оставляли рекомендацию данному риелтору.
В пропозиції є незбережені дані.