1 300 $/мес
20  $/м²
помещение свободного назначения
65 м²
2 нед. назад
4 мес. назад
9 (сегодня 0, вчера 0)
Описание
Оренда торгового приміщення вільного призначення в житловому комплексі «Нивки-Парк» (девелопер Інтергалбуд).
вул.Олеся Бердника, 1.
9-й будинок, введений в эксплуатацию. Благоустрій двору в процесі.
Вже можна заходити на ремонт.
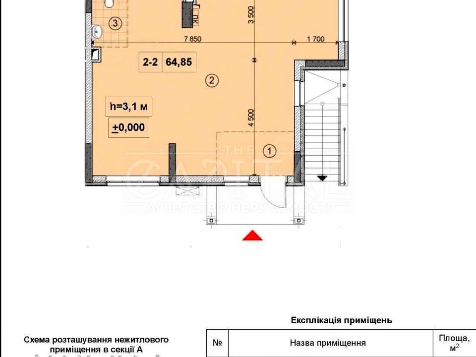
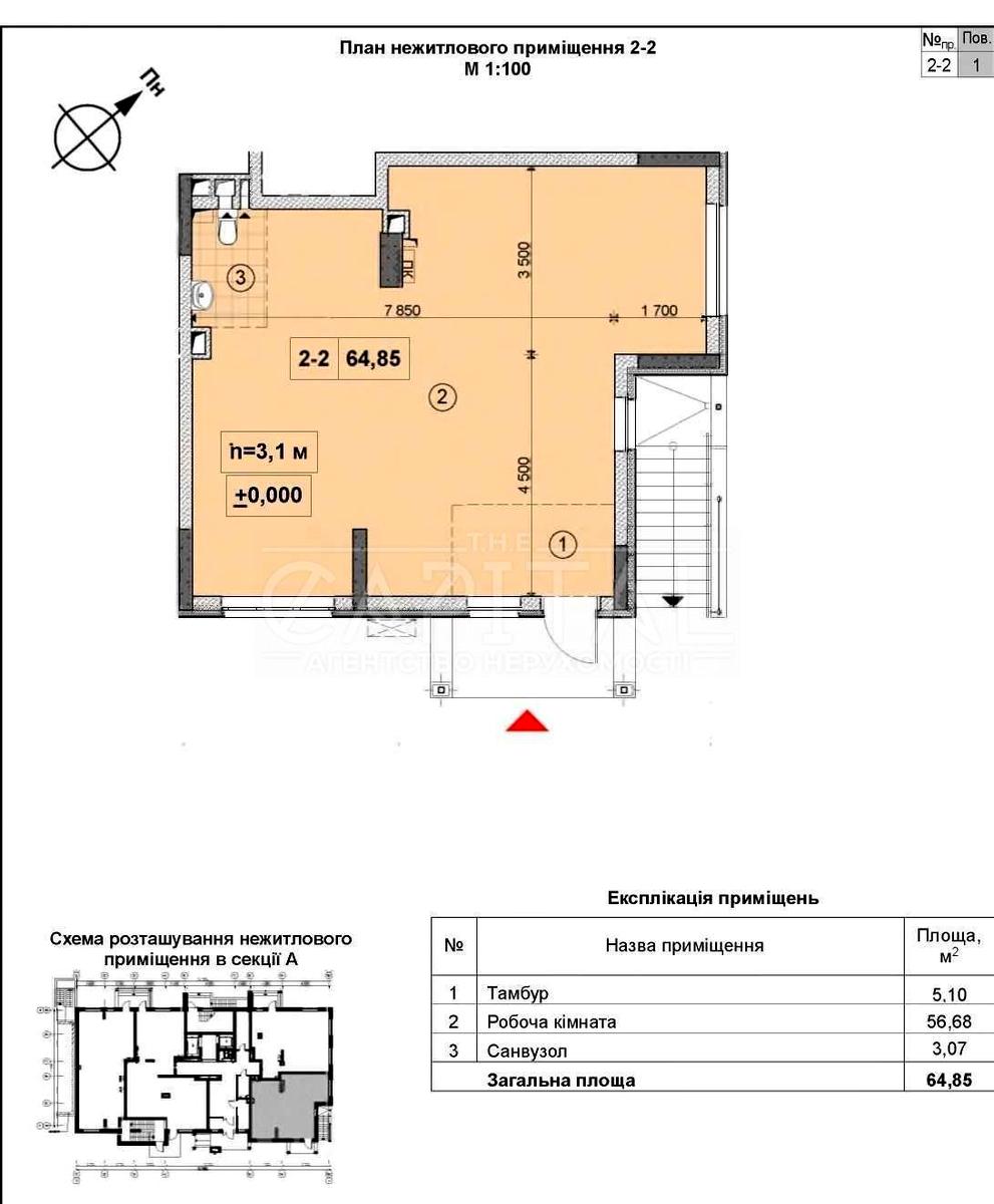
64,85 кв.м., перший поверх, фасадне торцеве приміщення відразу біля входу у під’їзд житлового блоку.
Висота стелі 3 м, електрика – 12 кВт. Стан приміщення «як є».
Можливе призначення – аптека, кав’ярня, банк, продукти, барбер та інше.
Додатково оплачуються експлуатаційні та комунальні витрати.

A24826
Детали
Объект коммерческой недвижимости, Помещение в жилом здании, Помещение свободного назначения. Объект на 1 этаже, В здании 25 этажей. В помещении 1 комната. Комиссия за услуги 50 %
THE Capital
Верифицированный профиль
4
Года опыта
4
Месяца на сайте
Активных объявлений 1144
Эксклюзивных объектов 0
Рекламная активность 1806
Последний визит на сайт вчера
Рекомендовать
Адрес
Ваша жалоба принята!
Выберите способ подтверждения
Чтобы ваша рекомендация была засчитана, подтвердите свою личность
* Личные данные не будут отображаться на сайте и будут служить только для подтверждения личности.
Как верифицироваться через Дію?
Считайте QR-код сканером в приложении Действие и подтвердите авторизацию Действие.
QR-код будет действителен еще 02:00
Как верифицироваться через Bankid?
Верификация BankID откроется в новом окне. Если страница верификации не открылась, значит окно было заблокировано вашим браузером.
Чтобы разрешить открытие окна, выполните следующие шаги:

1. Проверьте адресную строку браузера на наличие сообщения об ошибке или значка блокировки. Нажмите на него.
2. Если у вас установлен блокировщик всплывающих окон, временно отключите его для этого сайта.
3. Проверьте настройки вашего браузера и убедитесь, что блокировка всплывающих окон отключена или настроена на разрешение открытия данного окна.

Если проблема остается нерешенной, свяжитесь с нашей службой поддержки.
Как верифицироваться через Дію?
Верификация Дія откроется в новом окне. Если страница верификации не открылась, значит окно было заблокировано вашим браузером.
Чтобы разрешить открытие окна, выполните следующие шаги:

1. Проверьте адресную строку браузера на наличие сообщения об ошибке или значка блокировки. Нажмите на него.
2. Если у вас установлен блокировщик всплывающих окон, временно отключите его для этого сайта.
3. Проверьте настройки вашего браузера и убедитесь, что блокировка всплывающих окон отключена или настроена на разрешение открытия данного окна.

Если проблема остается нерешенной, свяжитесь с нашей службой поддержки.
Поздравляем!
Рекомендация засчитана!
В скором времени рекомендация появится на странице риелтора.
Рекомендация не засчитана.
Вы уже оставляли рекомендацию данному риелтору.
В пропозиції є незбережені дані.