22 957 $/мес
16  $/м²
помещение свободного назначения, помещение для оказания услуг, офисное помещение, банковское помещение
1450 м²
4 дня назад
2 мес. назад
6 (сегодня 0, вчера 0)
Описание
Оренда офісу у БЦ що знаходиться у Голосіївський р-н.

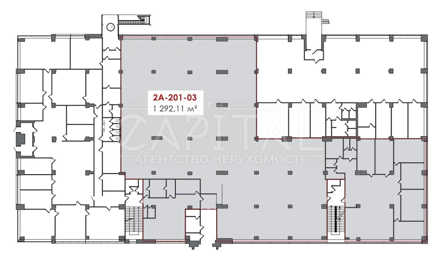
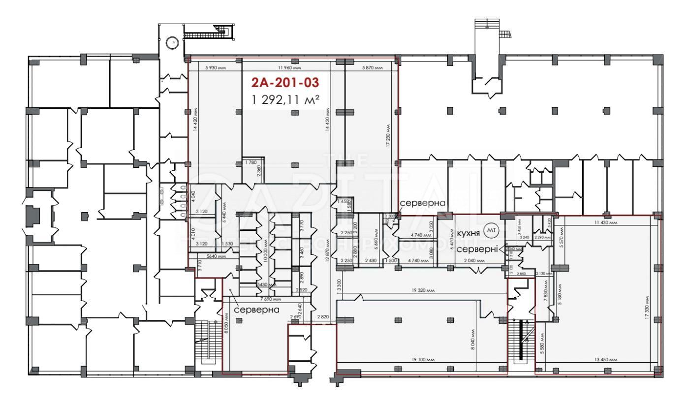
Площа (корисна) 1292,11 м2
Площа (комерційна/розрахункова) 1447,16 м2

На території бізнес-комплексу для вашого користування:
майданчик для авто, місця для велосипедів, зарядні станції для електрокарів, відкрита BBQ-зона, йога-кімната, спортмайданчик, кафе та кав’ярні, літня зона відпочинку, стильні лаунж-простори у холах корпусів.

Є Генератор на офис.

A26777
Детали
Объект коммерческой недвижимости, Класс B, Офисный центр, Банковское помещение, Офисное помещение, Помещение для оказания услуг, Помещение свободного назначения. Объект на 2 этаже, В здании 3 этажа. Комиссия за услуги 50 %
THE Capital
Верифицированный профиль
3
Года опыта
6
Месяцев на сайте
Активных объявлений 204
Эксклюзивных объектов 0
Рекламная активность 4037
Последний визит на сайт вчера
Рекомендовать
Адрес
Ваша жалоба принята!
Выберите способ подтверждения
Чтобы ваша рекомендация была засчитана, подтвердите свою личность
* Личные данные не будут отображаться на сайте и будут служить только для подтверждения личности.
Как верифицироваться через Дію?
Считайте QR-код сканером в приложении Действие и подтвердите авторизацию Действие.
QR-код будет действителен еще 02:00
Как верифицироваться через Bankid?
Верификация BankID откроется в новом окне. Если страница верификации не открылась, значит окно было заблокировано вашим браузером.
Чтобы разрешить открытие окна, выполните следующие шаги:

1. Проверьте адресную строку браузера на наличие сообщения об ошибке или значка блокировки. Нажмите на него.
2. Если у вас установлен блокировщик всплывающих окон, временно отключите его для этого сайта.
3. Проверьте настройки вашего браузера и убедитесь, что блокировка всплывающих окон отключена или настроена на разрешение открытия данного окна.

Если проблема остается нерешенной, свяжитесь с нашей службой поддержки.
Как верифицироваться через Дію?
Верификация Дія откроется в новом окне. Если страница верификации не открылась, значит окно было заблокировано вашим браузером.
Чтобы разрешить открытие окна, выполните следующие шаги:

1. Проверьте адресную строку браузера на наличие сообщения об ошибке или значка блокировки. Нажмите на него.
2. Если у вас установлен блокировщик всплывающих окон, временно отключите его для этого сайта.
3. Проверьте настройки вашего браузера и убедитесь, что блокировка всплывающих окон отключена или настроена на разрешение открытия данного окна.

Если проблема остается нерешенной, свяжитесь с нашей службой поддержки.
Поздравляем!
Рекомендация засчитана!
В скором времени рекомендация появится на странице риелтора.
Рекомендация не засчитана.
Вы уже оставляли рекомендацию данному риелтору.
В пропозиції є незбережені дані.