6 157 $/мес
20  $/м²
офисное помещение
311 м²
1 нед. назад
2 мес. назад
3 (сегодня 0, вчера 0)
Описание
Оренда офісу у Бізнес-центрі
Локація:
м. Київ, вул. Пимоненка, 13 700 м (до 7 хв пішки) від ст. метро Лук'янівська.
________________________________________
Характеристика офісу:
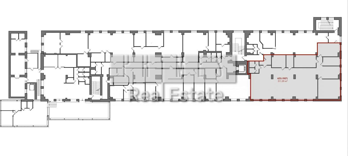
Загальна площа 311.20 м², розрахункова 348.50 м²
Планування: змішані
Поверх 2
Світле просторе приміщення з панорамними вікнами на три сторони
Білофарбовані стіни, ковролін на підлозі, підвісний потолок Armstrong
Радіаторне опалення
________________________________________
Інженерні системи та комунікації:
Автономне опалення
Дизель-генератор (забезпечує повну автономність електропостачання)
Автономне водопостачання та каналізація
Мультизональна система вентиляції та кондиціонування
Високошвидкісний інтернет, телефонія
Система відеоспостереження
Сучасні швидкісні ліфти KONE
Доступ 24/7
Контроль доступу та цілодобова охорона
Система протипожежної безпеки
________________________________________
Переваги Business City:
Стильні лаунж-зони у холах
2 кавярні, їдальня
Просторе укриття
Паркінг на 430 авто, стоянка для велосипедів, зарядки для електрокарів
Банкомат, термінал, поштомат Нової Пошти
Затишний внутрішній дворик із BBQ-зоною та альтанками
Вуличні тренажери, йога-кімната
Спортстудія FitFacty та клуб Spt&Spa з програмами лояльності
Кабінети остеопату та стоматолога
Безкоштовний сучасний конференц-зал для резидентів

Звертайтесь за додатковою інформацією підберемо оптимальне приміщення саме для вас!
#34196
Детали
Объект коммерческой недвижимости, Класс A, Помещение в офисном центре, Офисное помещение. Объект на 2 этаже, В здании 6 этажей. В помещении 4 комнаты. Безбарьерность: дверные проемы в доме шириной более 0.9 м. Комиссия за услуги 50 %
PRIMES
Верифицированный профиль
2
Года опыта
6
Месяцев на сайте
Активных объявлений 275
Эксклюзивных объектов 0
Рекламная активность 0
Последний визит на сайт вчера
Рекомендовать
Адрес
Ваша жалоба принята!
Выберите способ подтверждения
Чтобы ваша рекомендация была засчитана, подтвердите свою личность
* Личные данные не будут отображаться на сайте и будут служить только для подтверждения личности.
Как верифицироваться через Дію?
Считайте QR-код сканером в приложении Действие и подтвердите авторизацию Действие.
QR-код будет действителен еще 02:00
Как верифицироваться через Bankid?
Верификация BankID откроется в новом окне. Если страница верификации не открылась, значит окно было заблокировано вашим браузером.
Чтобы разрешить открытие окна, выполните следующие шаги:

1. Проверьте адресную строку браузера на наличие сообщения об ошибке или значка блокировки. Нажмите на него.
2. Если у вас установлен блокировщик всплывающих окон, временно отключите его для этого сайта.
3. Проверьте настройки вашего браузера и убедитесь, что блокировка всплывающих окон отключена или настроена на разрешение открытия данного окна.

Если проблема остается нерешенной, свяжитесь с нашей службой поддержки.
Как верифицироваться через Дію?
Верификация Дія откроется в новом окне. Если страница верификации не открылась, значит окно было заблокировано вашим браузером.
Чтобы разрешить открытие окна, выполните следующие шаги:

1. Проверьте адресную строку браузера на наличие сообщения об ошибке или значка блокировки. Нажмите на него.
2. Если у вас установлен блокировщик всплывающих окон, временно отключите его для этого сайта.
3. Проверьте настройки вашего браузера и убедитесь, что блокировка всплывающих окон отключена или настроена на разрешение открытия данного окна.

Если проблема остается нерешенной, свяжитесь с нашей службой поддержки.
Поздравляем!
Рекомендация засчитана!
В скором времени рекомендация появится на странице риелтора.
Рекомендация не засчитана.
Вы уже оставляли рекомендацию данному риелтору.
В пропозиції є незбережені дані.