18
25 000 грн/мес
313
грн/м²
помещение свободного назначения, помещение для оказания услуг, офисное помещение
80 м²
1984 год постройки
1 нед. назад
2 мес. назад
70 (сегодня 0,
вчера 0)
Описание
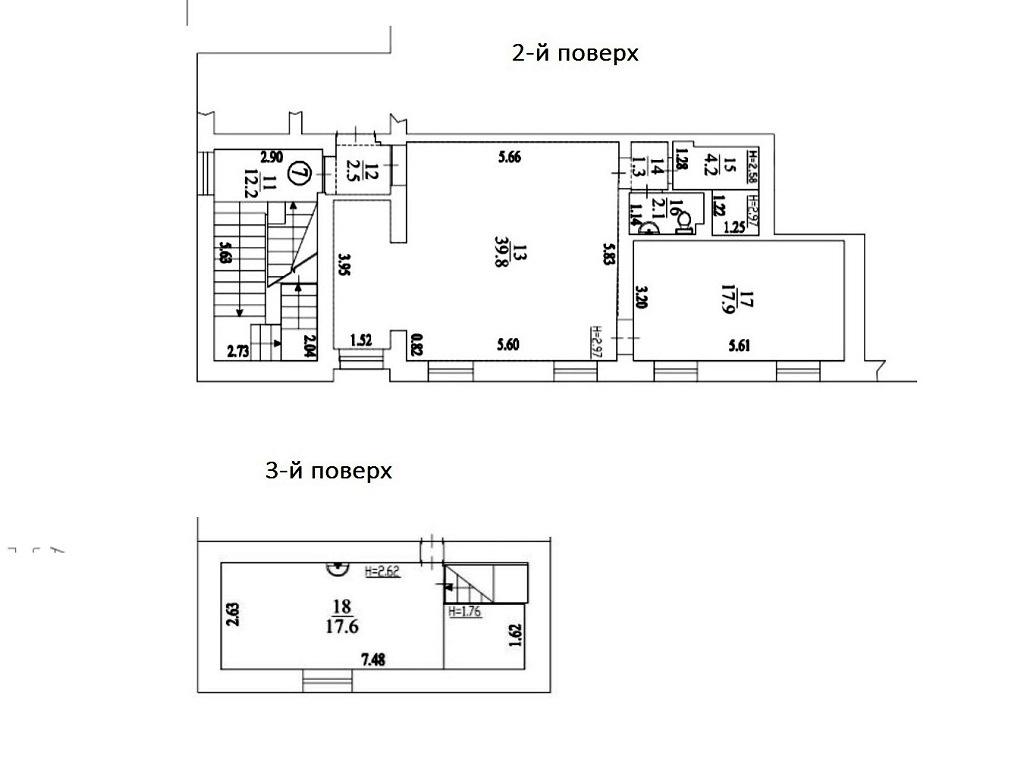
Оренда приміщення 80 м.кв. під офіс, послуги. Троєщина
- Київ, Деснянський р-н, вул. Р. Рейгана 24, орієнтир – супермаркет Фора;
- 2-й поверх, окремий вхід в блок;
- Загальна площа 80 м.кв.;
- Планування: три кабінети + міні-кухня + санвузол;
- Стан добрий;
- Без меблів;
- Кондиціонери, опалення електричне;
- Перед входом є місце для паркування авто;
- Гарна транспортна розв’язка, поруч зупинки транспорту.
#орендаофіскиїв, #орендаприміщеннякиїв, #орендаофістроєщина
- Київ, Деснянський р-н, вул. Р. Рейгана 24, орієнтир – супермаркет Фора;
- 2-й поверх, окремий вхід в блок;
- Загальна площа 80 м.кв.;
- Планування: три кабінети + міні-кухня + санвузол;
- Стан добрий;
- Без меблів;
- Кондиціонери, опалення електричне;
- Перед входом є місце для паркування авто;
- Гарна транспортна розв’язка, поруч зупинки транспорту.
#орендаофіскиїв, #орендаприміщеннякиїв, #орендаофістроєщина
Детали
Объект коммерческой недвижимости, Часть здания, Офисное помещение, Помещение для оказания услуг, Помещение свободного назначения. Объект на 2 этаже, В здании 3 этажа. Здание построено в 1984 году. В помещении 3 комнаты. Без комиссии

Корпан Владислав
Риелтор
| Активных объявлений | 12 |
| Эксклюзивных объектов | 0 |
| Рекламная активность | 98 |
| Последний визит на сайт | 3 дня назад |
Рекомендовать
История изменения цены
| 28.04.2026 | - 5 000 грн | 25 000 грн |
| 27.02.2026 | 30 000 грн |

















