3 535 $/мес
16  $/м²
офисное помещение
220.5 м²
1 нед. назад
2 мес. назад
1 (сегодня 0, вчера 0)
Описание
Оренда приміщення на бульварі Лесі Українки, 34 — з укриттям, генератором та працюючим ліфтом!

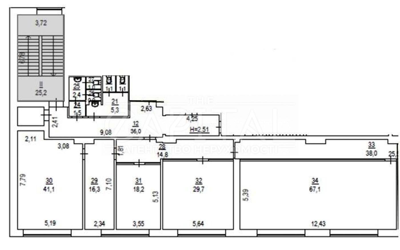
Пропонується в оренду просторе нежитлове приміщення у зручній локації — бульвар Лесі Українки, 34.

Фактична площа: 220,5 м²
Орендна площа (з урахуванням коефіцієнта 1,15): 255 м²

Приміщення має 7 окремих кімнат, що ідеально підійде для офісу, навчального закладу, IT-компанії чи сервісного бізнесу.
Передбачено 2 санвузли.

Надійне укриття
Потужний генератор — під час відключень електроенергії працює все, включно з кондиціонерами
Центральне опалення — комфорт у будь-яку пору року
Працюючий ліфт

Приміщення готове до використання, підходить для безперебійної роботи навіть в умовах відключень світла.
A27.598
Детали
Объект коммерческой недвижимости, Класс B, Часть здания, Офисное помещение. Объект на 6 этаже, В здании 7 этажей. В помещении 6 комнат или больше. Комиссия за услуги 50 %
THE Capital
Верифицированный профиль
1
Год опыта
1
Год на сайте
Активных объявлений 10
Эксклюзивных объектов 0
Рекламная активность 3439
Последний визит на сайт сегодня
Рекомендовать
Адрес
Ваша жалоба принята!
Выберите способ подтверждения
Чтобы ваша рекомендация была засчитана, подтвердите свою личность
* Личные данные не будут отображаться на сайте и будут служить только для подтверждения личности.
Как верифицироваться через Дію?
Считайте QR-код сканером в приложении Действие и подтвердите авторизацию Действие.
QR-код будет действителен еще 02:00
Как верифицироваться через Bankid?
Верификация BankID откроется в новом окне. Если страница верификации не открылась, значит окно было заблокировано вашим браузером.
Чтобы разрешить открытие окна, выполните следующие шаги:

1. Проверьте адресную строку браузера на наличие сообщения об ошибке или значка блокировки. Нажмите на него.
2. Если у вас установлен блокировщик всплывающих окон, временно отключите его для этого сайта.
3. Проверьте настройки вашего браузера и убедитесь, что блокировка всплывающих окон отключена или настроена на разрешение открытия данного окна.

Если проблема остается нерешенной, свяжитесь с нашей службой поддержки.
Как верифицироваться через Дію?
Верификация Дія откроется в новом окне. Если страница верификации не открылась, значит окно было заблокировано вашим браузером.
Чтобы разрешить открытие окна, выполните следующие шаги:

1. Проверьте адресную строку браузера на наличие сообщения об ошибке или значка блокировки. Нажмите на него.
2. Если у вас установлен блокировщик всплывающих окон, временно отключите его для этого сайта.
3. Проверьте настройки вашего браузера и убедитесь, что блокировка всплывающих окон отключена или настроена на разрешение открытия данного окна.

Если проблема остается нерешенной, свяжитесь с нашей службой поддержки.
Поздравляем!
Рекомендация засчитана!
В скором времени рекомендация появится на странице риелтора.
Рекомендация не засчитана.
Вы уже оставляли рекомендацию данному риелтору.
В пропозиції є незбережені дані.