3 440 $/мес
20  $/м²
торговое помещение, помещение свободного назначения, помещение для оказания услуг, офисное помещение
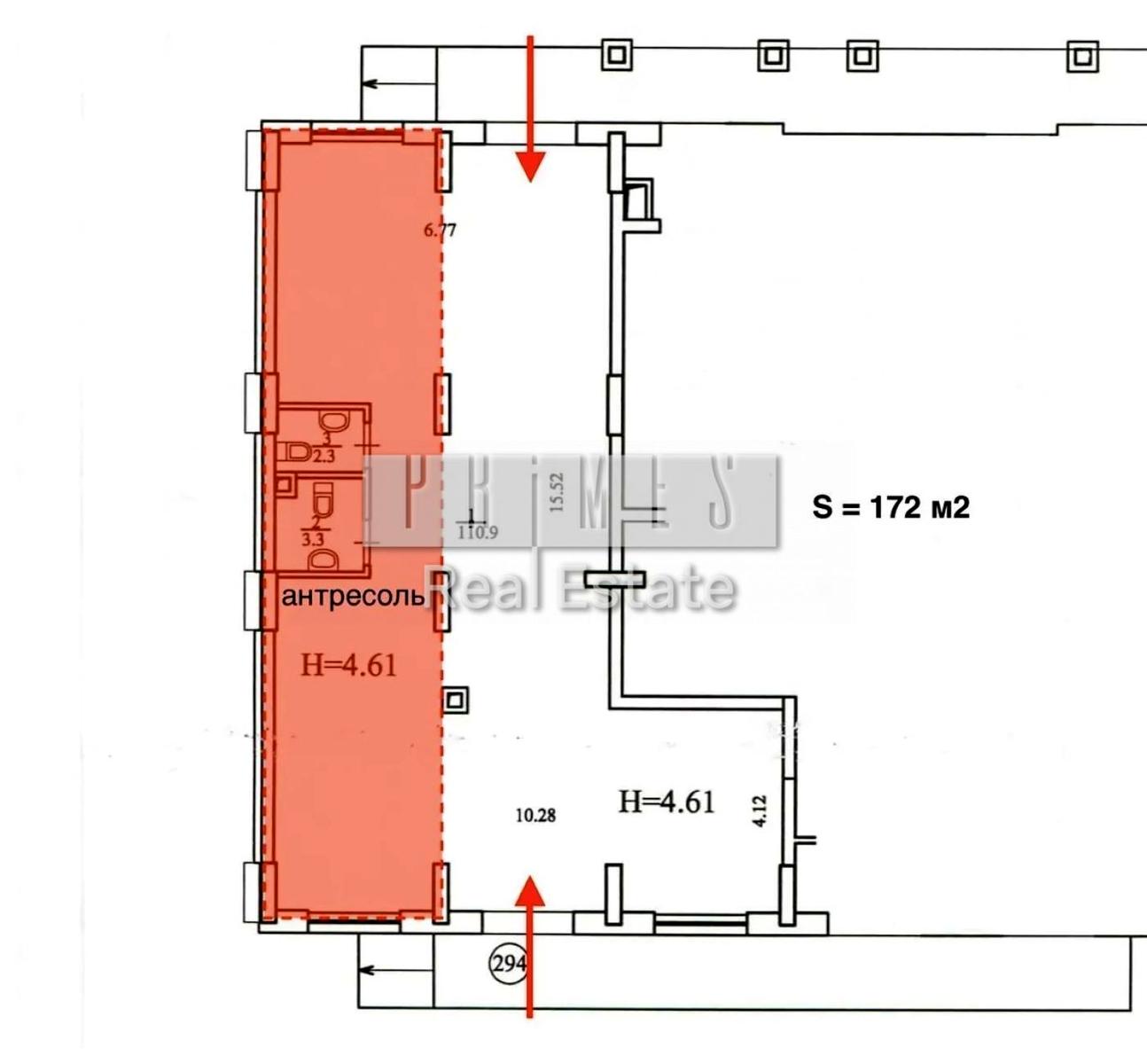
172 м²
2021 год постройки
1 нед. назад
1 мес. назад
5 (сегодня 0, вчера 0)
Описание
Високі стелі 4,6 м створюють відчуття повітря і масштабу.
Антресоль додає другий рівень логіки:
команда — внизу; фокус, переговори та приватність — нагорі.

Це місце, де:
-- офіс виглядає як штаб-квартира;
-- шоурум — як бренд;
-- сервіс — як преміум.

Жодних випадкових рішень.
Лише архітектура, світло і правильна геометрія.

Локація, яка підсилює статус

ЖК Ярославів Град — історичний центр Києва.
Пішохідна доступність до метро Золоті Ворота.
Променад між Бульварно-Кудрявською та Олеся Гончара.

Живий трафік. Преміальне оточення. Правильна аудиторія.

Це топова локація для топових компаній.
Місце, де бренд зчитується ще до входу.

Характеристики:

• фасадне комерційне приміщення
• перший поверх
• панорамні вітрини
• висота стель — 4,6 м
• антресоль
• 17,5 кВт, прямий договір
• вентиляція розведена
• кондиціонування (охолодження + обігрів)
• тепла підлога + центральне опалення
• підготовка під генератор
• open space, легко адаптується

Комерційні умови:

Орендна ставка — 20 $/м²
Фінальне оздоблення входить у вартість
Договір — від 35 місяців
#34264
Детали
Объект коммерческой недвижимости, Класс A, Часть здания, Офисное помещение, Помещение для оказания услуг, Помещение свободного назначения, Торговое помещение. Объект на 1 этаже, В здании 19 этажей. Здание построено в 2021 году. Помещение свободной планировки. Безбарьерность: вход в дом на уровне земли. Комиссия за услуги 50 %
PRIMES
Верифицированный профиль
2
Года опыта
6
Месяцев на сайте
Активных объявлений 275
Эксклюзивных объектов 0
Рекламная активность 0
Последний визит на сайт вчера
Рекомендовать
Адрес
Ваша жалоба принята!
Выберите способ подтверждения
Чтобы ваша рекомендация была засчитана, подтвердите свою личность
* Личные данные не будут отображаться на сайте и будут служить только для подтверждения личности.
Как верифицироваться через Дію?
Считайте QR-код сканером в приложении Действие и подтвердите авторизацию Действие.
QR-код будет действителен еще 02:00
Как верифицироваться через Bankid?
Верификация BankID откроется в новом окне. Если страница верификации не открылась, значит окно было заблокировано вашим браузером.
Чтобы разрешить открытие окна, выполните следующие шаги:

1. Проверьте адресную строку браузера на наличие сообщения об ошибке или значка блокировки. Нажмите на него.
2. Если у вас установлен блокировщик всплывающих окон, временно отключите его для этого сайта.
3. Проверьте настройки вашего браузера и убедитесь, что блокировка всплывающих окон отключена или настроена на разрешение открытия данного окна.

Если проблема остается нерешенной, свяжитесь с нашей службой поддержки.
Как верифицироваться через Дію?
Верификация Дія откроется в новом окне. Если страница верификации не открылась, значит окно было заблокировано вашим браузером.
Чтобы разрешить открытие окна, выполните следующие шаги:

1. Проверьте адресную строку браузера на наличие сообщения об ошибке или значка блокировки. Нажмите на него.
2. Если у вас установлен блокировщик всплывающих окон, временно отключите его для этого сайта.
3. Проверьте настройки вашего браузера и убедитесь, что блокировка всплывающих окон отключена или настроена на разрешение открытия данного окна.

Если проблема остается нерешенной, свяжитесь с нашей службой поддержки.
Поздравляем!
Рекомендация засчитана!
В скором времени рекомендация появится на странице риелтора.
Рекомендация не засчитана.
Вы уже оставляли рекомендацию данному риелтору.
В пропозиції є незбережені дані.