11 898 $/мес
11  $/м²
склад
1107 м²
1967 год постройки
1 нед. назад
1 мес. назад
14 (сегодня 0, вчера 0)
Описание
Оренда складського приміщення

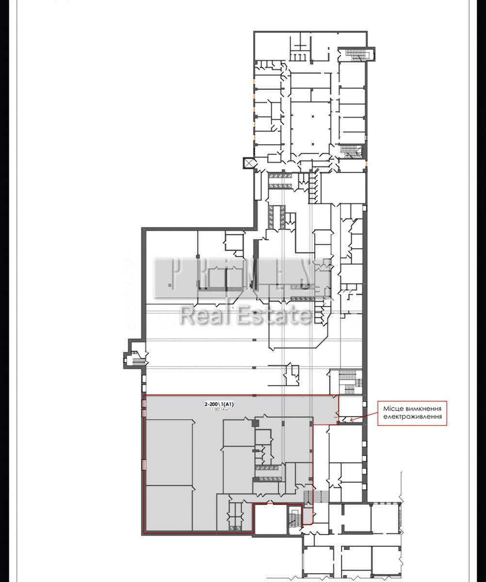
Пропонується в оренду складський блок загальною корисною площею 1 007,14 м², розташований у межах складського комплексу. Приміщення має зручне планування, можливість організації зон зберігання та допоміжних приміщень.

Основні характеристики:
• Корисна площа: 1 007,14 м²
• Комерційна (розрахункова) площа з урахуванням коефіцієнта BOMA 1,1: 1 107,85 м²
• Функціональне зонування відповідно до плану
• Наявне місце вимкнення електроживлення
• Підходить для складської діяльності, зберігання товарів, логістики

Умови оренди (1-й рік):
• Орендна ставка: 4,00 $/м² (без ПДВ)
• Сервісна ставка: 4,95 $/м² (без ПДВ)
• Загальна вартість (без ПДВ): 9 915,29 $
• Загальна вартість з ПДВ: 11 898,35 $


Паркування:
• Паркомісця не передбачені
• Вартість не фіксованого місця (за потреби): 800 грн (без ПДВ)

Приміщення готове до використання та може бути адаптоване під потреби орендаря.

#34276
Детали
Объект коммерческой недвижимости, Класс A, Офисный центр, Склад. Объект на 2 этаже, В здании 6 этажей. Здание построено в 1967 году. Помещение свободной планировки. Безбарьерность: дверные проемы в доме шириной более 0.9 м. Комиссия за услуги 50 %
PRIMES
Верифицированный профиль
2
Года опыта
6
Месяцев на сайте
Активных объявлений 275
Эксклюзивных объектов 0
Рекламная активность 0
Последний визит на сайт 2 дня назад
Рекомендовать
Адрес
Ваша жалоба принята!
Выберите способ подтверждения
Чтобы ваша рекомендация была засчитана, подтвердите свою личность
* Личные данные не будут отображаться на сайте и будут служить только для подтверждения личности.
Как верифицироваться через Дію?
Считайте QR-код сканером в приложении Действие и подтвердите авторизацию Действие.
QR-код будет действителен еще 02:00
Как верифицироваться через Bankid?
Верификация BankID откроется в новом окне. Если страница верификации не открылась, значит окно было заблокировано вашим браузером.
Чтобы разрешить открытие окна, выполните следующие шаги:

1. Проверьте адресную строку браузера на наличие сообщения об ошибке или значка блокировки. Нажмите на него.
2. Если у вас установлен блокировщик всплывающих окон, временно отключите его для этого сайта.
3. Проверьте настройки вашего браузера и убедитесь, что блокировка всплывающих окон отключена или настроена на разрешение открытия данного окна.

Если проблема остается нерешенной, свяжитесь с нашей службой поддержки.
Как верифицироваться через Дію?
Верификация Дія откроется в новом окне. Если страница верификации не открылась, значит окно было заблокировано вашим браузером.
Чтобы разрешить открытие окна, выполните следующие шаги:

1. Проверьте адресную строку браузера на наличие сообщения об ошибке или значка блокировки. Нажмите на него.
2. Если у вас установлен блокировщик всплывающих окон, временно отключите его для этого сайта.
3. Проверьте настройки вашего браузера и убедитесь, что блокировка всплывающих окон отключена или настроена на разрешение открытия данного окна.

Если проблема остается нерешенной, свяжитесь с нашей службой поддержки.
Поздравляем!
Рекомендация засчитана!
В скором времени рекомендация появится на странице риелтора.
Рекомендация не засчитана.
Вы уже оставляли рекомендацию данному риелтору.
В пропозиції є незбережені дані.