1
7 050 $/мес
15
$/м²
Демеевская ул., 27
торговое помещение, помещение свободного назначения, помещение для оказания услуг, офисное помещение, банковское помещение
470 м²
2 дня назад
2 мес. назад
13 (сегодня 0,
вчера 0)
Описание
Пропонується комерційне приміщення 470 м.кв. під будь-який вид діяльності!
ЖК PARK AVENUE VIP вул. Деміївська 27
Приміщення без ремонту, надаються ремонтні канікули 2-3 місяці
Вхід з фасаду БЦ
Із внутрішнього двору є облаштоване місце для вигрузки/погрузки товарів
12 паркомісць у паркінгу
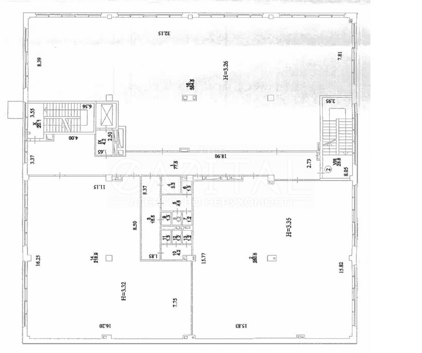
Ціна 15$/м.кв., вільне планування
Вентиляція:
Для сан. вузлів передбачена шахта для підключення витяжки.
Передбачено витяжний повітропровід в приміщення № 109 переріз 700х300 (L=3200 м3/год), №107 переріз 200х200 (L=520 м3/год) на перспективу .
Для комплексного рішення необхідно розробити проект відповідно технічних потреб приміщення, з використанням існуючих мереж.
Кондиціювання:
Передбачена шахта для прокладки фреонових трубопроводів, зовнішні блоки встановлюються власником приміщення на покрівлі або над проїздом в паркінг.
Опалення: двох трубна система опалення з приладами опалення. ( 112/4249 вт, 111/1394 вт, 110,1/400 вт, 107/9665 вт, 101/2204вт , 105/2922 вт ,109/25039, 1 поверх всього/ 45873Вт / 0.039 Гкал/год );
В1,Т3 (ХВ, ГВ):
Водопостачання та водовідведення:
Передбачено лічильники холодної та гарячої води d 15 мм, в сан.вузлах. Qном. 1,5 м3/час ;
К1:
Передбачено господарчо-побутова каналізація в сан.вузлі та випуск технологічної каналізації з жиро вловлювачем (випуск знаходиться в паркінгу).
Електрика:
Облік лічильника встановлений в щитовій, розрахункове навантаження 89 кВт.
Слабоструменеві системи по 1 поверху:
1. Ліфти – немає енергоспоживаючих пристроїв;
2. Автоматика та диспетчеризація - пристрої та щити знаходяться у слаботочній поверховій ніші. Потужність - до 350 Вт;
3. Протипожежна автоматика – пристрої живляться від централізованої лінії зв'язку. Потужність - до 500 Вт.
4. Системи безпеки – блоки живлення системи контролю доступу та відеоспостереження знаходяться у поверховому слаботочному щиті. Потужність - до 500 Вт; 5. Системи зв'язку - немає енергоспоживання.
5. Висота 3.26-3.35 м.
#A19944
ЖК PARK AVENUE VIP вул. Деміївська 27
Приміщення без ремонту, надаються ремонтні канікули 2-3 місяці
Вхід з фасаду БЦ
Із внутрішнього двору є облаштоване місце для вигрузки/погрузки товарів
12 паркомісць у паркінгу
Ціна 15$/м.кв., вільне планування
Вентиляція:
Для сан. вузлів передбачена шахта для підключення витяжки.
Передбачено витяжний повітропровід в приміщення № 109 переріз 700х300 (L=3200 м3/год), №107 переріз 200х200 (L=520 м3/год) на перспективу .
Для комплексного рішення необхідно розробити проект відповідно технічних потреб приміщення, з використанням існуючих мереж.
Кондиціювання:
Передбачена шахта для прокладки фреонових трубопроводів, зовнішні блоки встановлюються власником приміщення на покрівлі або над проїздом в паркінг.
Опалення: двох трубна система опалення з приладами опалення. ( 112/4249 вт, 111/1394 вт, 110,1/400 вт, 107/9665 вт, 101/2204вт , 105/2922 вт ,109/25039, 1 поверх всього/ 45873Вт / 0.039 Гкал/год );
В1,Т3 (ХВ, ГВ):
Водопостачання та водовідведення:
Передбачено лічильники холодної та гарячої води d 15 мм, в сан.вузлах. Qном. 1,5 м3/час ;
К1:
Передбачено господарчо-побутова каналізація в сан.вузлі та випуск технологічної каналізації з жиро вловлювачем (випуск знаходиться в паркінгу).
Електрика:
Облік лічильника встановлений в щитовій, розрахункове навантаження 89 кВт.
Слабоструменеві системи по 1 поверху:
1. Ліфти – немає енергоспоживаючих пристроїв;
2. Автоматика та диспетчеризація - пристрої та щити знаходяться у слаботочній поверховій ніші. Потужність - до 350 Вт;
3. Протипожежна автоматика – пристрої живляться від централізованої лінії зв'язку. Потужність - до 500 Вт.
4. Системи безпеки – блоки живлення системи контролю доступу та відеоспостереження знаходяться у поверховому слаботочному щиті. Потужність - до 500 Вт; 5. Системи зв'язку - немає енергоспоживання.
5. Висота 3.26-3.35 м.
#A19944
Детали
Объект коммерческой недвижимости, Помещение в жилом здании, Банковское помещение, Офисное помещение, Помещение для оказания услуг, Помещение свободного назначения, Торговое помещение. Объект на 2 этаже, В здании 3 этажа. Комиссия за услуги 50 %




























