2
19 900 грн/мес
474
грн/м²
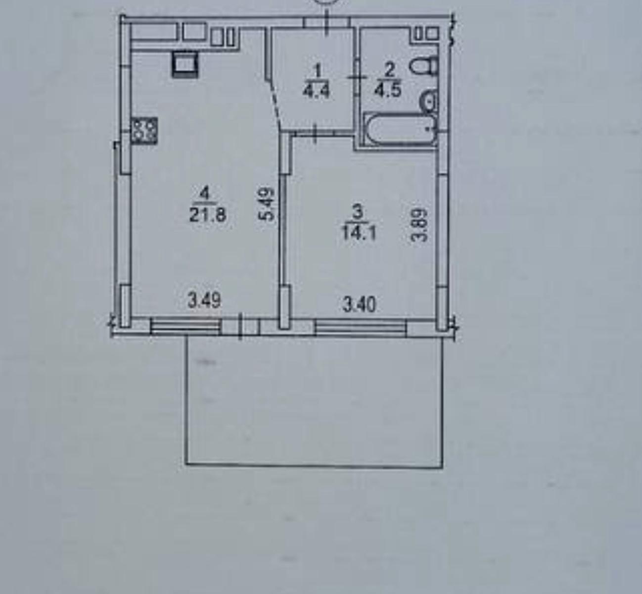
помещение для оказания услуг
42 м²
2024 год постройки
2 дня назад
1 мес. назад
83 (сегодня 0,
вчера 1)
Описание
Здається приміщення в оренду ,житловий фонд.Вільного призначення.Підійде під шоурум,салон краси,офіс. Під орендаря можемо зробити частковий ремонт по домовленості.
Детали
Объект коммерческой недвижимости, Помещение в жилом здании, Помещение для оказания услуг. Объект на 1 этаже, В здании 25 этажей. Здание построено в 2024 году. Безбарьерность: вход в дом на уровне земли. Без комиссии
История изменения цены
| 28.03.2026 | - 100 грн | 19 900 грн |
| 19.03.2026 | 20 000 грн |
Адрес
ЖК Варшавський-2
домов сдано
164
год основания
2003
домов в процессе
23
















