1
19 600 $/мес
28  $/м²
помещение свободного назначения, офисное помещение
700 м²
4 нед. назад
4 нед. назад
13 (сегодня 0, вчера 0)
Описание
Без Комісії
Представник Бізнес Парку

Шевченківський район, вулиця Дорогожицька 3

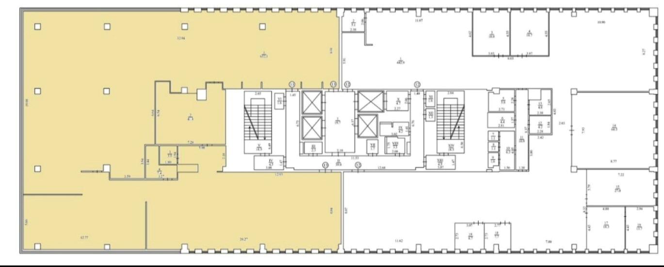
Пропонуємо офіс з Меблями на 6 поверсі ( звільниться 1 травня, перегляди вже можливі )

700 м²
22 $ м² + 6 $ OPEX + ПДВ

UNIT. City - перший інноваційний парк в Україні.
Це одна з найбільших платформ, яка поєднує в собі інфраструктуру та інноваційну єкосистему для IT - та технологічних компаній Центральної та Східної Європи.

UNIT. City розташований на 23 га землі всього за 6 км від центру Києва.
Інноваційний парк утворює цілий Квартал нерухомості різного призначення : офіси, житлові приміщення, інноваційні навчальні заклади, R&D центри, лабораторії VR і AR, виробничі потужності для 3D друку та адитивного виробництва.

В UNIT. City є місце для проведення семінарів, зустрічей та конференцій. Парк також пропонує своїм резидентам пакет додаткових послуг з розвитку бізнесу, таких як допомога в комерціалізації та зборів коштів, консультування, юридичні послуги, коучинг, наставництво та програми акселирації, а також лабораторії для створення прототипів.

Розвинена інфраструктура парку :
- зони відпочинку на поверсі та на території
- амфітеатр
- спортивні майданчики
- open-air простори просторий
- кафе
- street food
- спорт хаб

Охорона 24/7
Картки СКД для доступу

Місія UNIT. City - створити унікальну інноваційну платформу, де передовим компаніям, стартапам та експертам буде легко знайти одне одного, співпрацювати й зростати, відточуючи якість продукції та послуг.
Детали
Объект коммерческой недвижимости, Класс A, Офисный центр, Офисное помещение, Помещение свободного назначения. Объект на 6 этаже, В здании 8 этажей. Без комиссии
Верифицированный профиль
Gold partner
4
Года опыта
1
Год на сайте
Активных объявлений 44
Эксклюзивных объектов 0
Рекламная активность 17611
Последний визит на сайт сегодня
Рекомендовать
Адрес
Ваша жалоба принята!
Выберите способ подтверждения
Чтобы ваша рекомендация была засчитана, подтвердите свою личность
* Личные данные не будут отображаться на сайте и будут служить только для подтверждения личности.
Как верифицироваться через Дію?
Считайте QR-код сканером в приложении Действие и подтвердите авторизацию Действие.
QR-код будет действителен еще 02:00
Как верифицироваться через Bankid?
Верификация BankID откроется в новом окне. Если страница верификации не открылась, значит окно было заблокировано вашим браузером.
Чтобы разрешить открытие окна, выполните следующие шаги:

1. Проверьте адресную строку браузера на наличие сообщения об ошибке или значка блокировки. Нажмите на него.
2. Если у вас установлен блокировщик всплывающих окон, временно отключите его для этого сайта.
3. Проверьте настройки вашего браузера и убедитесь, что блокировка всплывающих окон отключена или настроена на разрешение открытия данного окна.

Если проблема остается нерешенной, свяжитесь с нашей службой поддержки.
Как верифицироваться через Дію?
Верификация Дія откроется в новом окне. Если страница верификации не открылась, значит окно было заблокировано вашим браузером.
Чтобы разрешить открытие окна, выполните следующие шаги:

1. Проверьте адресную строку браузера на наличие сообщения об ошибке или значка блокировки. Нажмите на него.
2. Если у вас установлен блокировщик всплывающих окон, временно отключите его для этого сайта.
3. Проверьте настройки вашего браузера и убедитесь, что блокировка всплывающих окон отключена или настроена на разрешение открытия данного окна.

Если проблема остается нерешенной, свяжитесь с нашей службой поддержки.
Поздравляем!
Рекомендация засчитана!
В скором времени рекомендация появится на странице риелтора.
Рекомендация не засчитана.
Вы уже оставляли рекомендацию данному риелтору.
В пропозиції є незбережені дані.