3 300 $/мес
20  $/м²
торговое помещение
165 м²
2002 год постройки
6 дней назад
3 нед. назад
6 (сегодня 0, вчера 0)
Описание
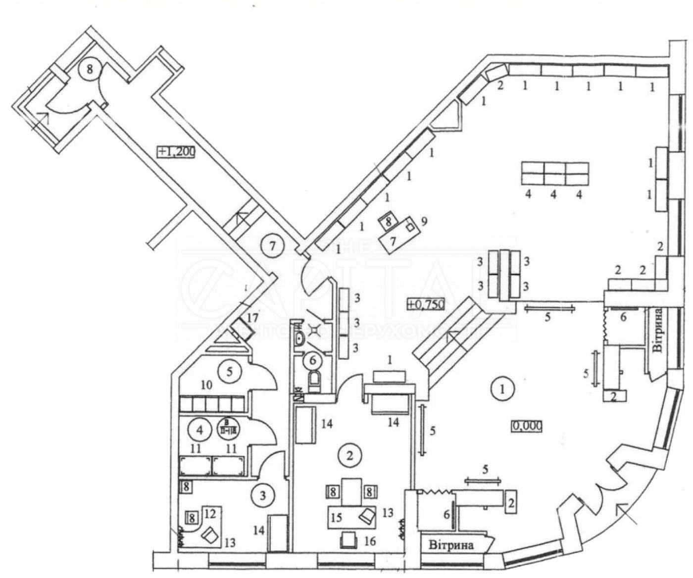
Пропонується до оренди фасадне приміщення за адресою: КИЇВ, ВУЛ. МИКІЛЬСЬКО-СЛОБІДСЬКА, 4Г.

ОСНОВНІ ДАНІ
Об'єкт: Будівля колишнього збройового магазину «Best Arms»
Поточний стан: Приміщення вільне, мебльоване
Адреса: Україна, Київ, вул. Микільсько-Слобідська, 4Г
Опис місця розташування:
- Лівий берег, р-н ст. метро «Лівобережна».
- Магазин розташований на фасадній частині житлової будівлі
(на розі вул.Микільсько-Слобідської) на першому поверсі.
- Безпосередньо в швидко зростаючому житловому масиві,
поруч із Міжнародним виставковим комплексом
Найближчі станції метро: Станція «Лівобережна» - 1800 м
Об'єкти, розташовані
поблизу:
- Міжнародний виставковий центр - 300 м
- Novus - 700 м
- АТБ маркет - 400 м
- Ресторани / кафе
- Спорт-ленд - 800 м
- ТРЦ Комод / Мультиплекс Комод - 1500 м
- Готель «Адрія» 3 зв.
Загальна площа приміщень: 165,3 м

Технічна інфраструктура
Електропостачання: - 1 ввід - 20 кВт
Централізоване водопостачання та каналізація
Центральне опалення:
- Окреме введення від будинкового теплопункту (можливе
відключення незалежно від решти будівлі)
Вентиляція: - Припливна Витяжна, незалежна
Кондиціювання - Мульти-спліт система Daikin (11 кВт - обігрів / 12 кВт -
охолодження)
Пожежна сигналізація - З виведенням на пульт пожежної охорони
Охоронна сигналізація - З виведенням на пульт охоронної організації
Телекомунікації: - Воля кабель (тимчасово відключено)
Можливості для
використання / оренди:
✓ Збройовий магазин (відповідає всім
вимогам з безпеки, мебльований)
✓ Магазин / бутик
✓ Кафе / ресторан
✓ Інше

A14070
Детали
Объект коммерческой недвижимости, Отдельно стоящее здание, Торговое помещение. Объект на 1 этаже, В здании 16 этажей. Здание построено в 2002 году. Комиссия за услуги 50 %
THE Capital
Верифицированный профиль
PRO аккаунт
Професійний акаунт
Platinum partner
2
Года опыта
8
Месяцев на сайте
Активных объявлений 552
Эксклюзивных объектов 0
Рекламная активность 19097
Последний визит на сайт вчера
Рекомендовать
Адрес
Ваша жалоба принята!
Выберите способ подтверждения
Чтобы ваша рекомендация была засчитана, подтвердите свою личность
* Личные данные не будут отображаться на сайте и будут служить только для подтверждения личности.
Как верифицироваться через Дію?
Считайте QR-код сканером в приложении Действие и подтвердите авторизацию Действие.
QR-код будет действителен еще 02:00
Как верифицироваться через Bankid?
Верификация BankID откроется в новом окне. Если страница верификации не открылась, значит окно было заблокировано вашим браузером.
Чтобы разрешить открытие окна, выполните следующие шаги:

1. Проверьте адресную строку браузера на наличие сообщения об ошибке или значка блокировки. Нажмите на него.
2. Если у вас установлен блокировщик всплывающих окон, временно отключите его для этого сайта.
3. Проверьте настройки вашего браузера и убедитесь, что блокировка всплывающих окон отключена или настроена на разрешение открытия данного окна.

Если проблема остается нерешенной, свяжитесь с нашей службой поддержки.
Как верифицироваться через Дію?
Верификация Дія откроется в новом окне. Если страница верификации не открылась, значит окно было заблокировано вашим браузером.
Чтобы разрешить открытие окна, выполните следующие шаги:

1. Проверьте адресную строку браузера на наличие сообщения об ошибке или значка блокировки. Нажмите на него.
2. Если у вас установлен блокировщик всплывающих окон, временно отключите его для этого сайта.
3. Проверьте настройки вашего браузера и убедитесь, что блокировка всплывающих окон отключена или настроена на разрешение открытия данного окна.

Если проблема остается нерешенной, свяжитесь с нашей службой поддержки.
Поздравляем!
Рекомендация засчитана!
В скором времени рекомендация появится на странице риелтора.
Рекомендация не засчитана.
Вы уже оставляли рекомендацию данному риелтору.
В пропозиції є незбережені дані.