1 800 $/мес
13  $/м²
помещение свободного назначения, помещение для оказания услуг, офисное помещение
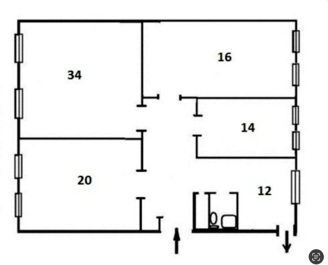
140 м²
1904 год постройки
вчера
3 нед. назад
47 (сегодня 0, вчера 0)
Описание
Офіс площею 140 м² має:
• 4 окремі кабінети
• кухня
• санвузол
• високі стелі, багато світла

Формат:
1 поверх (вхід через під’їзд)
Цегляний царський будинок

Офіс повністю укомплектований меблями та технікою — можна заїжджати і працювати з першого дня.

Ідеально підійде для:
IT-компанії, юридичної фірми, представництва, консалтингу, шоуруму.
5 хвилин до метро Хрещатик
5 хвилин до Майдану Незалежності
урядовий квартал, центр бізнес-активності Києва
Детали
Объект коммерческой недвижимости, Класс D, Помещение в жилом здании, Офисное помещение, Помещение для оказания услуг, Помещение свободного назначения. Объект на 1 этаже, В здании 6 этажей. Здание построено в 1904 году. Без комиссии
My Flat
Верифицированный профиль
Gold partner
18
Лет опыта
2
Верифицированные рекомендации
13
Лет на сайте
Активных объявлений 9
Эксклюзивных объектов 0
Рекламная активность 16095
Последний визит на сайт вчера
Рекомендовать
Адрес
Ваша жалоба принята!
Выберите способ подтверждения
Чтобы ваша рекомендация была засчитана, подтвердите свою личность
* Личные данные не будут отображаться на сайте и будут служить только для подтверждения личности.
Как верифицироваться через Дію?
Считайте QR-код сканером в приложении Действие и подтвердите авторизацию Действие.
QR-код будет действителен еще 02:00
Как верифицироваться через Bankid?
Верификация BankID откроется в новом окне. Если страница верификации не открылась, значит окно было заблокировано вашим браузером.
Чтобы разрешить открытие окна, выполните следующие шаги:

1. Проверьте адресную строку браузера на наличие сообщения об ошибке или значка блокировки. Нажмите на него.
2. Если у вас установлен блокировщик всплывающих окон, временно отключите его для этого сайта.
3. Проверьте настройки вашего браузера и убедитесь, что блокировка всплывающих окон отключена или настроена на разрешение открытия данного окна.

Если проблема остается нерешенной, свяжитесь с нашей службой поддержки.
Как верифицироваться через Дію?
Верификация Дія откроется в новом окне. Если страница верификации не открылась, значит окно было заблокировано вашим браузером.
Чтобы разрешить открытие окна, выполните следующие шаги:

1. Проверьте адресную строку браузера на наличие сообщения об ошибке или значка блокировки. Нажмите на него.
2. Если у вас установлен блокировщик всплывающих окон, временно отключите его для этого сайта.
3. Проверьте настройки вашего браузера и убедитесь, что блокировка всплывающих окон отключена или настроена на разрешение открытия данного окна.

Если проблема остается нерешенной, свяжитесь с нашей службой поддержки.
Поздравляем!
Рекомендация засчитана!
В скором времени рекомендация появится на странице риелтора.
Рекомендация не засчитана.
Вы уже оставляли рекомендацию данному риелтору.
В пропозиції є незбережені дані.