14 220 $/мес
15  $/м²
помещение для оказания услуг
948 м²
2019 год постройки
2 дня назад
3 нед. назад
3 (сегодня 0, вчера 0)
Описание
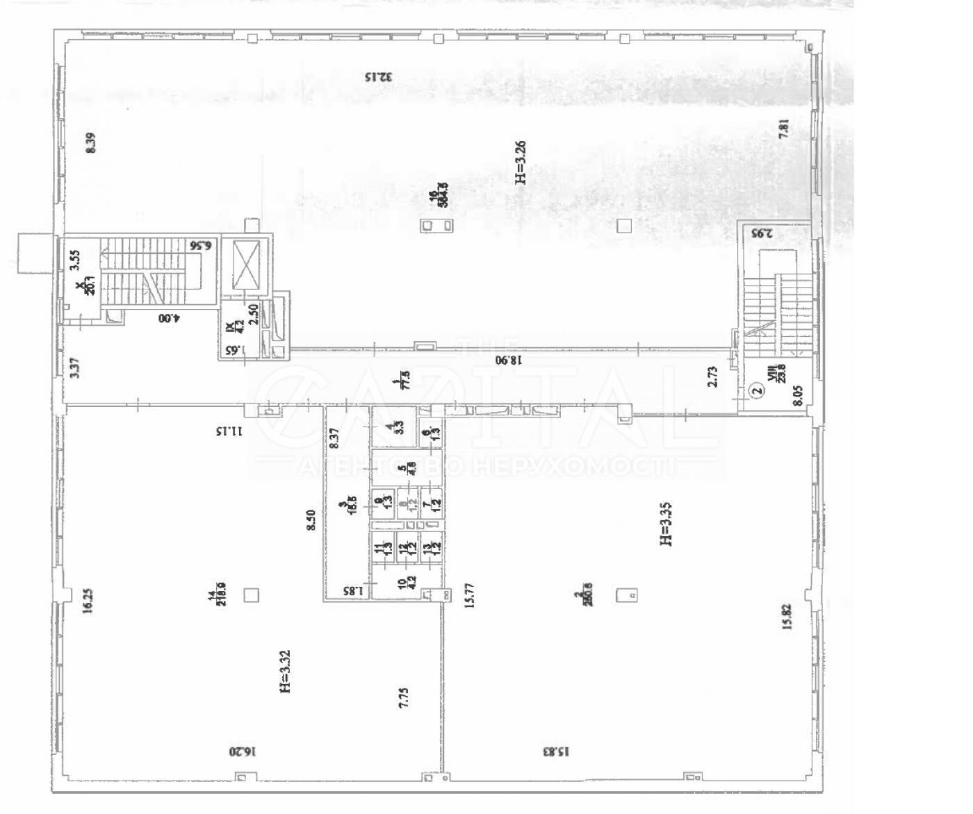
Пропонується комерційне приміщення 948 м.кв. під будь-який вид діяльності!
ЖК PARK AVENUE VIP вул. Деміївська 27
Приміщення без ремонту, надаються ремонтні канікули 2-3 місяці
Вхід з фасаду БЦ
Приміщення займає весь 2 поверх, 2 особистих входи та ліфт
Із внутрішнього двору є облаштоване місце для вигрузки/погрузки товарів
12 паркомісць у паркінгу
Ціна 15$/м.кв., вільне планування, можлива оренда половини приміщення

Вентиляція:
Для сан. вузлів передбачена шахта для підключення витяжки.
Передбачено витяжний повітропровід в приміщення № 109 переріз 700х300 (L=3200 м3/год), №107 переріз 200х200 (L=520 м3/год) на перспективу .
Для комплексного рішення необхідно розробити проект відповідно технічних потреб приміщення, з використанням існуючих мереж.

Кондиціювання:
Передбачена шахта для прокладки фреонових трубопроводів, зовнішні блоки встановлюються власником приміщення на покрівлі або над проїздом в паркінг.
Опалення: двох трубна система опалення з приладами опалення. ( 112/4249 вт, 111/1394 вт, 110,1/400 вт, 107/9665 вт, 101/2204вт , 105/2922 вт ,109/25039, 1 поверх всього/ 45873Вт / 0.039 Гкал/год );
В1,Т3 (ХВ, ГВ):

Водопостачання та водовідведення:
Передбачено лічильники холодної та гарячої води d 15 мм, в сан.вузлах. Qном. 1,5 м3/час ;
К1:
Передбачено господарчо-побутова каналізація в сан.вузлі та випуск технологічної каналізації з жиро вловлювачем (випуск знаходиться в паркінгу).

Електрика:
Облік лічильника встановлений в щитовій, розрахункове навантаження 89 кВт.

Слабоструменеві системи по 1 поверху:
1. Ліфти – немає енергоспоживаючих пристроїв;
2. Автоматика та диспетчеризація - пристрої та щити знаходяться у слаботочній поверховій ніші. Потужність - до 350 Вт;
3. Протипожежна автоматика – пристрої живляться від централізованої лінії зв'язку. Потужність - до 500 Вт.
4. Системи безпеки – блоки живлення системи контролю доступу та відеоспостереження знаходяться у поверховому слаботочному щиті. Потужність - до 500 Вт; 5. Системи зв'язку - немає енергоспоживання.
5. Висота 3.26-3.35 м.

Чекаємо Вас на перегляд по домовленості!


315917352793
Детали
Объект коммерческой недвижимости, Отдельно стоящее здание, Помещение для оказания услуг. Объект на 2 этаже, В здании 3 этажа. Здание построено в 2019 году. Комиссия за услуги 50 %
THE Capital
Верифицированный профиль
PRO аккаунт
Професійний акаунт
Platinum partner
2
Года опыта
8
Месяцев на сайте
Активных объявлений 546
Эксклюзивных объектов 0
Рекламная активность 19465
Последний визит на сайт вчера
Рекомендовать
Адрес
Ваша жалоба принята!
Выберите способ подтверждения
Чтобы ваша рекомендация была засчитана, подтвердите свою личность
* Личные данные не будут отображаться на сайте и будут служить только для подтверждения личности.
Как верифицироваться через Дію?
Считайте QR-код сканером в приложении Действие и подтвердите авторизацию Действие.
QR-код будет действителен еще 02:00
Как верифицироваться через Bankid?
Верификация BankID откроется в новом окне. Если страница верификации не открылась, значит окно было заблокировано вашим браузером.
Чтобы разрешить открытие окна, выполните следующие шаги:

1. Проверьте адресную строку браузера на наличие сообщения об ошибке или значка блокировки. Нажмите на него.
2. Если у вас установлен блокировщик всплывающих окон, временно отключите его для этого сайта.
3. Проверьте настройки вашего браузера и убедитесь, что блокировка всплывающих окон отключена или настроена на разрешение открытия данного окна.

Если проблема остается нерешенной, свяжитесь с нашей службой поддержки.
Как верифицироваться через Дію?
Верификация Дія откроется в новом окне. Если страница верификации не открылась, значит окно было заблокировано вашим браузером.
Чтобы разрешить открытие окна, выполните следующие шаги:

1. Проверьте адресную строку браузера на наличие сообщения об ошибке или значка блокировки. Нажмите на него.
2. Если у вас установлен блокировщик всплывающих окон, временно отключите его для этого сайта.
3. Проверьте настройки вашего браузера и убедитесь, что блокировка всплывающих окон отключена или настроена на разрешение открытия данного окна.

Если проблема остается нерешенной, свяжитесь с нашей службой поддержки.
Поздравляем!
Рекомендация засчитана!
В скором времени рекомендация появится на странице риелтора.
Рекомендация не засчитана.
Вы уже оставляли рекомендацию данному риелтору.
В пропозиції є незбережені дані.