1
2 700 $/мес
19  $/м²
офисное помещение
140 м²
1910 год постройки
2 нед. назад
4 нед. назад
3 (сегодня 0, вчера 0)
Описание
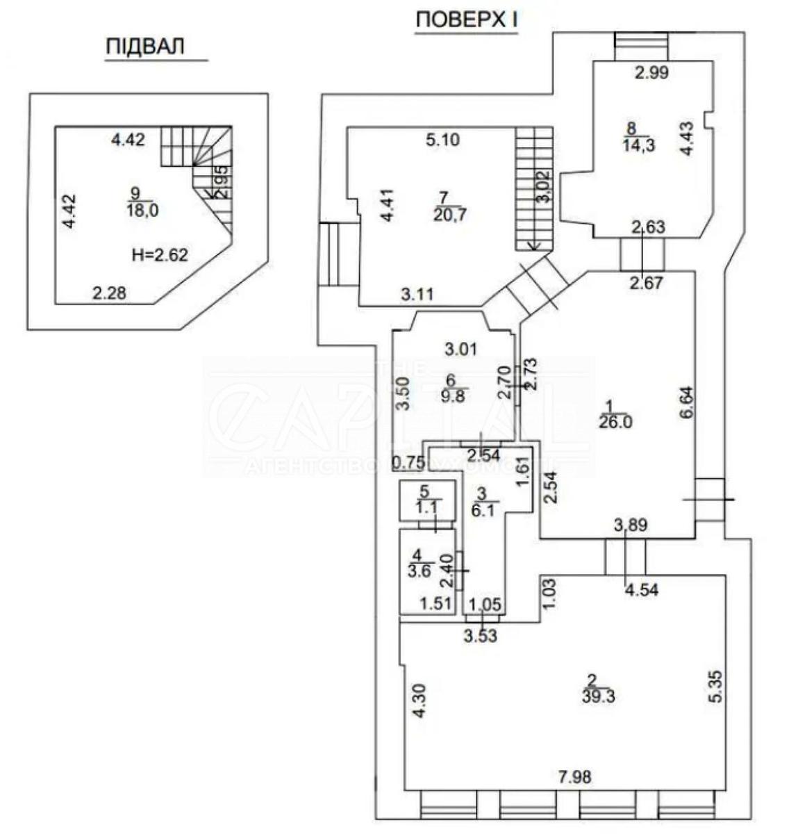
Оренда офісу в центрі міста за адресою: вул. Шота Руставелі

Пропонуємо в оренду комфортний офіс в самому серці міста. Ідеальне розташування для вашого бізнесу: зручний доступ до всіх транспортних шляхів, поруч з основними адміністративними та діловими центрами.

Особливістю цього приміщення є наявність окремого кабінету в підвалі, який можна використовувати як укриття для співробітників у разі необхідності. Це важлива перевага, яка забезпечує додаткову безпеку та спокій для вашої команди.

Основні характеристики:

Зручне розташування в центрі міста
Просторі та світлі кімнати
Кабінет в підвалі, що можна використовувати як укриття
Підключення до всіх комунікацій
Не втратьте шанс орендувати офіс, що поєднує зручність, безпеку та стиль!

A15010
Детали
Объект коммерческой недвижимости, Помещение в жилом здании, Офисное помещение. Объект на 1 этаже, В здании 7 этажей. Здание построено в 1910 году. Комиссия за услуги 50 %
THE Capital
Верифицированный профиль
6
Лет опыта
2
Года на сайте
Активных объявлений 112
Эксклюзивных объектов 0
Рекламная активность 1761
Последний визит на сайт 2 дня назад
Рекомендовать
Адрес
Ваша жалоба принята!
Выберите способ подтверждения
Чтобы ваша рекомендация была засчитана, подтвердите свою личность
* Личные данные не будут отображаться на сайте и будут служить только для подтверждения личности.
Как верифицироваться через Дію?
Считайте QR-код сканером в приложении Действие и подтвердите авторизацию Действие.
QR-код будет действителен еще 02:00
Как верифицироваться через Bankid?
Верификация BankID откроется в новом окне. Если страница верификации не открылась, значит окно было заблокировано вашим браузером.
Чтобы разрешить открытие окна, выполните следующие шаги:

1. Проверьте адресную строку браузера на наличие сообщения об ошибке или значка блокировки. Нажмите на него.
2. Если у вас установлен блокировщик всплывающих окон, временно отключите его для этого сайта.
3. Проверьте настройки вашего браузера и убедитесь, что блокировка всплывающих окон отключена или настроена на разрешение открытия данного окна.

Если проблема остается нерешенной, свяжитесь с нашей службой поддержки.
Как верифицироваться через Дію?
Верификация Дія откроется в новом окне. Если страница верификации не открылась, значит окно было заблокировано вашим браузером.
Чтобы разрешить открытие окна, выполните следующие шаги:

1. Проверьте адресную строку браузера на наличие сообщения об ошибке или значка блокировки. Нажмите на него.
2. Если у вас установлен блокировщик всплывающих окон, временно отключите его для этого сайта.
3. Проверьте настройки вашего браузера и убедитесь, что блокировка всплывающих окон отключена или настроена на разрешение открытия данного окна.

Если проблема остается нерешенной, свяжитесь с нашей службой поддержки.
Поздравляем!
Рекомендация засчитана!
В скором времени рекомендация появится на странице риелтора.
Рекомендация не засчитана.
Вы уже оставляли рекомендацию данному риелтору.
В пропозиції є незбережені дані.