1 305 $/мес
15  $/м²
офисное помещение
87 м²
1 нед. назад
1 нед. назад
3 (сегодня 0, вчера 0)
Описание
#31092
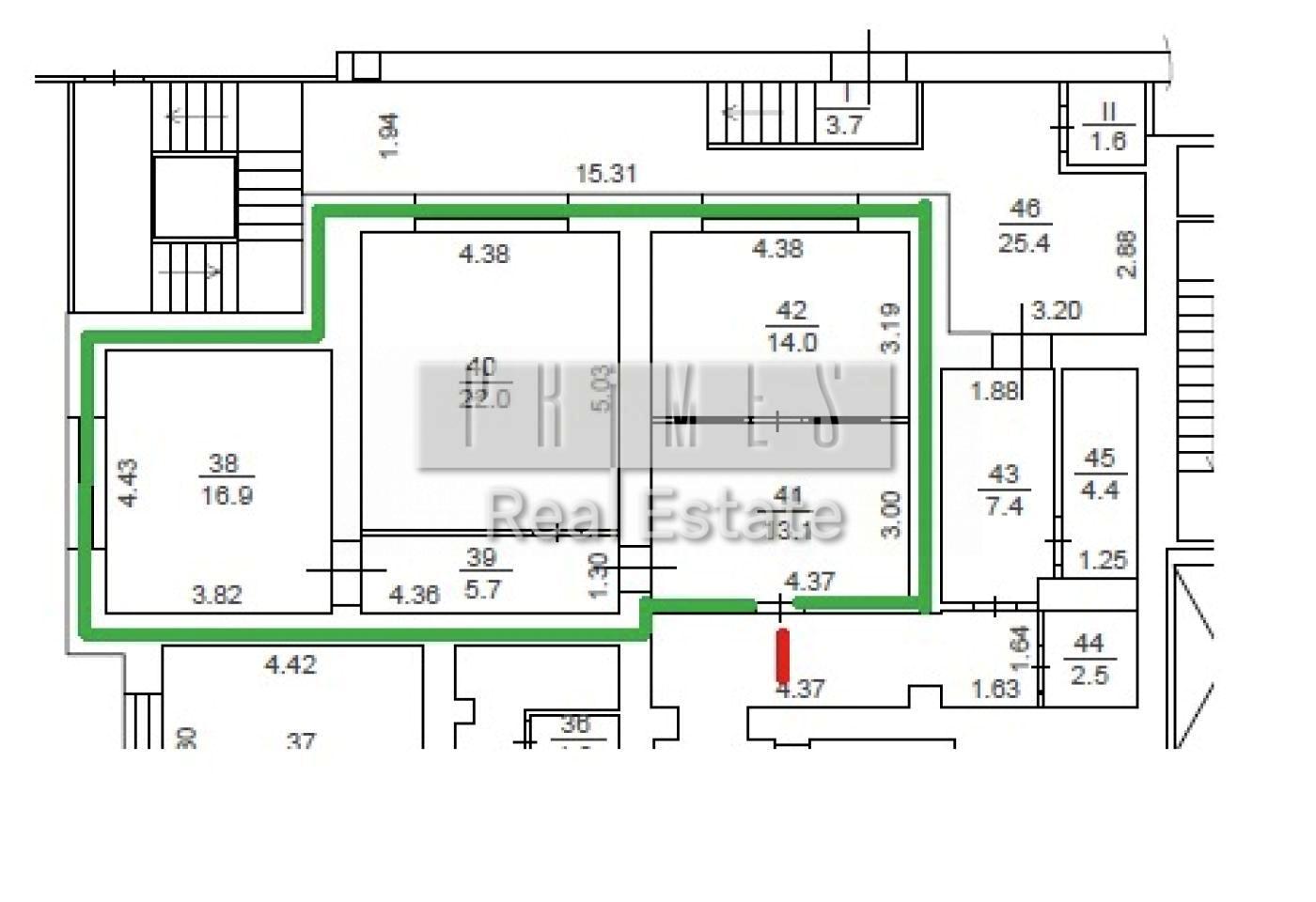
Пропонується в оренду офісне приміщення в БЦ Горизонт Офіс Тауерс за адресою вулиця Шовковична 42-44, Печерський район
87 кв м
мінус перший поверх з вікнами
3 кабінети та приймальня
Бізнес центр Горизонт Офіс Тауерс (Horizon Office Towers) виділяється своїм вигідним розташуванням, з вікон комплексу відкривається чудовий вид міста.
БЦ знаходиться в центрі ділового і культурного життя Києва, поруч з урядовим кварталом, що привертає до оренди офісів компаній, що ведуть діяльність в публічній, міжнародної та громадської сфері.

Навколишні об'єкти: Парк ім. Богомольця, Кловський ліцей, бізнес центри Парус, Гуллівер, Мандарин Плаза, Арена Сіті, Карнегі Центр (Carnegie Center) і ін.

Найближчі ст.м. Кловська і ст.м. Палац Спорту - 5-7 хвилинах ходьби.

Під'їзд до будівлі бізнес центру можливий з поруч розташованих вул. Шовковична, вул. Дарвіна, бул. Лесі Українки, вул. Басейна.
Детали
Объект коммерческой недвижимости, Класс B, Помещение в офисном центре, Офисное помещение. Объект на 1 этаже, В здании 10 этажей. В помещении 4 комнаты. Комиссия за услуги 50 %
PRIMES
Верифицированный профиль
3
Года опыта
2
Месяца на сайте
Активных объявлений 628
Эксклюзивных объектов 0
Рекламная активность 0
Последний визит на сайт сегодня
Рекомендовать
Адрес
Ваша жалоба принята!
Выберите способ подтверждения
Чтобы ваша рекомендация была засчитана, подтвердите свою личность
* Личные данные не будут отображаться на сайте и будут служить только для подтверждения личности.
Как верифицироваться через Дію?
Считайте QR-код сканером в приложении Действие и подтвердите авторизацию Действие.
QR-код будет действителен еще 02:00
Как верифицироваться через Bankid?
Верификация BankID откроется в новом окне. Если страница верификации не открылась, значит окно было заблокировано вашим браузером.
Чтобы разрешить открытие окна, выполните следующие шаги:

1. Проверьте адресную строку браузера на наличие сообщения об ошибке или значка блокировки. Нажмите на него.
2. Если у вас установлен блокировщик всплывающих окон, временно отключите его для этого сайта.
3. Проверьте настройки вашего браузера и убедитесь, что блокировка всплывающих окон отключена или настроена на разрешение открытия данного окна.

Если проблема остается нерешенной, свяжитесь с нашей службой поддержки.
Как верифицироваться через Дію?
Верификация Дія откроется в новом окне. Если страница верификации не открылась, значит окно было заблокировано вашим браузером.
Чтобы разрешить открытие окна, выполните следующие шаги:

1. Проверьте адресную строку браузера на наличие сообщения об ошибке или значка блокировки. Нажмите на него.
2. Если у вас установлен блокировщик всплывающих окон, временно отключите его для этого сайта.
3. Проверьте настройки вашего браузера и убедитесь, что блокировка всплывающих окон отключена или настроена на разрешение открытия данного окна.

Если проблема остается нерешенной, свяжитесь с нашей службой поддержки.
Поздравляем!
Рекомендация засчитана!
В скором времени рекомендация появится на странице риелтора.
Рекомендация не засчитана.
Вы уже оставляли рекомендацию данному риелтору.
В пропозиції є незбережені дані.