6 000 €/мес
24  €/м²
офисное помещение
250 м²
2020 год постройки
1 нед. назад
1 нед. назад
1 (сегодня 0, вчера 0)
Описание
ОРЕНДА АВТОНОМНОГО ОФІСУ

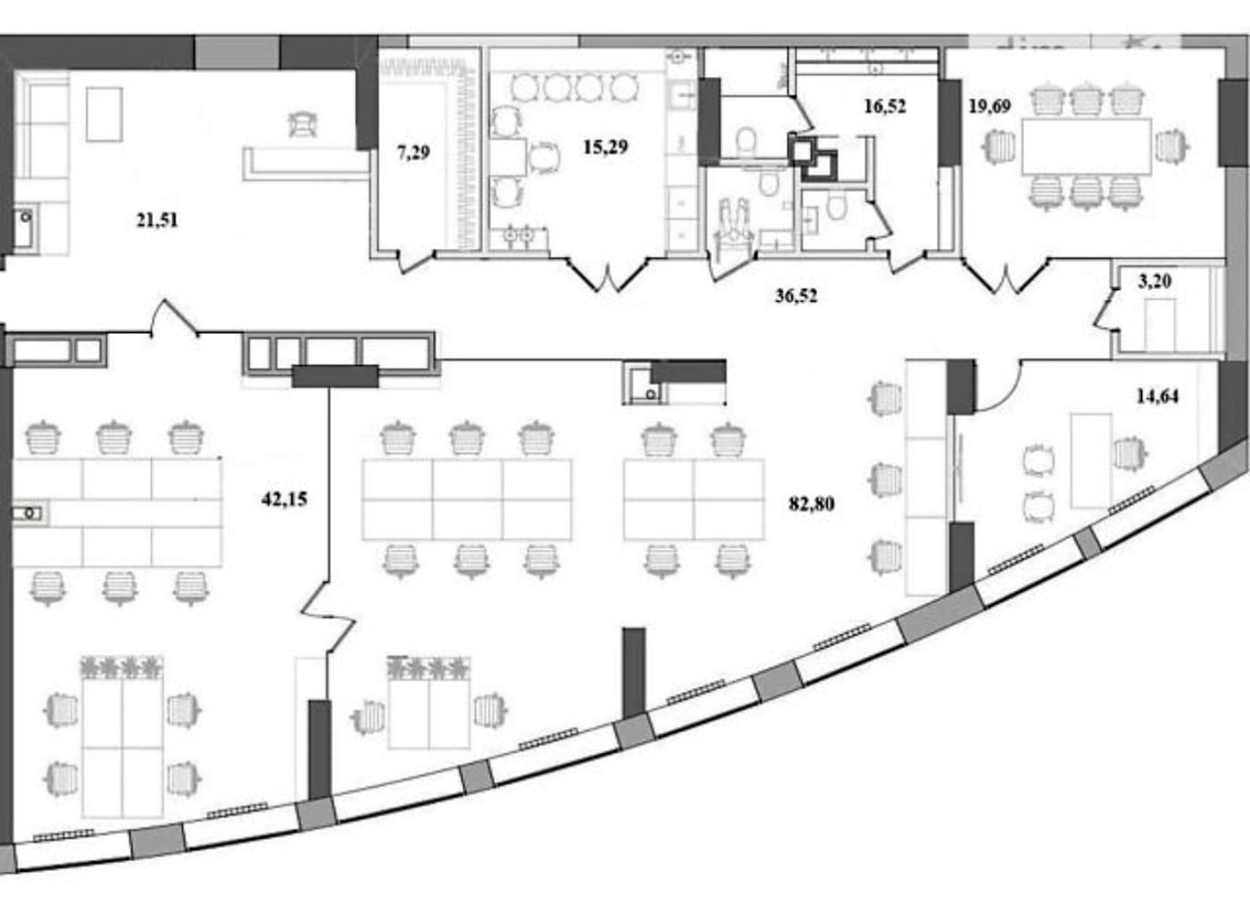
Пропонується офісне приміщення площею 250 м² у сучасному комплексі ЖК «A52» (2020 року) на вул. Січових Стрільців, 44-А, у самому центрі Києва.

Офіс повністю готовий до роботи — новий ремонт, якісні меблі та продумана організація простору. Приміщення розташоване на 2-му поверсі у виокремленому блоці нежитлового фонду з окремою вхідною групою, що не перетинається з житловою частиною комплексу. Планування включає просторий open space, два окремі кабінети, переговорну кімнату, облаштовану кухню-їдальню, кімнату для онлайн-дзвінків, три санвузли, гардеробну та ресепшн.

Енергонезалежність та комфорт:

Встановлено інвертор із батареєю на 20 кВт для безперебійної роботи техніки та освітлення.

Загальнобудинковий дизель-генератор забезпечує роботу ліфтів та ключових систем.

Подвійна система опалення: централізоване з лічильником тепла та автономне кондиціонування з функцією обігріву, що підтримує комфорт у будь-який сезон.

Безпека та доступ:

У комплексі облаштоване бомбосховище, придатне для комфортного перебування під час повітряних тривог.

Цілодобова охорона та доступ 24/7.

Технічне оснащення:

Центральна система вентиляції та кондиціонування з багатозонним регулюванням.

Декілька провайдерів Інтернету для стабільного зв’язку.

Це сучасний офіс, який гарантує безперебійну роботу бізнесу, високий рівень безпеки та комфортні умови для команди.

A24517
Детали
Объект коммерческой недвижимости, Отдельно стоящее здание, Офисное помещение. Объект на 2 этаже, В здании 17 этажей. Здание построено в 2020 году. Комиссия за услуги 50 %
THE Capital
Верифицированный профиль
2
Года опыта
1
Верифицированная рекомендация
1
Месяц на сайте
Активных объявлений 63
Эксклюзивных объектов 0
Рекламная активность 0
Последний визит на сайт 1 неделя назад
Рекомендовать
Адрес
Ваша жалоба принята!
Выберите способ подтверждения
Чтобы ваша рекомендация была засчитана, подтвердите свою личность
* Личные данные не будут отображаться на сайте и будут служить только для подтверждения личности.
Как верифицироваться через Дію?
Считайте QR-код сканером в приложении Действие и подтвердите авторизацию Действие.
QR-код будет действителен еще 02:00
Как верифицироваться через Bankid?
Верификация BankID откроется в новом окне. Если страница верификации не открылась, значит окно было заблокировано вашим браузером.
Чтобы разрешить открытие окна, выполните следующие шаги:

1. Проверьте адресную строку браузера на наличие сообщения об ошибке или значка блокировки. Нажмите на него.
2. Если у вас установлен блокировщик всплывающих окон, временно отключите его для этого сайта.
3. Проверьте настройки вашего браузера и убедитесь, что блокировка всплывающих окон отключена или настроена на разрешение открытия данного окна.

Если проблема остается нерешенной, свяжитесь с нашей службой поддержки.
Как верифицироваться через Дію?
Верификация Дія откроется в новом окне. Если страница верификации не открылась, значит окно было заблокировано вашим браузером.
Чтобы разрешить открытие окна, выполните следующие шаги:

1. Проверьте адресную строку браузера на наличие сообщения об ошибке или значка блокировки. Нажмите на него.
2. Если у вас установлен блокировщик всплывающих окон, временно отключите его для этого сайта.
3. Проверьте настройки вашего браузера и убедитесь, что блокировка всплывающих окон отключена или настроена на разрешение открытия данного окна.

Если проблема остается нерешенной, свяжитесь с нашей службой поддержки.
Поздравляем!
Рекомендация засчитана!
В скором времени рекомендация появится на странице риелтора.
Рекомендация не засчитана.
Вы уже оставляли рекомендацию данному риелтору.
В пропозиції є незбережені дані.