42 100 $/мес
8  $/м²
Комиссия 50% Пирогово
склад
5290 м²
сегодня
5 дней назад
0 (сегодня 0, вчера 0)
Описание
ПРОПОЗИЦІЯ ЩОДО ОРЕНДИ СКЛАДСЬКОГО ПРИМІЩЕННЯ
ЛОКАЦІЯ
м. Київ, вул. Новопирогівська, 58а
Голосіївський район
Об’єкт розташований у межах Києва з прямим доступом до ключових транспортних напрямків міста, що забезпечує швидку логістику та ефективну дистрибуцію.
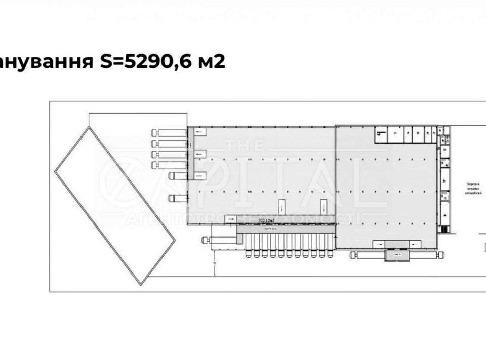
ЗАГАЛЬНА ПЛОЩА
Складське приміщення: 5 290,6 м²
Формат об’єкта дозволяє використовувати його як:
логістичний хаб
дистрибуційний центр
склад e-commerce
склад FMCG / рітейл-мереж
змішане складсько-офісне використання
ТЕХНІЧНІ ХАРАКТЕРИСТИКИ

Об’єкт спроєктований для інтенсивної складської та логістичної експлуатації:
висота стелі: 5,4 – 6 м
підлога: антипилове промислове покриття
рампа для навантаження/розвантаження
10 ролетних воріт для одночасної роботи транспорту
електропостачання: 100 кВт
сучасна енергоефективна система освітлення
централізовані водопостачання та каналізація
офісно-побутові приміщення для персоналу
територія під охороною
ЛОГІСТИЧНА ЕФЕКТИВНІСТЬ
Об’єкт дозволяє організувати безперебійну роботу вантажопотоків:

одночасне обслуговування декількох авто
швидке завантаження та розвантаження
оптимальна внутрішня логістика складу
можливість масштабування операцій

A29489
Детали
Объект коммерческой недвижимости, Отдельно стоящее здание, Склад. Объект на 1 этаже, В здании 1 этаж. Комиссия за услуги 50 %
THE Capital
Верифицированный профиль
PRO аккаунт
Професійний акаунт
Platinum partner
2
Года опыта
8
Месяцев на сайте
Активных объявлений 551
Эксклюзивных объектов 0
Рекламная активность 19179
Последний визит на сайт сегодня
Рекомендовать
Адрес
Ваша жалоба принята!
Выберите способ подтверждения
Чтобы ваша рекомендация была засчитана, подтвердите свою личность
* Личные данные не будут отображаться на сайте и будут служить только для подтверждения личности.
Как верифицироваться через Дію?
Считайте QR-код сканером в приложении Действие и подтвердите авторизацию Действие.
QR-код будет действителен еще 02:00
Как верифицироваться через Bankid?
Верификация BankID откроется в новом окне. Если страница верификации не открылась, значит окно было заблокировано вашим браузером.
Чтобы разрешить открытие окна, выполните следующие шаги:

1. Проверьте адресную строку браузера на наличие сообщения об ошибке или значка блокировки. Нажмите на него.
2. Если у вас установлен блокировщик всплывающих окон, временно отключите его для этого сайта.
3. Проверьте настройки вашего браузера и убедитесь, что блокировка всплывающих окон отключена или настроена на разрешение открытия данного окна.

Если проблема остается нерешенной, свяжитесь с нашей службой поддержки.
Как верифицироваться через Дію?
Верификация Дія откроется в новом окне. Если страница верификации не открылась, значит окно было заблокировано вашим браузером.
Чтобы разрешить открытие окна, выполните следующие шаги:

1. Проверьте адресную строку браузера на наличие сообщения об ошибке или значка блокировки. Нажмите на него.
2. Если у вас установлен блокировщик всплывающих окон, временно отключите его для этого сайта.
3. Проверьте настройки вашего браузера и убедитесь, что блокировка всплывающих окон отключена или настроена на разрешение открытия данного окна.

Если проблема остается нерешенной, свяжитесь с нашей службой поддержки.
Поздравляем!
Рекомендация засчитана!
В скором времени рекомендация появится на странице риелтора.
Рекомендация не засчитана.
Вы уже оставляли рекомендацию данному риелтору.
В пропозиції є незбережені дані.