1
4 444 200 $
3 000  $/м²
, торговое помещение, помещение свободного назначения, производственное помещение, склад, помещение для оказания услуг, офисное помещение, банковское помещение
1481.4 м²
сегодня
9 мес. назад
100 (сегодня 0, вчера 0)
Описание
Бізнес-центр "Михайлівська 12Б", загальною площею 1481 м2, який розташований у самому серці столиці за адресою: вул. Михайлівська 12Б.

Будівля має 4 поверхи та підвал.

Бізнес-центр оснащений металопластиковими вікнами, централізованим опаленням та кондиціонуванням, водопостачанням та водовідведенням.

Заведена потужність 200 кВт на будівлю.

Розташування надзвичайно зручне - всього 2 хвилини пішки від станції метро "Майдан Незалежності" та "Хрещатик".

Бізнес-центр знаходиться в оточенні розвиненої інфраструктури, яка включає кавʼярні, ресторани, банківські установи, супермаркети, аптеки, парк ім. Тараса Шевченка, театри та галереї.

Безпека у бізнес-центрі: карткова система пропусків, охорона 24/7 та підвальне укриття з двома входами.

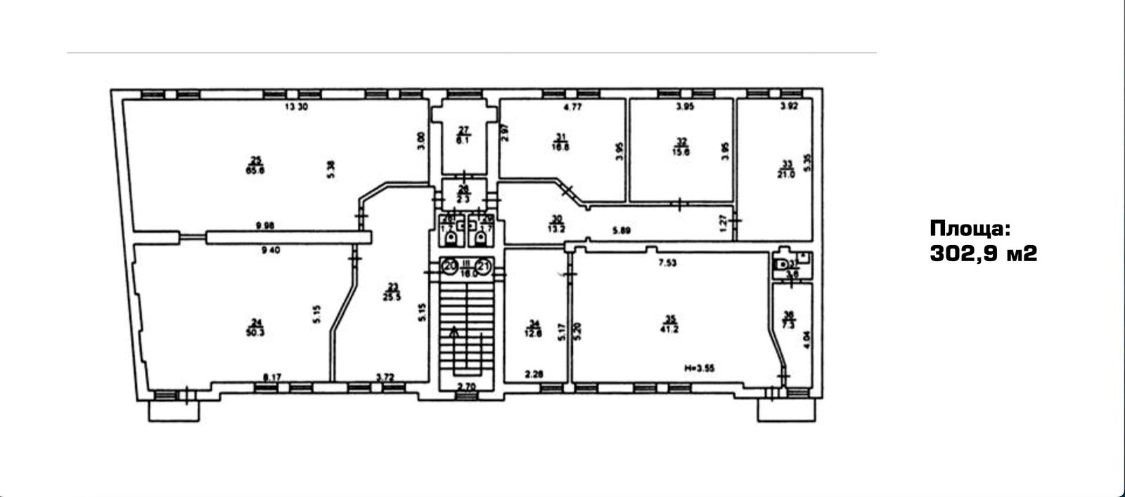
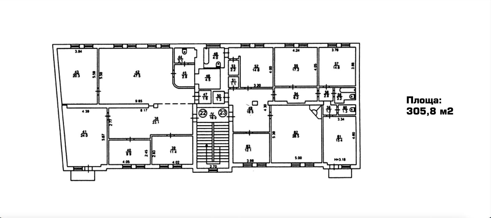
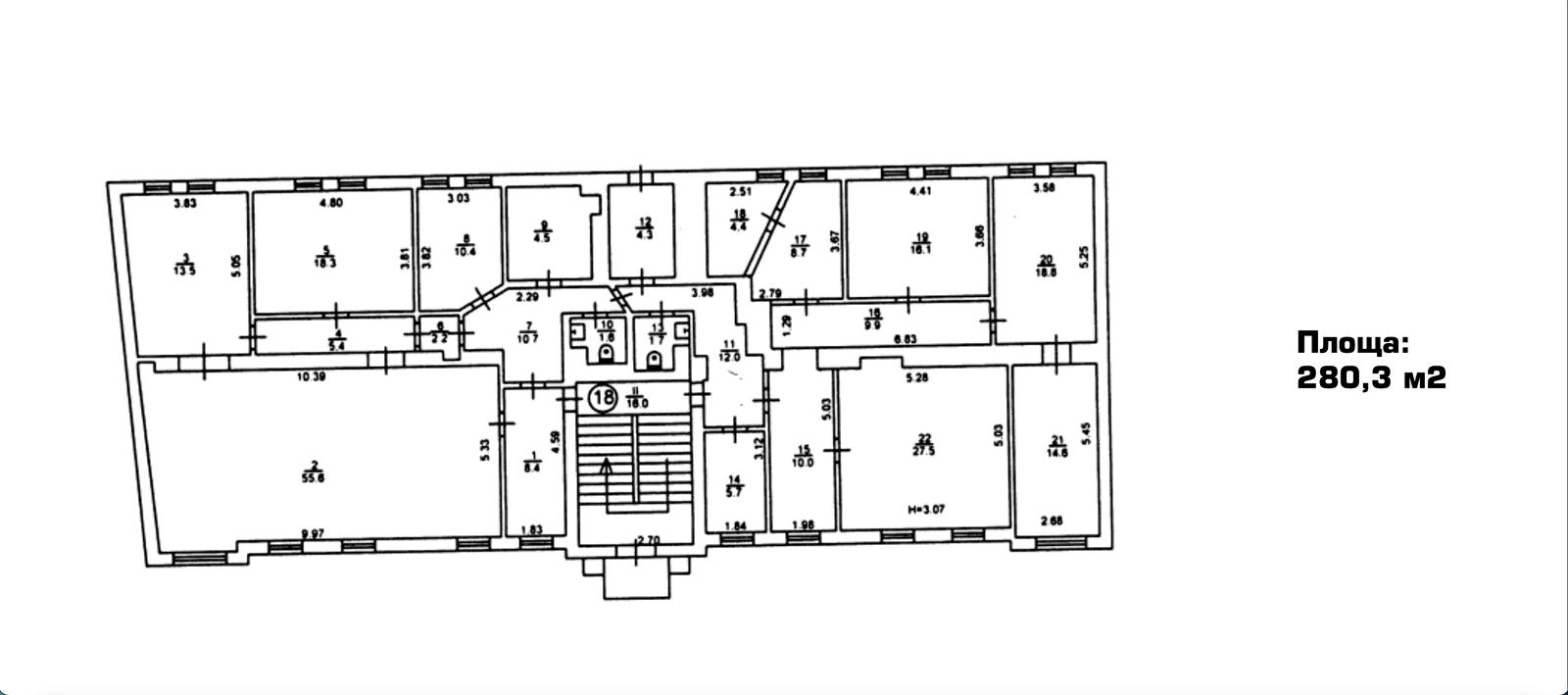
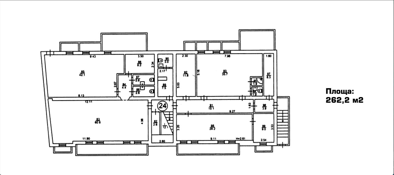
Площа приміщень:

Підвал: 262,5 м2

1 поверх: 280,3 м2

2 поверх: 302,9 м2

3 поверх: 305,8 м2 поверх (мансарда та антресоль) 329,9 м2

Загальна площа будівлі: 1481,4 м2

Пропозиція без комісії.
Детали
Объект коммерческой недвижимости, Класс B, Отдельно стоящее здание, Готовое здание, Банковское помещение, Офисное помещение, Помещение для оказания услуг, Склад, Производственное помещение, Помещение свободного назначения, Торговое помещение. Объект на 0, 1, 2, 3, 4 этажах, В здании 4 этажа. Без комиссии
Верифицированный профиль
Platinum partner
11
Лет опыта
9
Лет на сайте
Активных объявлений 14
Эксклюзивных объектов 0
Рекламная активность 19190
Последний визит на сайт сегодня
Рекомендовать
Адрес
Ваша жалоба принята!
Выберите способ подтверждения
Чтобы ваша рекомендация была засчитана, подтвердите свою личность
* Личные данные не будут отображаться на сайте и будут служить только для подтверждения личности.
Как верифицироваться через Дію?
Считайте QR-код сканером в приложении Действие и подтвердите авторизацию Действие.
QR-код будет действителен еще 02:00
Как верифицироваться через Bankid?
Верификация BankID откроется в новом окне. Если страница верификации не открылась, значит окно было заблокировано вашим браузером.
Чтобы разрешить открытие окна, выполните следующие шаги:

1. Проверьте адресную строку браузера на наличие сообщения об ошибке или значка блокировки. Нажмите на него.
2. Если у вас установлен блокировщик всплывающих окон, временно отключите его для этого сайта.
3. Проверьте настройки вашего браузера и убедитесь, что блокировка всплывающих окон отключена или настроена на разрешение открытия данного окна.

Если проблема остается нерешенной, свяжитесь с нашей службой поддержки.
Как верифицироваться через Дію?
Верификация Дія откроется в новом окне. Если страница верификации не открылась, значит окно было заблокировано вашим браузером.
Чтобы разрешить открытие окна, выполните следующие шаги:

1. Проверьте адресную строку браузера на наличие сообщения об ошибке или значка блокировки. Нажмите на него.
2. Если у вас установлен блокировщик всплывающих окон, временно отключите его для этого сайта.
3. Проверьте настройки вашего браузера и убедитесь, что блокировка всплывающих окон отключена или настроена на разрешение открытия данного окна.

Если проблема остается нерешенной, свяжитесь с нашей службой поддержки.
Поздравляем!
Рекомендация засчитана!
В скором времени рекомендация появится на странице риелтора.
Рекомендация не засчитана.
Вы уже оставляли рекомендацию данному риелтору.
В пропозиції є незбережені дані.