1
779 304 $
2 545  $/м²
торговое помещение, помещение для оказания услуг, офисное помещение, банковское помещение
306.21 м²
1 нед. назад
6 мес. назад
28 (сегодня 0, вчера 0)
Описание
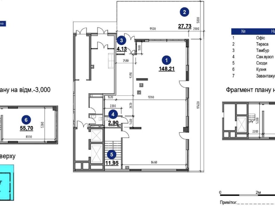
Об'єкт: Комерційне приміщення в ЖК Nordica Residence

Тип: планування (рання стадія, передвідчутно для оренди / продажу)

Поверх: 1 / 18


Площа: 306,21 м²


Переваги: доїзд автомобілем, панорамні вікна, трирівневе приміщення, власна тераса

Сильні сторони

Вигідне місце в новому ЖК — сучасна будівля, можливе зростання вартості по мірі завершення будівництва і заселення.

Панорамні вікна і власна тераса — дуже привабливі для шоуруму, офісу преміум-класу або брендової фірми.

Велика площа — 306 м² дає можливість використання під великий шоурум, офісний простір, або комбіновані зони (продаж + сервіс, клієнтська зона + офіси).
Детали
Объект коммерческой недвижимости, Класс A, Помещение в жилом здании, Незавершенное здание, Банковское помещение, Офисное помещение, Помещение для оказания услуг, Торговое помещение. Объект на 1 этаже, В здании 18 этажей. Без комиссии
THE Capital
Верифицированный профиль
PRO аккаунт
Професійний акаунт
Platinum partner
2
Года опыта
8
Месяцев на сайте
Активных объявлений 536
Эксклюзивных объектов 0
Рекламная активность 19458
Последний визит на сайт вчера
Рекомендовать
Адрес
Ваша жалоба принята!
Выберите способ подтверждения
Чтобы ваша рекомендация была засчитана, подтвердите свою личность
* Личные данные не будут отображаться на сайте и будут служить только для подтверждения личности.
Как верифицироваться через Дію?
Считайте QR-код сканером в приложении Действие и подтвердите авторизацию Действие.
QR-код будет действителен еще 02:00
Как верифицироваться через Bankid?
Верификация BankID откроется в новом окне. Если страница верификации не открылась, значит окно было заблокировано вашим браузером.
Чтобы разрешить открытие окна, выполните следующие шаги:

1. Проверьте адресную строку браузера на наличие сообщения об ошибке или значка блокировки. Нажмите на него.
2. Если у вас установлен блокировщик всплывающих окон, временно отключите его для этого сайта.
3. Проверьте настройки вашего браузера и убедитесь, что блокировка всплывающих окон отключена или настроена на разрешение открытия данного окна.

Если проблема остается нерешенной, свяжитесь с нашей службой поддержки.
Как верифицироваться через Дію?
Верификация Дія откроется в новом окне. Если страница верификации не открылась, значит окно было заблокировано вашим браузером.
Чтобы разрешить открытие окна, выполните следующие шаги:

1. Проверьте адресную строку браузера на наличие сообщения об ошибке или значка блокировки. Нажмите на него.
2. Если у вас установлен блокировщик всплывающих окон, временно отключите его для этого сайта.
3. Проверьте настройки вашего браузера и убедитесь, что блокировка всплывающих окон отключена или настроена на разрешение открытия данного окна.

Если проблема остается нерешенной, свяжитесь с нашей службой поддержки.
Поздравляем!
Рекомендация засчитана!
В скором времени рекомендация появится на странице риелтора.
Рекомендация не засчитана.
Вы уже оставляли рекомендацию данному риелтору.
В пропозиції є незбережені дані.