380 000 $
1 949
$/м²
Глубочицкая ул., 32-В
помещение свободного назначения, помещение для оказания услуг, офисное помещение
195 м²
2 мес. назад
6 мес. назад
1 (сегодня 0,
вчера 0)
Описание
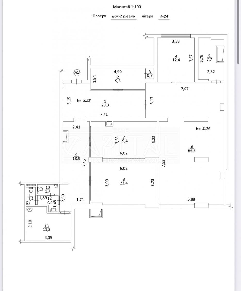
Продаж нового комерційного приміщення, який чудово піідійде як для орендного бізнесу, так і під власний офіс в ЖК Покровський Посад.
Планування:
- сім окремих кабінетів
- кухня (холодильник, мікрохвильовка, кавова машина) та обідня зона
- два санвузли
- є змога орендувати паркомісця в підземному паркінгу
Офіс оснащений протипожежною системою, домофоном, централізованим опаленням (також є додаткові електричні батареї), центразізовані вентиляція та система кондиціонування, відеонагляд, магнітні замки.
ЖК має власну інфраструктуру:
- охорону та відеоспостереження 24/7;
- зелену зону з алеями, фонтанами, дитячими майданчиками та зонами відпочинку;
- зручне розташування в історичному центрі Києва, поруч з метро, річкою, парками та пам'ятками архітектури - метро 15 хвилин пішки.
Стилобат на фасаді з магазинами, ресторанами, супермаркетом "Сільпо", косметичними салонами, фітнес центром, наявність підземного та наземного гостьового паркінгу.
В комплексі працюють генератори на ліфти, воду та опалення.
Вхід до комплексу по карточкам або заїзд через паркінг.
Також можливе встановлення та підключення власного генератора на офіс.
A23 5 40
Планування:
- сім окремих кабінетів
- кухня (холодильник, мікрохвильовка, кавова машина) та обідня зона
- два санвузли
- є змога орендувати паркомісця в підземному паркінгу
Офіс оснащений протипожежною системою, домофоном, централізованим опаленням (також є додаткові електричні батареї), центразізовані вентиляція та система кондиціонування, відеонагляд, магнітні замки.
ЖК має власну інфраструктуру:
- охорону та відеоспостереження 24/7;
- зелену зону з алеями, фонтанами, дитячими майданчиками та зонами відпочинку;
- зручне розташування в історичному центрі Києва, поруч з метро, річкою, парками та пам'ятками архітектури - метро 15 хвилин пішки.
Стилобат на фасаді з магазинами, ресторанами, супермаркетом "Сільпо", косметичними салонами, фітнес центром, наявність підземного та наземного гостьового паркінгу.
В комплексі працюють генератори на ліфти, воду та опалення.
Вхід до комплексу по карточкам або заїзд через паркінг.
Також можливе встановлення та підключення власного генератора на офіс.
A23 5 40
Детали
Объект коммерческой недвижимости, Класс A, Помещение в офисном центре, Готовое здание, Офисное помещение, Помещение для оказания услуг, Помещение свободного назначения. Объект на 1 этаже, В здании 23 этажа. В помещении 6 комнат или больше. Комиссия за услуги 5 %



































































