375 000 $
1 923  $/м²
офисное помещение
195 м²
1 нед. назад
6 мес. назад
2 (сегодня 0, вчера 0)
Описание
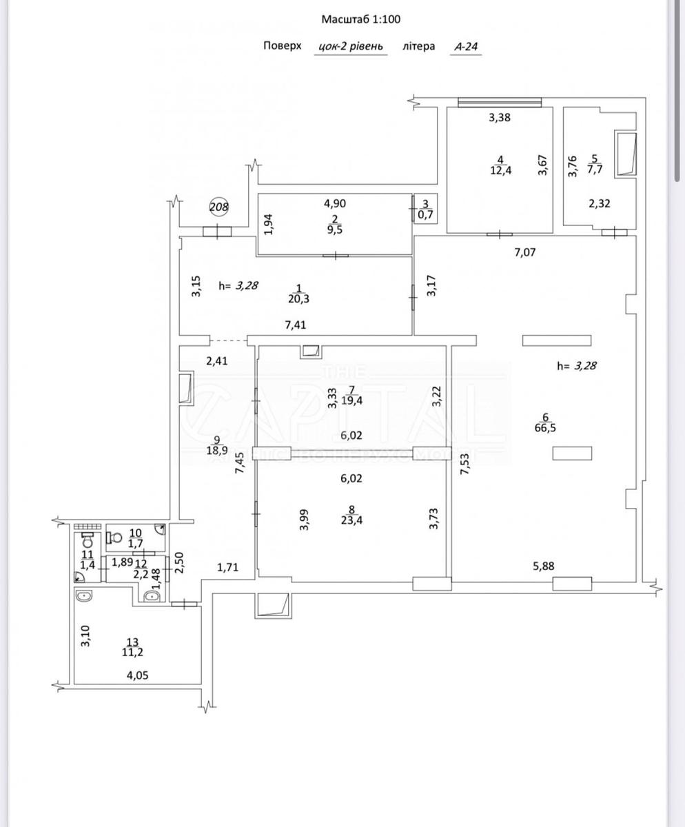
Продаж нового комерційного приміщення, який чудово піідійде як для орендного бізнесу, так і під власний офіс в ЖК Покровський Посад.

Планування:
- сім окремих кабінетів
- кухня (холодильник, мікрохвильовка, кавова машина) та обідня зона
- два санвузли
- є змога орендувати паркомісця в підземному паркінгу

Офіс оснащений протипожежною системою, домофоном, централізованим опаленням (також є додаткові електричні батареї), центразізовані вентиляція та система кондиціонування, відеонагляд, магнітні замки.

ЖК має власну інфраструктуру:
- охорону та відеоспостереження 24/7;
- зелену зону з алеями, фонтанами, дитячими майданчиками та зонами відпочинку;
- зручне розташування в історичному центрі Києва, поруч з метро, річкою, парками та пам'ятками архітектури - метро 15 хвилин пішки.


Стилобат на фасаді з магазинами, ресторанами, супермаркетом "Сільпо", косметичними салонами, фітнес центром, наявність підземного та наземного гостьового паркінгу.
В комплексі працюють генератори на ліфти, воду та опалення.

Вхід до комплексу по карточкам або заїзд через паркінг.
Також можливе встановлення та підключення власного генератора на офіс.

# A 2 3 5 4 0
Детали
Объект коммерческой недвижимости, Помещение в жилом здании, Готовое здание, Офисное помещение. Объект на 1 этаже, В здании 25 этажей. Подъезд к зданию - асфальт. Есть электричество. Есть холодная вода, есть горячая вода. Есть отопление. Есть санузел. Есть охраняемая автопарковка. Охрана. Рядом есть остановки, супермаркет, кафе, ресторан, банкомат, отделение банка. В помещении 6 комнат или больше. Комиссия за услуги 4 %
THE Capital
Верифицированный профиль
6
Лет опыта
1
Год на сайте
Активных объявлений 921
Эксклюзивных объектов 0
Рекламная активность 0
Последний визит на сайт сегодня
Рекомендовать
История изменения цены
27.03.2026 - 5 000 $ 375 000 $
06.11.2025 380 000 $
Адрес
Ваша жалоба принята!
Выберите способ подтверждения
Чтобы ваша рекомендация была засчитана, подтвердите свою личность
* Личные данные не будут отображаться на сайте и будут служить только для подтверждения личности.
Как верифицироваться через Дію?
Считайте QR-код сканером в приложении Действие и подтвердите авторизацию Действие.
QR-код будет действителен еще 02:00
Как верифицироваться через Bankid?
Верификация BankID откроется в новом окне. Если страница верификации не открылась, значит окно было заблокировано вашим браузером.
Чтобы разрешить открытие окна, выполните следующие шаги:

1. Проверьте адресную строку браузера на наличие сообщения об ошибке или значка блокировки. Нажмите на него.
2. Если у вас установлен блокировщик всплывающих окон, временно отключите его для этого сайта.
3. Проверьте настройки вашего браузера и убедитесь, что блокировка всплывающих окон отключена или настроена на разрешение открытия данного окна.

Если проблема остается нерешенной, свяжитесь с нашей службой поддержки.
Как верифицироваться через Дію?
Верификация Дія откроется в новом окне. Если страница верификации не открылась, значит окно было заблокировано вашим браузером.
Чтобы разрешить открытие окна, выполните следующие шаги:

1. Проверьте адресную строку браузера на наличие сообщения об ошибке или значка блокировки. Нажмите на него.
2. Если у вас установлен блокировщик всплывающих окон, временно отключите его для этого сайта.
3. Проверьте настройки вашего браузера и убедитесь, что блокировка всплывающих окон отключена или настроена на разрешение открытия данного окна.

Если проблема остается нерешенной, свяжитесь с нашей службой поддержки.
Поздравляем!
Рекомендация засчитана!
В скором времени рекомендация появится на странице риелтора.
Рекомендация не засчитана.
Вы уже оставляли рекомендацию данному риелтору.
В пропозиції є незбережені дані.