1
2 000 000 $
2 463
$/м²
Берестейский просп. (Победы), 11 к2
торговое помещение, помещение свободного назначения, производственное помещение, склад, помещение для оказания услуг, офисное помещение, банковское помещение
812 м²
Новобудова
вчера
6 мес. назад
31 (сегодня 0,
вчера 0)
Описание
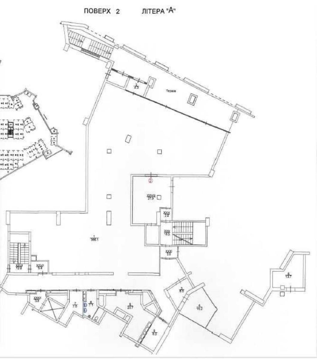
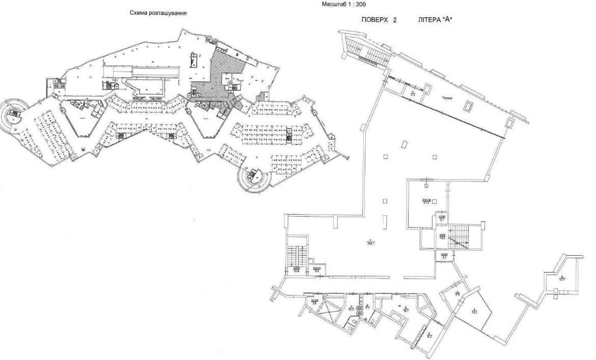
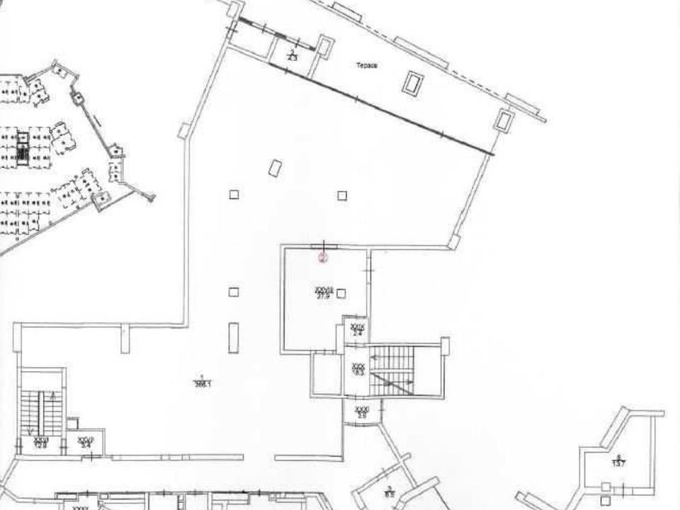
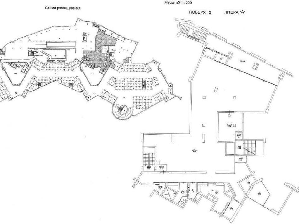
Пропонується до продажу просторе комерційне приміщення 812 кв.м без ремонту у престижному житловому комплексі “Manhattan City”, розташованому в діловому центрі Києва — на проспекті Берестейському 11.
Приміщення має великі фасадні панорамні вікна, що виходять на проспект, — ідеальне рішення для магазину, ресторану, спортзалу, шоуруму або офісу представницького рівня.
Передбачено два окремі фасадні входи для клієнтів та два додаткових технічних входи з можливістю під’їзду авто з тильної сторони будівлі.
Приміщення має великі фасадні панорамні вікна, що виходять на проспект, — ідеальне рішення для магазину, ресторану, спортзалу, шоуруму або офісу представницького рівня.
Передбачено два окремі фасадні входи для клієнтів та два додаткових технічних входи з можливістю під’їзду авто з тильної сторони будівлі.
Детали
Объект коммерческой недвижимости, Класс B, Помещение в жилом здании, Готовое здание, Банковское помещение, Офисное помещение, Помещение для оказания услуг, Склад, Производственное помещение, Помещение свободного назначения, Торговое помещение. Объект на 2 этаже, В здании 36 этажей. Без комиссии

| Активных объявлений | 48 |
| Эксклюзивных объектов | 0 |
| Рекламная активность | 36939 |
| Последний визит на сайт | вчера |
Рекомендовать




















