1
60 000 $
522  $/м²
помещение свободного назначения, офисное помещение
115 м²
2008 год постройки
2 дня назад
4 мес. назад
136 (сегодня 1, вчера 3)
Описание
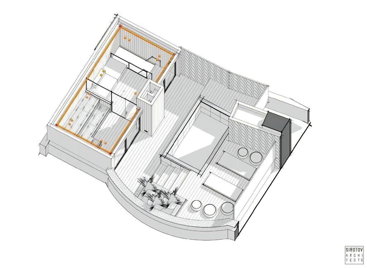
Продаж нежитлового приміщення 115 м² у стилі Loft з виходом на дах. Дніпровська набережна, 23.

Локація: Дарницький район, 1 секція. Прямо навпроти ТРЦ River Mall.

Характеристики:

Площа: 115 м².

Тип: Мансардний поверх / Технічний поверх (високі склепінчасті стелі).

Стан: Shell & Core (після будівельників, без оздоблення). Потрібен капітальний ремонт.

Планування: Open space з елементами несучих конструкцій та вентиляційних шахт.

Ключові особливості:

Потенціал: Ідеальна база під справжній лофт. Висота стель дозволяє облаштувати антресоль (другий рівень). Масивні вентиляційні короби можна обіграти в інтер'єрі.

Вікна та світло: Великі арочні вікна. Приміщення світле.

Тераса: Є вихід на відкриту частину покрівлі. Шикарний вид на River Mall, проспект та затоку Дніпра. Можливість облаштування власної лаунж-зони.

Комунікації: Заведені, розведення потребує проектування під орендаря/власника.

Під що підійде:

Креативний офіс / Архітектурне бюро.

Фотостудія / Відеопродакшн (через висоту стель та світло).

Showroom закритого типу.

Творча майстерня.

Нюанси: Приміщення потребує вкладень в утеплення (дах) та розведення кліматичних систем, оскільки це верхній рівень.
Детали
Объект коммерческой недвижимости, Помещение в жилом здании, Готовое здание, Офисное помещение, Помещение свободного назначения. Объект на 19 этаже, В здании 19 этажей. Здание построено в 2008 году. Помещение свободной планировки. Без комиссии
Level Group
Верифицированный профиль
6
Лет опыта
5
Лет на сайте
Активных объявлений 42
Эксклюзивных объектов 0
Рекламная активность 1289
Последний визит на сайт вчера
Рекомендовать
Адрес
Ваша жалоба принята!
Выберите способ подтверждения
Чтобы ваша рекомендация была засчитана, подтвердите свою личность
* Личные данные не будут отображаться на сайте и будут служить только для подтверждения личности.
Как верифицироваться через Дію?
Считайте QR-код сканером в приложении Действие и подтвердите авторизацию Действие.
QR-код будет действителен еще 02:00
Как верифицироваться через Bankid?
Верификация BankID откроется в новом окне. Если страница верификации не открылась, значит окно было заблокировано вашим браузером.
Чтобы разрешить открытие окна, выполните следующие шаги:

1. Проверьте адресную строку браузера на наличие сообщения об ошибке или значка блокировки. Нажмите на него.
2. Если у вас установлен блокировщик всплывающих окон, временно отключите его для этого сайта.
3. Проверьте настройки вашего браузера и убедитесь, что блокировка всплывающих окон отключена или настроена на разрешение открытия данного окна.

Если проблема остается нерешенной, свяжитесь с нашей службой поддержки.
Как верифицироваться через Дію?
Верификация Дія откроется в новом окне. Если страница верификации не открылась, значит окно было заблокировано вашим браузером.
Чтобы разрешить открытие окна, выполните следующие шаги:

1. Проверьте адресную строку браузера на наличие сообщения об ошибке или значка блокировки. Нажмите на него.
2. Если у вас установлен блокировщик всплывающих окон, временно отключите его для этого сайта.
3. Проверьте настройки вашего браузера и убедитесь, что блокировка всплывающих окон отключена или настроена на разрешение открытия данного окна.

Если проблема остается нерешенной, свяжитесь с нашей службой поддержки.
Поздравляем!
Рекомендация засчитана!
В скором времени рекомендация появится на странице риелтора.
Рекомендация не засчитана.
Вы уже оставляли рекомендацию данному риелтору.
В пропозиції є незбережені дані.