120 000 $
2 857  $/м²
торговое помещение, помещение для оказания услуг
42 м²
1961 год постройки
2 дня назад
4 мес. назад
30 (сегодня 0, вчера 1)
Описание
Продаж комерційного приміщення 42 м² — готовий бізнес з орендарем

Пропонується до продажу готове комерційне приміщення площею 42 м² на першому поверсі житлового будинку за адресою вул. Ольжича, 10. Приміщення здається без комісії для покупця та орендоване стабільним орендарем — Meest Express, що забезпечує відразу пасивний дохід.

Характеристики об’єкта

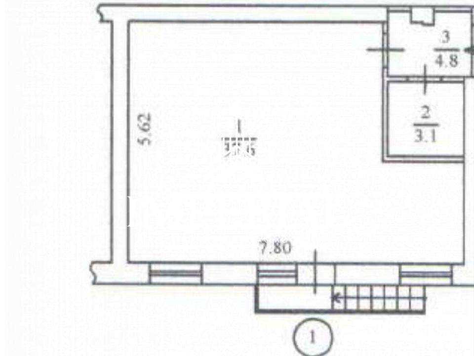
Поверх: 1 із 5

Загальна площа: 42 м²

Санвузол: є

Опалення: централізоване

Комфорт: кондиціонер

Висота стелі: 2,80 м

Переваги приміщення

Окремий вхід та фасад на вулицю

Велика вітрина для візуальної реклами та залучення пішоходів

Приміщення підключене до всіх комунікацій: каналізація, холодна та гаряча вода, електропостачання 5–10 кВт

Діючий орендар — стабільний дохід з першого дня

Можливість переорієнтації під будь-який роздрібний бізнес, офіс або послуги

Розташування та інфраструктура

Жвавий житловий район із високим пішохідним та автомобільним трафіком

До метро «Дорогожичі» — кілька хвилин пішки

Поруч мережеві магазини (АТБ, Beer Market, Fora), кав’ярні, заклади харчування, перукарні, салони краси

Дитячі садки, школи, аптеки та супермаркети в межах 500 м

Фінансові умови

Орендна плата орендаря: 28 000 грн/місяць з щорічною індексацією

Реальна окупність: 10 років

Вартість: 120 000 $

Комісія агентства нерухомості: 5%
Детали
Объект коммерческой недвижимости, Класс E, Помещение в жилом здании, Готовое здание, Помещение для оказания услуг, Торговое помещение. Объект на 1 этаже, В здании 5 этажей. Здание построено в 1961 году. В помещении 1 комната. Комиссия за услуги 5 %
IMPERIAL
Верифицированный профиль
1
Год опыта
2
Верифицированные рекомендации
9
Месяцев на сайте
Активных объявлений 36
Эксклюзивных объектов 0
Рекламная активность 1789
Последний визит на сайт вчера
Рекомендовать
Адрес
Ваша жалоба принята!
Выберите способ подтверждения
Чтобы ваша рекомендация была засчитана, подтвердите свою личность
* Личные данные не будут отображаться на сайте и будут служить только для подтверждения личности.
Как верифицироваться через Дію?
Считайте QR-код сканером в приложении Действие и подтвердите авторизацию Действие.
QR-код будет действителен еще 02:00
Как верифицироваться через Bankid?
Верификация BankID откроется в новом окне. Если страница верификации не открылась, значит окно было заблокировано вашим браузером.
Чтобы разрешить открытие окна, выполните следующие шаги:

1. Проверьте адресную строку браузера на наличие сообщения об ошибке или значка блокировки. Нажмите на него.
2. Если у вас установлен блокировщик всплывающих окон, временно отключите его для этого сайта.
3. Проверьте настройки вашего браузера и убедитесь, что блокировка всплывающих окон отключена или настроена на разрешение открытия данного окна.

Если проблема остается нерешенной, свяжитесь с нашей службой поддержки.
Как верифицироваться через Дію?
Верификация Дія откроется в новом окне. Если страница верификации не открылась, значит окно было заблокировано вашим браузером.
Чтобы разрешить открытие окна, выполните следующие шаги:

1. Проверьте адресную строку браузера на наличие сообщения об ошибке или значка блокировки. Нажмите на него.
2. Если у вас установлен блокировщик всплывающих окон, временно отключите его для этого сайта.
3. Проверьте настройки вашего браузера и убедитесь, что блокировка всплывающих окон отключена или настроена на разрешение открытия данного окна.

Если проблема остается нерешенной, свяжитесь с нашей службой поддержки.
Поздравляем!
Рекомендация засчитана!
В скором времени рекомендация появится на странице риелтора.
Рекомендация не засчитана.
Вы уже оставляли рекомендацию данному риелтору.
В пропозиції є незбережені дані.