1
800 000 $
488  $/м²
торговое помещение, помещение свободного назначения, производственное помещение, склад, помещение для оказания услуг, офисное помещение, банковское помещение
1639 м²
3 дня назад
4 мес. назад
72 (сегодня 0, вчера 0)
Описание
Продаж Окремо стоячої будівлі в Солом’янському районі Києва

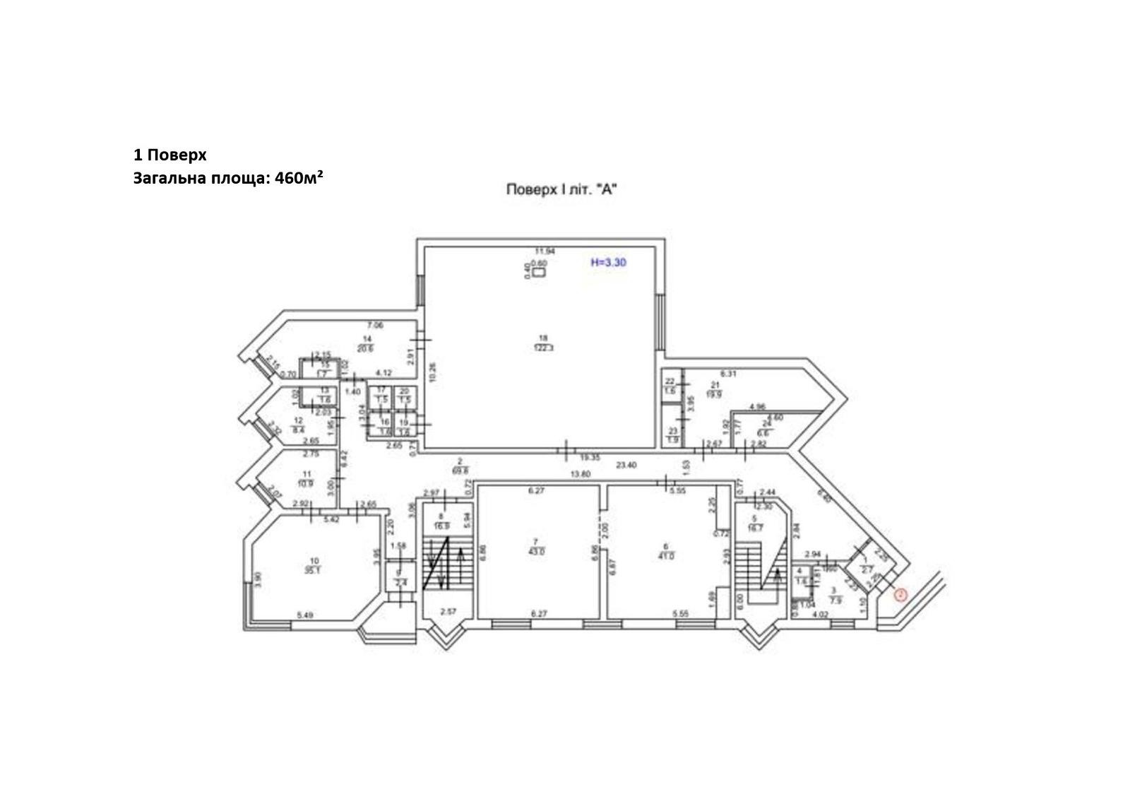
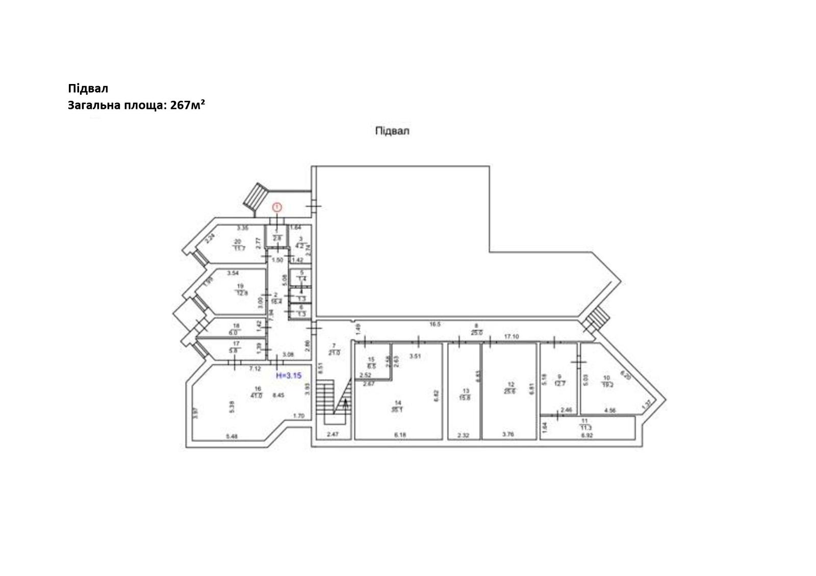
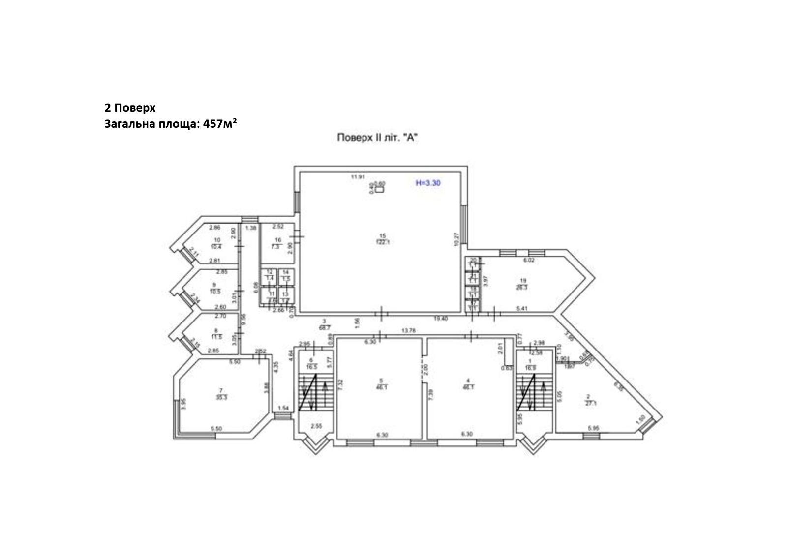
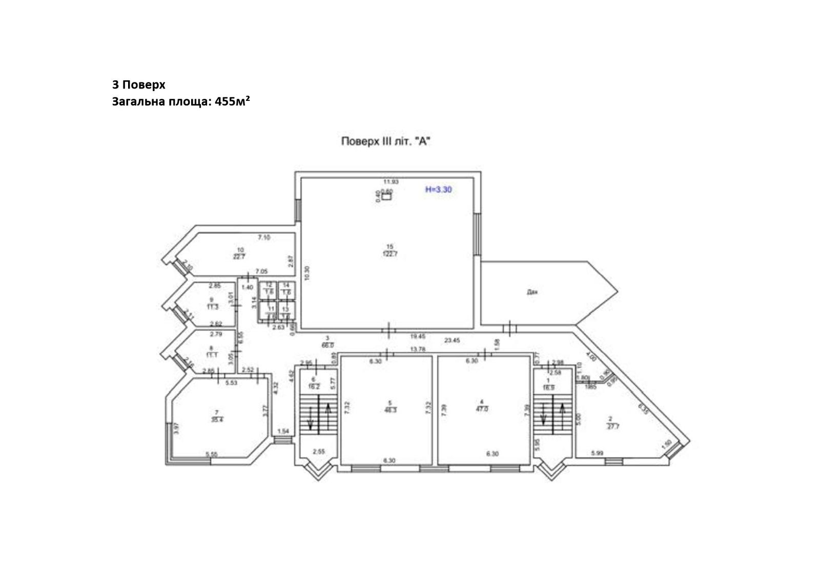
Будівля складається з 4 поверхів (3 поверхи+ цоколь)

Підійде під будь-який вид. діяльності.

Характеристики будівлі:

Загальна площа: 1639 м².
– підвал: 267 м²
– 1 поверх: 460 м²
– 2 поверх: 457 м²
– 3 поверх: 455 м²

Висота приміщень: 3,15 м
Електрика: 75 кВт
Опалення: центральне
Стан приміщень: під чистове оздоблення, зроблено електропроводку, розведення опалення, води, вентиляція всіх приміщень, система пожежогасіння.
Паркінг: 15 паркомісць
Локація:

м. Київ, р-н. Солом’янський, вул. Федора Ернста, буд. 8а

метро “Васильківська” – 4 км
зупинка громадського транспорту- 85 м
Детали
Объект коммерческой недвижимости, Отдельно стоящее здание, Готовое здание, Банковское помещение, Офисное помещение, Помещение для оказания услуг, Склад, Производственное помещение, Помещение свободного назначения, Торговое помещение. В здании 3 этажа. Без комиссии
Верифицированный профиль
Silver partner
12
Лет опыта
9
Лет на сайте
Активных объявлений 40
Эксклюзивных объектов 0
Рекламная активность 3949
Последний визит на сайт 2 дня назад
Рекомендовать
Адрес
Ваша жалоба принята!
Выберите способ подтверждения
Чтобы ваша рекомендация была засчитана, подтвердите свою личность
* Личные данные не будут отображаться на сайте и будут служить только для подтверждения личности.
Как верифицироваться через Дію?
Считайте QR-код сканером в приложении Действие и подтвердите авторизацию Действие.
QR-код будет действителен еще 02:00
Как верифицироваться через Bankid?
Верификация BankID откроется в новом окне. Если страница верификации не открылась, значит окно было заблокировано вашим браузером.
Чтобы разрешить открытие окна, выполните следующие шаги:

1. Проверьте адресную строку браузера на наличие сообщения об ошибке или значка блокировки. Нажмите на него.
2. Если у вас установлен блокировщик всплывающих окон, временно отключите его для этого сайта.
3. Проверьте настройки вашего браузера и убедитесь, что блокировка всплывающих окон отключена или настроена на разрешение открытия данного окна.

Если проблема остается нерешенной, свяжитесь с нашей службой поддержки.
Как верифицироваться через Дію?
Верификация Дія откроется в новом окне. Если страница верификации не открылась, значит окно было заблокировано вашим браузером.
Чтобы разрешить открытие окна, выполните следующие шаги:

1. Проверьте адресную строку браузера на наличие сообщения об ошибке или значка блокировки. Нажмите на него.
2. Если у вас установлен блокировщик всплывающих окон, временно отключите его для этого сайта.
3. Проверьте настройки вашего браузера и убедитесь, что блокировка всплывающих окон отключена или настроена на разрешение открытия данного окна.

Если проблема остается нерешенной, свяжитесь с нашей службой поддержки.
Поздравляем!
Рекомендация засчитана!
В скором времени рекомендация появится на странице риелтора.
Рекомендация не засчитана.
Вы уже оставляли рекомендацию данному риелтору.
В пропозиції є незбережені дані.